Офисное помещение
Ждановская, 45 Показать на карте
Ждановская, 45 Показать на карте
Петроградский район
Санкт-Петербург
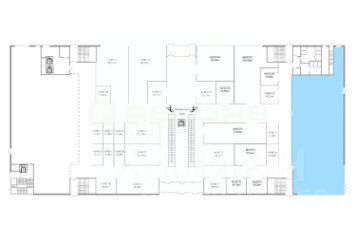
Продаётся офисное помещение площадью 72 м2, на 3 этаже элитного жилого комплекса Леонтьевский Мыс, расположенного по адресу: Санкт-Петербург, улица Ждановская, дом 45, лит. А.ЖК расположено в самом живописном месте Петроградского района Санкт-Петербурга! ЖК Леонтьевский Мыс с трёх сторон окружён водой. Удобное расположение комплекса, 5 мин до выезда на ЗСД. До центра города 10 минут. До аэропорта 25 минут. Круглосуточная охрана, закрытая благоустроенная территория. На территории комплекса есть магазины, рестораны, кафе, аптека, супермаркет Лента, офисы и пр.Высокие потолки и удобная планировка (план помещения в объявлении). Мощность 7,19 КВт. Высокие потолки. Вход отдельный! Многоуровневый подземный паркинг, есть возможность покупки машино-мест. Прямая продажа. Собственность юридического лица, с НДС. Подходит под ипотеку. Помощь в одобрении ипотеки. Полное сопровождение сделки.
72 м2
- Показать контакты
- Добавить в избранное
72 м2
29 800 000
413 889 /м2
