Отдельностоящее здание
Кубинская, 87 Показать на карте
Кубинская, 87 Показать на карте
Московский район
Санкт-Петербург
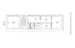
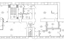
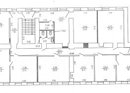
1705622 Продаём отдельно стоящее здание — действующий арендный бизнес на стратегической развязке КАД-ЗСД-Пулковское шоссе-Дунайский проспект-Кубинская улица. Предлагается к продаже объект, состоящий из 20 офисных помещений различной площади, высота потолков 3,05 м и двух промышленных цехов авторемонтной направленности 340 кв.м и 808 кв.м, высота потолков 6.15 м общей площадью 2 589,3 м², расположенное по адресу: Санкт-Петербург, улица Кубинская, д. 87, лит. А. Преимущества объекта: стабильный арендный доход с первого дня, коридорно-кабинетная планировка, готовая отделка. Сделка — продажа юридического лица. Механизм обсуждается. Великолепное расположение в престижном районе Санкт-Петербурга. ХАРАКТЕРИСТИКИ ЗДАНИЯ - Общая площадь: 2 589,3 м² - Этажность: 2 этажа - высота потолков: от 3,05 до 6,15 м - электрическая мощность: 160 кВт - центральное отопление, частичное кондиционирование. ЗЕМЕЛЬНЫЙ УЧАСТОК - Площадь: 19730 м² - Статус: аренда от КУГИ СПб до 2052 года - Земельный участок расположен в территориальной зоне ТИ1-1 - зона объектов инженерной и транспортной инфраструктур, коммунальных объектов, объектов санитарной очистки с включением складских и производственных объектов IV и V класса опасности. Звоните — организуем просмотр и предоставим всю необходимую документацию. Больше информации на нашем сайте
2590 м2
- Показать контакты
- Добавить в избранное
2590 м2
349 990 000
135 131 /м2
