Универсальное помещение
Стачек проспект, 74 Показать на карте
Стачек проспект, 74 Показать на карте
Кировский район
Санкт-Петербург
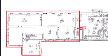
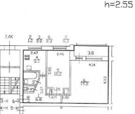
Добрый день!Продаётся коммерческое помещение рядом с метро ''Кировский завод'' - два входа, хороший ремонт, парковка и возможность размещения вывески на проходном месте. Универсальный формат под офис, студию, салон, услуги или арендный бизнес.Кстати, если вы сейчас продаёте свою недвижимость - мы можем сразу выкупить её. Позвоните - назовём стоимость покупки!!ПРОДАЖА БЕЗ КОМИССИИ!Описание и фотографии соответствуют действительности.Документы:Помещения в собственности. Один совершеннолетний собственник. Без обременений и без перепланировок. Готовы быстро выйти на сделку. Собственник будет лично присутствовать на сделке. С удовольствием покажем все документы. Подходит под коммерческую ипотеку, при необходимости поможем с одобрением.Помещение:— Общая площадь: 33,2 м². Так же в продаже соседнее помещение 56,3 м²— Подвальный этаж.— Два входа: со двора и с улицы через парадную.— Хороший ремонт, помещение готово к использованию.— Электроснабжение: 3,3 кВт, возможно увеличение.— Над помещением расположена коммерция.— Небольшие коммунальные платежи.( ~ 1-2т. руб.)— Прямые договоры с ресурсоснабжающими организациями.— Можно использовать целиком или разделить на несколько рабочих зон.Локация:Проспект Стачек - активная магистраль Кировского района с плотным автомобильным и пешеходным трафиком. До метро ''Кировский завод'' около 5 минут пешком.Помещение расположено рядом с пересечением проспекта Стачек и улицы Новостроек. Вход через парадную выходит на проходное место, что даёт возможность разместить вывеску и быть заметным для потока людей.Рядом жилая застройка, коммерческие помещения, магазины, сервисы, остановки транспорта и метро. Локация хорошо подходит для бизнеса, которому важны доступность, поток клиентов и удобство для посетителей.Назначение:— Офис / клиентский центр.— Салон красоты / студия.— Образовательный центр.— Медицинские или бытовые услуги.— Шоурум.— Доходный арендный бизнес.Торг возможен, но после просмотра.Бесплатно проконсультируем по сделке. Звоните!Добавляйте в избранное, чтобы не потерять объявление.
33 м2
- Показать контакты
- Добавить в избранное
33 м2
3 999 999
120 482 /м2
