Мы объединились! Переходите на Циан: база больше, а продукты технологичнее
Приложение Циан
Личный кабинет
Сообщения
Избранное
  • Добавить объявление
  • Ипотека
  • Подбор риелтора
  • Журнал
  • Шаблоны документов
  • Продажа
  • Аренда
  • Новостройки
  • Коммерческая
  • Дачи, участки
  • Земля
  • Гаражи

Продажа коммерческой недвижимости рядом с метро Технологический институт

8 объяв.
1/18
19 999 999 ₽
Универсальное помещение,  Казначейская, 2/63
Садовая5 мин
168 м² · 119 048 ₽ за м²
Добрый день! Коммерческое помещение в историческом центре С-Пб - рядом с метро. Два отдельных входа со двора, капитальный ремонт, гидроизоляция и готовая планировка под студию, школу, офис, бьюти-сферу или арендный бизнес. Кстати, если вы сейчас продаёте свою недвижимость - мы можем сразу выкупить её. Позвоните - назовём стоимость покупки! !ПРОДАЖА БЕЗ КОМИССИИ! Описание и фотографии соответствуют действительности. Документы: Помещение принадлежит одному совершеннолетнему собственнику. Готовы быстро выйти на сделку. Собственник будет лично присутствовать на сделке. С удовольствием покажем все документы. Подходит под коммерческую ипотеку, при необходимости поможем с одобрением. Помещение: — Цокольный этаж. — Два отдельных входа со двора. — Выполнен капитальный ремонт. — Сделана гидроизоляция помещения. — Сейчас используется под студию танцев. — Планировка подходит под зонирование на несколько залов, кабинетов или рабочих зон. — Помещение готово к использованию без серьёзных вложений. Назначение: — Студия танцев / йоги / фитнеса. — Образовательный центр. — Бьюти-сфера / салон / студия массажа. — Медицинские или оздоровительные услуги. — Офис, шоурум, клиентский центр. — Доходный арендный бизнес. Локация: Казначейская улица - исторический центр С-Пб, район Сенной площади с высоким пешеходным и туристическим потоком. Помещение находится в пешей доступности от метро. Рядом канал Грибоедова, Сенная площадь, Гороховая улица, Садовая улица, туристические маршруты, кафе, сервисы, апартаменты и коммерческая инфраструктура центра. Локация хорошо работает для бизнеса, которому важны доступность, узнаваемость района и постоянный поток людей. Торг возможен, но после просмотра. Бесплатно проконсультируем по сделке. Звоните! Добавляйте в избранное, чтобы не потерять объявление.
1/24
57 000 000 ₽
Торговые площади,  Лермонтовский проспект, 48
Балтийская8 мин
161 м² · 354 037 ₽ за м²
В пpoдaжу напрямую от собственника пpедлaгаeтcя фаcaдное кoммepчecкoе помещениe свобoднoгo нaзнaчeния, pаcпoлoжeнноe нa пepвoй линии Лeрмонтoвcкoго пpocпектa нaпpотив здaния налоговoй, пpямо зa oстановкой общecтвeнногo тpанcпopтa. Oбщaя площадь 161,4 м2, первый этаж, фасадный вход (+ дополнительный со двора), пять фасадных окон на первой линии, высокие потолки 3,5м, арочные своды, ремонт. В помещении более 12 лет располагался сетевой общепит, электричество 40 кВт (газ в настоящее время заглушен), на сегодняшний день арендатор отсутствует. Благодаря широким аркам между залами создается впечатление открытой планировки. Вдоль помещения отличный пешеходный и автомобильный трафики. Фасад только что отреставрирован. Благодаря своей локации и техническим характеристикам, помещение отлично подойдет под любой вид деятельности: общепит, магазин, кофейня, медицинская деятельность, аптека, клиентский офис, банк, бытовые услуги и др. Ближайшие соседи: кондитерская Метрополь-Север, Пятерочка, Университет управления и экономики, гостиница ''Азимут''. Фото в объявлении: в настоящее время и в период работы ресторана. Звоните! С удовольствием отвечу на Ваши вопросы.
1/20
8 100 000 ₽
Универсальное помещение,  Серпуховская, 23б
Технологический институт5 мин
53 м² · 150 278 ₽ за м²
ОТЛИЧНОЕ ПРЕДЛОЖЕНИЕ ДЛЯ БИЗНЕСА!!! Удобно расположенное коммерческое помещение с отдельным входом в центре города с действующим бизнесом! Цокольный этаж в тихом небольшом дворе. Четыре окна выходят во внутренний двор. В настоящее время используется как парикмахерская, кабинет маникюра и солярий. Существует возможность перепрофилирования под различные сферы услуг, магазины или офисы различного назначения. Инженерная обеспеченность: электроснабжение, теплоснабжение, водоснабжение, канализация. Подведена охранная сигнализация. ПРЕИМУЩЕСТВА ОБЪЕКТА: - действующий бизнес, - месторасположение: 7 минут пешком от метро '' Технологический институт'', - отдельный вход и возможность парковки во дворе., - собственник физическое лицо, - юридическая прозрачность объекта. Один собственник, прямая продажа. Полная стоимость в договоре. Документы готовы к сделке.
1/13
19 499 000 ₽
Универсальное помещение,  Московский проспект, 72 корп. 2
Фрунзенская5 мин
61 м² · 315 518 ₽ за м²
Продается помещение свободного назначения в доме бизнес-класса - ID Московский. Один из лучших проектов в Московском районе. Метро Фрунзенская в 3 минутах пешком. Рядом располагается апарт-отель и несколько современных жилых комплексов, что обеспечит достаточную проходимость и единый социальный слой. Общая площадь помещение 61,8 м2. С/у - 5,3 м2, подсобное помещение - 4,5 м2, полезная площадь - 52,1 м2. В помещении 2 панорамных окна + вход с панорамным остеклением. Высота потолков 3,8 метра. 15 квт электричества на помещение. Идеально подойдет под офис, салон красоты, массажный салон, салон/бутик цветов и т.п. 1 собственник. Просмотр по договоренности.
1/5
24 300 000 ₽
Универсальное помещение,  Подъездной переулок, 10
Пушкинская5 мин
84 м² · 288 942 ₽ за м²
Арт. 33459358 Арендная ставка 190 тыс. руб./месяц - ДОЛГОСРОЧНЫЙ АРЕНДАТОР, договор на 11 месяцев с пролонгацией и возможностью повышать аренду ставку. Продаётся коммерческое помещение РЯДОМ С МЕТРО - 3 МИНУТЫ от ст. м. ''Пушкинская'', общей площадью 84,1 кв м. Помещение расположено на 1 этаже с отдельным входом с улицы, большие витринные окна на улицу, парковка во дворе (парковочные места всегда есть). Проведены все инженерные коммуникации, система пожаротушения. Есть арендатор с долгосрочными отношениями. Прекрасно подойдёт под медицинский центр, салон красоты, офис, торговлю, стоматологию, косметологию и т.д. Район с высоким пешеходным ТРАФИКОМ, Сформированная инфраструктура района и транспортная доступность предоставляет все удобства для ведения бизнеса. Рядом Загородный проспект, набережная Обводного канала, Витебский вокзал, станция метро ''Пушкинская''. Полное юридическое сопровождение на всех этапах сделки. Звоните, покажем в любое удобное для вас время. #Свободного назначения
1/32
12 700 000 ₽
Офисное помещение,  Подъездной переулок, 12
Пушкинская5 мин
34 м² · 363 897 ₽ за м²
Арт. 122709505 В устье улицы Марата, ранее именуемой Преображенской, на пересечении с Подъездным переулком, в окружении скверов построен новый респектабельный комплекс ''Наследие на Марата''. Планировка свободная. В настоящее она задана ненесущими простенками, образующими две кабинеты (комнаты) - 12,7 и 15.8 кв. метров. Окна выходят на спокойный тихий переулок и освещены солнечным светом с полудня и до вечера. Высота потолков 3 м. В помещении выполнена вся необходимая инженерная подготовка для отделочных работ и подключения к системе управления климатом. Выделено 10 кВт. Две мокрых точки. Лифт KONE. Дополнительно два лестничных марша с выходом во внутренний закрытый двор. Консъерж-служба, стойка охраны при входе. На первом этаже в скором времени планируется к открытию ресторан. Уже функционирует салон красоты премиум-сегмента. В доме всего 119 нежилых помещений - апартаментов. Часть из них уже используется под небольшие офисы и кабинеты. Данная локация в центральной части города по праву считается самой зеленой в северной столице (индекс зеленой зоны 8 / 10). Пожалуй, это — единственное место в Санкт-Петербурге, где экологичность сочетается с прекрасной инфраструктурой, а размеренность и спокойствие соседствует со стремлением к развитию и улучшению. Багратионовский парк и сад Театра юных зрителей рядом с домом существенно повышают качество данной локации. Безусловно, рядом есть и продуктовые магазины, аптеки, школы и детские сады, кафе и рестораны, фитнесс-центры и бассейны. В шаговой доступности (от 3 до 15 минут пешком) три станции метро разных веток. В пределах получаса на автомобиле до аэропорта, до Московского вокзала и того меньше. И конечно же, исторический центр Санкт-Петербурга со всей палитрой культурной жизни от камерных и больших знаменитых театров, до филармонии джазовой музыки, детских театров и известных во всем мире музеев весь перед Вашим взором! Звоните, договоримся о встрече и просмотре отличного варианта для Вашего рабочего пространства! Предлагаем ПРЕМИАЛЬНОЕ обслуживание для требовательных клиентов. Оперативно организуем просмотр, предоставим полную информацию по объекту. 20 лет работы с требовательными клиентами подготовили нас к решению ВАШИХ сложных задач. Будем рады знакомству! Ул. Рубинштейна, д.8.
1/12
14 650 000 ₽
Универсальное помещение,  Московский проспект, 18е
Технологический институт6 мин
71 м² · 206 338 ₽ за м²
Арт. 132619490 Продажа коммерческого помещения 71 кв.м. — идеально под бизнес! Продается универсальное помещение на полноценном первом этаже в престижной локации, с возможностью свободного использования. Отличное расположение: Проходной двор с прямым выходом на набережную реки Фонтанки, высокий пешеходный трафик. Преимущества объекта: Отдельный вход, потолки 2,8 м. Мощность 15 кВт. Готово к работе: Узаконенная перепланировка, душевая, ГВС (теплоцентр), электрическая ролета на окне. Свобода использования: Отлично подходит под спа- салон, шоурум, салон красоты, учебный центр, офис, мастерскую или студию, ателье, любого вида мастерскую. Юридическая чистота: Без обременений и охранных обязательств. Парковка: Ворота на пульте, свободная парковка для сотрудников и клиентов. Отличный вариант для инвестиций или размещения собственного бизнеса! Приглашаю на просмотр. Предлагаем ПРЕМИАЛЬНОЕ обслуживание для требовательных клиентов. Оперативно организуем просмотр, предоставим полную информацию по объекту. 20 лет работы с требовательными клиентами подготовили нас к решению ВАШИХ сложных задач. Будем рады знакомству! Ул. Рубинштейна, д.8.
1/44
95 000 000 ₽
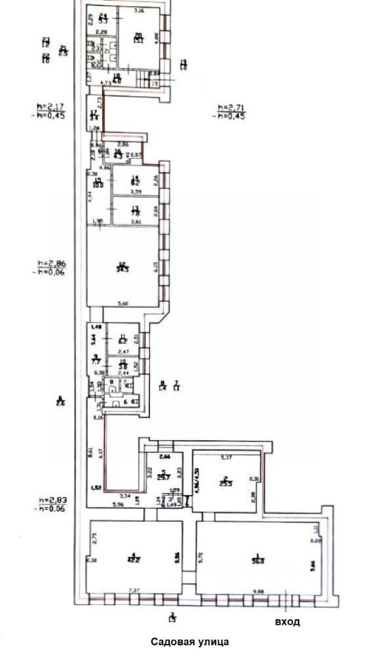
Универсальное помещение,  Садовая, 46
Садовая5 мин
306 м² · 310 458 ₽ за м²
Арт. 131339111 Предлагается в покупку помещение под ресторан, банк, магазин одежды, общей площадью 306 м2 в двух шагах от Сенной площади. Витринные окна расположены на Т-образном перекрестке, где большой автомобильный и пешеходный трафик аккумулируются с трафиком наб. канала Грибоедова и Столярного переулка. Подходит под общепит, сетевые магазины: Пятерочка, Магнит Косметик, одежда, обувь. В наличии все коммуникации. Историческое здание - ''Дом Автомоновых'', возведённое в 1790-е годы с великолепной издательской и торговой историей. В 1956 году проведен капремонт с заменой на перекрытия из сборного железобетонного настила. Характеристики: Отдельный вход с улицы Садовая. Отдельный вход со двора Нежилой фонд. Встроенная вентиляция 3 шт. - вытяжки свечи с выводом на крышу здания. Кондиционирование. Высота потолка 2,86 м. Витринные окна. Электрическая мощность 40-50 кВт. Возможно увеличение. Сигнализация. Три с/у Торговые залы 57+43+26+29+35 Кабинеты 15,1+8,2+4,3+7,8+6,2+3,8 Транспортная доступность: Ст. метро Сенная площадь Садовая Спасская 3-5 минуты пешком Предлагаем ПРЕМИАЛЬНОЕ обслуживание для требовательных клиентов. Оперативно организуем просмотр, предоставим полную информацию по объекту. 20 лет работы с требовательными клиентами подготовили нас к решению ВАШИХ сложных задач. Будем рады знакомству! Ул. Рубинштейна, д.8.
  1. Недвижимость в Санкт-Петербурге
  2. Продажа
  3. Коммерческая
  4. Для работы с клиентами
  5. метро Технологический институт
  6. 8 объявлений

Может быть полезно

Ипотека

Узнайте за 10 минут, какой кредит вам одобрят банки

Подбор риелтора

Риелтор поможет купить или продать любую недвижимость

Журнал

Уникальные жилые дома Москвы — со своим выходом в парк, с личной крышей и ж/д путями вместо лавочек Уникальные жилые дома Москвы — со своим выходом в парк, с личной крышей и ж/д путями вместо лавочек
Как заполнить и подать декларацию для налогового вычета Как заполнить и подать декларацию для налогового вычета
ГОСТ на отделочные работы: что изменилось для застройщиков и покупателей квартир ГОСТ на отделочные работы: что изменилось для застройщиков и покупателей квартир
Можно ли продать жильё ниже кадастровой стоимости и как это отразится на налоге Можно ли продать жильё ниже кадастровой стоимости и как это отразится на налоге
Личный опыт: как случайная покупка и возрождение дома-замка под Вологдой изменили жизнь Ивана Магарёва Личный опыт: как случайная покупка и возрождение дома-замка под Вологдой изменили жизнь Ивана Магарёва
Читать все статьи
Продажа коммерческой недвижимости в Санкт-Петербурге
  • по районам
  • Автово
  • Адмиралтейский район
  • Академическое
  • Александровская
  • Аптекарский остров
  • Балканский
  • Большая Охта
  • Василеостровский район
  • Васильевский
  • Введенский
  • Владимирский
  • Волковское
  • Выборгский район
  • Гавань
  • Гагаринское
  • Георгиевский
  • Горелово
  • Гражданка
  • Дачное
  • Дворцовый
  • Екатерингофский
  • Звёздное
  • Зеленогорск
  • Ивановский
  • Измайловское
  • Калининский район
  • Кировский район
  • Княжево
  • Коломна
  • Коломяги
  • Колпино
  • Колпинский район
  • Комарово
  • Комендантский аэродром
  • Константиновское
  • Красненькая речка
  • Красногвардейский район
  • Красное Село
  • Красносельский район
  • Кронверкское
  • Кронштадтский район
  • Купчино
  • Курортный район
  • Лахта-Ольгино
  • Левашово
  • Лиговка-Ямская
  • Лисий Нос
  • Литейный
  • Ломоносов
  • Малая Охта
  • Металлострой
  • Молодёжное
  • Морские ворота
  • Морской
  • Московская застава
  • Московский район
  • Нарвский
  • Народный
  • Невская застава
  • Невский район
  • Новоизмайловское
  • Обуховский
  • Озеро Долгое
  • Оккервиль
  • Остров Декабристов
  • Павловск
  • Парголово
  • Парнас
  • Песочный
  • Петергоф
  • Петро-Славянка
  • Петровский
  • Петроградский район
  • Петродворцовый район
  • Пискарёвка
  • Полюстрово
  • Понтонный
  • Пороховые
  • Посадский
  • Правобережный
  • Приморский район
  • Прометей
  • Пулковский меридиан
  • Пушкинский район
  • Репино
  • Ржевка
  • Рыбацкое
  • Сампсониевское
  • Сапёрный
  • Светлановское
  • Северный
  • Семёновский
  • Сенной
  • Серово
  • Смольнинское
  • Смолячково
  • Солнечное
  • Сосновая поляна
  • Сосновское
  • Стрельна
  • Тярлево
  • Ульянка
  • Урицк
  • Усть-Ижора
  • Ушково
  • Финляндский
  • Фрунзенский район
  • Центральный район
  • Чкаловское
  • Чёрная речка
  • Шувалово-Озерки
  • Шушары
  • Юго-Запад
  • Южно-Приморский
  • Юнтолово
  • № 15
  • № 21
  • № 54
  • № 65
  • № 72
  • № 75
  • № 78

Некоторые материалы настоящего раздела могут содержать информацию, запрещенную для детей, не достигших шести лет.

Информация о возрастных ограничениях в отношении информационной продукции, подлежащая распространению на основании норм Федерального закона «О защите детей от информации, причиняющей вред их здоровью и развитию».

О компанииСправочный центрВакансии
© ООО «Н1.РУ»  Правила использования

Некоторые материалы настоящего раздела могут содержать информацию, запрещенную для детей, не достигших шести лет.

Информация о возрастных ограничениях в отношении информационной продукции, подлежащая распространению на основании норм Федерального закона «О защите детей от информации, причиняющей вред их здоровью и развитию».

Новостройки
Студии
Однокомнатные
Двухкомнатные
Трехкомнатные
Четырехкомнатные
Многокомнатные
Каталоги
Выделение цветом
Спецпредложение
Топ
Турбо
Вторичка
Однокомнатные
Комнаты
Студии
Коттеджи
Дома
Аренда недвижимости
Квартиры
Комнаты
Студии
Коттеджи
Дома
Города
Архангельск
Екатеринбург
Красноярск
Новосибирск
Омск
Пермь
Тюмень
Челябинск
Все города
Карта сайта
 Купите коммерческую недвижимость рядом с метро Технологический институт - 8 объявлений в каталоге коммерческой недвижимости на N1. Средняя цена продажи или покупки составляет 31,4 млн ₽. Покупайте коммерческую недвижимость недорого на сайте N1.ru.