Универсальное помещение
Краснопутиловская, 69 Показать на карте
Краснопутиловская, 69 Показать на карте
Кировский район
Санкт-Петербург
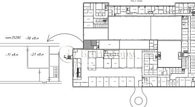
Предлагается в аренду универсальное помещение в бизнес-центре ''Цитадель'' Расположение:• Первый этаж делового комплекса• 30 метров от главного входа• Выход в просторный атриумный коридор через стеклянную входную группу Характеристики:• Площадь: 67,9 кв.м• Отделка: современный ремонт• Приточно-вытяжная вентиляция• Электрические розетки по периметру• Внутреннее помещение (без окон) Преимущества:• Готово к заселению• Подходит под офис, шоу-рум, студию, склад, сервисный центр• Развитая инфраструктура БЦ• Удобная логистика• Престижный адрес Идеально для:Офиса, учебного центра, студии, складских нужд, е-коммерции, фулфилмента, сервисного обслуживания и т.д.Все коммуникации подведены и готовы к работе. Возможен любой режим использования.Приглашаем на просмотр!
67 м2
- Показать контакты
- Добавить в избранное
67 м2
81 480 /мес.
1 200 /м2
