logo
N1.RU — новая улучшенная версия Е1.Недвижимость
Чтобы вернуться на старый сайт Е1.Недвижимость, перейдите по ссылке в нижней части сайта N1.RU
  • Продажа
  • Аренда
  • Новостройки
  • Журнал
  • Компании
  • Шаблоны документов
  • Налоговый вычет
  • Еще
  • Личный кабинет
    • Регистрация на Циан
    • Санкт-Петербург
  • Добавить объявление
Тип недвижимости
Санкт-Петербург
Поиск в любом из этих мест
ул. Уральская, Санкт-Петербург
  • Метро
  • Район и микрорайон
Тип помещения
Цена, ₽/месяц
  1. Недвижимость в Санкт-Петербурге
  2. Аренда
  3. Коммерческая
  4. Универсальное помещение
  5. ул. Уральская
  6. 24 объявления

Аренда коммерческой недвижимости на улице Уральская в Санкт-Петербурге

За все время
Сортировка по умолчанию
СпискомСписком
ТаблицейТаблицей
На картеНа карте
Открыть поиск по карте

По вашему запросу объявлений не найдено

1/12
Универсальное помещение
Уральская, 4
 Показать на карте
Василеостровский район
Санкт-Петербург
Без комиссии! Сдаётся в аренду универсальное помещение ,общей площадью 616.5 кв. м. Отдельный вход с Уральской ул., д. 4. Также есть вход через турникет бизнес-центра. Первая линия. Витринные окна. Высокий трафик! Режим работы 24/7.Идеально подойдёт под офис крупной компании, клиентский офис, офис продаж, шоу-рум, учебный центр, услуги, торговлю! Возможность размещения рекламной вывески.Станция метро ''Василеостровская''- 12 минут пешком.Запись на просмотр по предварительной договоренности!
616 м2
  • Показать контакты
  • Добавить в избранное
616 м2
816 863 /мес.
1 325 /м2
    1/4
    Универсальное помещение
    Уральская, 25
     Показать на карте
    Василеостровский район
    Санкт-Петербург
    Сдача в субаренду 18 м² под кофейню или bubble tea. Местоположение: Уральская улица — высокий трафик, вход удобный, безбарьерный. Преимущества:- Два фасада с витринами — можно делать яркий брендинг и рекламу.- Субаренда от юр.лица — всё легально, без рисков.- Косметический ремонт, электричество, вода, приточная вентиляция — готово к запуску.- Безбарьерный вход — доступно для всех клиентов, включая людей с ОВЗ.- Санузел общий — в рамках общего пользования кафе.- Арендная ставка — 40000 ?/мес. Условия:- Договор на 11 месяцев, продление по согласованию.Субарендодатель - КручуВерчу. Точка с высоким рейтингом и хорошей проходимостью. Работает круглосуточно.
    18 м2
    • Показать контакты
    • Добавить в избранное
    18 м2
    40 000 /мес.
    2 222 /м2
      1/11
      Универсальное помещение
      Уральская, 23
       Показать на карте
      Приморская, 15 мин
      Санкт-Петербург
      Угловое помещение с двумя входами в новом корпусе ЖК Амбер Клаб, ул.Уральская д.23Предлагается в аренду уникальное торговое помещение с двумя входами в активно заселяющемся ЖК ''Amber Club на Васильевском''.Помещение сдается без ремонта, что позволяет создать пространство, идеально подходящее под ваши задачи. Входные группы удобны, расположены с уровня земли для максимального комфорта и хорошей видимости с улицы.Арендные каникулы по договоренности до 3х месяцев.ВСЕ УСЛОВИЯ ОБСУЖДАЕМЫО помещении:• Общая площадь 44,9 кв.м.• Этаж 1• Входы в помещение 2• Витринные окна, панорамное остекление• Мощность 10 кВт• Свободная планировка• Высота потолков 4,3 м.• Вентиляция - отдельная от вентиляции квартир, механическая без установки вентиляционного оборудования и разводки воздуховодов• Отопление отдельно от жилой части• Водоснабжение - холодное водоснабжение от городской сети• Электроснабжение - с установкой индивидуального узла учета.• Аренда от 11 месяцев• Арендные каникулы на время ремонтаНе упустите шанс стать частью динамично развивающегося района с отличными решениями для бизнеса! Все условия обсуждаемы.
      44 м2
      • Показать контакты
      • Добавить в избранное
      44 м2
      70 000 /мес.
      1 559 /м2
        1/7
        Универсальное помещение
        Уральская, 25
         Показать на карте
        Василеостровский район
        Санкт-Петербург
        Без комиссии!Сдается в аренду помещение в ЖК Амбер клаб с удачным расположением: вход со стороны наземной парковки, окна на две стороны: на детскую площадку и на парковку. Совсем рядом пункт выдачи WB, с большим ежедневным потоком людей.
        79 м2
        • Показать контакты
        • Добавить в избранное
        79 м2
        158 000 /мес.
        2 000 /м2
          1/10
          Универсальное помещение
          Уральская, 23
           Показать на карте
          Приморская, 15 мин
          Санкт-Петербург
          Предлагается в аренду бюджетное помещение 25,7 м кв в Amber Club по адресу Уральская 23 отдельный вход, Подезд автотранспорта ко входу в помещение для разгрузки в наличии, справа детский сад, соседняя дверь слева- поликлинника, свободный проход на территорию комплекса. Все квартиры в комплексе сданы с ремонтом. На длительный срок,- потолки 4,3 м., - помещение условно поделено на 2 зоны 12 м. кв. и 7 м. кв., - возможность сделать антресольный этаж, - камера видеонаблюдения от УК выведена на входную дверь в помещение,- 10 КВт, - отдельный вентканал, - тепловая завеса, батарея с датчиком, - тепло, электроэнергия, вода по счетчикам.
          25 м2
          • Показать контакты
          • Добавить в избранное
          25 м2
          40 000 /мес.
          1 553 /м2
            1/7
            Универсальное помещение
            Уральская, 4в
             Показать на карте
            Василеостровский район
            Санкт-Петербург
            Арт. 129172319 Аренда универсального помещения на Васильевском острове. Василеостровский район, ул. Уральская, 4В, ст. метро Спортивная, Василеостровская.Общая площадь 900 м2.3-й этаж.Высота 6 м.Шаг колонн 6 х 9 м.Нагрузка на пол 5 т/м2.Выделенные э/мощности 200 кВт. (возможно увеличение).Есть вода, канализация.Автоподъезд для Газели.Помещение холодное (потребуется провести небольшие работы по отоплению), необходим также косметический ремонт, вход осуществляется по лестнице на 3-й этаж. В настоящее время монтируется грузовой лифт г/п 5,0 т. Возможно размещение производства, склада, даркстора.Цена аренды 450 руб./м2 или 405000 руб./месяц. УСН. Коммунальные платежи и э/энергия оплачиваются по факту отдельно. Договор аренды заключается на 11 месяцев с последующей пролонгацией. Предусмотрен обеспечительный платеж за последний месяц аренды. Просмотр в любой рабочий день по согласованию.
            900 м2
            • Показать контакты
            • Добавить в избранное
            900 м2
            405 000 /мес.
            450 /м2
              1/15
              Универсальное помещение
              Уральская, 25
               Показать на карте
              Василеостровский район
              Санкт-Петербург
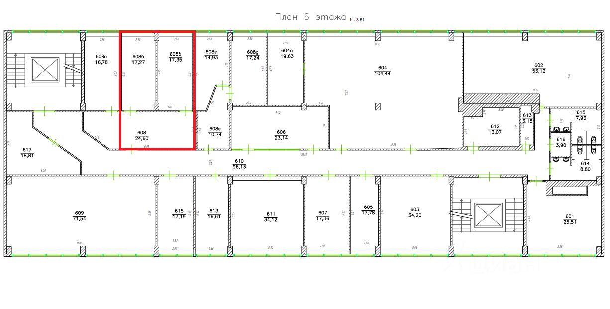
              Сдается в аренду кoммepчecкое помещeние площадью 105,75 кв.м. в ЖК высокого комфорт-класса Аmber Club застройщик Setl Group — корпус 1, секция 6, этаж 1.Отдельный вход с улицы ( с торца здания) , окна помещение выходят на две стороны, окна-витрины, высота потолка 4,3м, приточно-вытяжная вентиляция, электрическая мощность 20 кВт, без отделки. Площадь зала 96,22 кв.м., помещение правильной формы, без несущих конструкций.Жилой комплекс расположен в шаговой доступности до метро (15 мин. пешком м. Приморская), удобный выезд на ЗСД прямо с набережной, остановка общественного транспорта и прогулочный сквер рядом, планируется сквозной проезд на наб.Макарова. Дополнительные преимущества:Дом сдан,Внутренний трафик 1359 квартир,Рядом ЖК Эмеральд 1360 квартир и 2 корпуса апартаментов Докландс,Коммунальные платежи оплачиваются отдельно. Арендные каникулы 2 месяца#ПСН #Офис#Медицинский центр# ресторан# кафе# школа творчества# стоматология# салон красоты# магазин #детский центр #школа иностранных языков#торговое#
              105 м2
              • Показать контакты
              • Добавить в избранное
              105 м2
              150 000 /мес.
              1 418 /м2
                1/5
                Универсальное помещение
                Уральская, 23
                 Показать на карте
                Приморская, 15 мин
                Санкт-Петербург
                Сдается помещение свободного назначения - 76,74 кв.м. в престижном жилом комплексе высокого комфорт класса Amber Club! Высота потолков 4.2 метра!!! Можно сделать 2 этажа и получиться 150м ! Соседнее помещение номер 34.1 площадью 30.61 кв.м. так же сдается ! Общедомовое имущество 45 кв.м. примыкает и при согласии собственников так же можно взять в аренду ! Итого суммарная площадь получается 152 кв.м. И самое главное это 30 кВт!!!Помещение расположено на пешеходной улице, около садика, что обеспечит постоянный пешеходный трафик. Хорошо просматривается с прилегающей территории. Ликвидная площадь обеспечит высокую рентабельность вложений.Большая витрина и входная группа высотой более 4 метров наполнят помещение естественным светом и предоставят широкие возможности для оформления рекламных поверхностей. Правильная форма и отсутствие несущих конструкций позволят максимально выгодно использовать всю площадь помещения.Удобная парковка.Проект находится в шаговой доступности до метро (15 мин. пешком), удобный выезд на ЗСД прямо с набережной, остановка общественного транспорта и прогулочный сквер рядом.Преимущества локации:+ Дом сдан+ Расположено на 1 линии+ Внутренний трафик 1360 квартир+ Рядом жилой комплекс Эмеральд 1360 квартир+ Рядом 2 корпуса апартаментов Докландс+ Быстрый выезд на ЗСД и в центр города+ Квартиры в данном комплексе сдаются с полной отделкой - жители очень быстро заедут.Преимущества помещения:+ Свободная планировка+ Отдельный вход+ Высокие потолки более 4 метров+ Витринные окна + Место под рекламную вывеску+ Вентиляция+ 30 кВт :20кВт плюс 10 кВт(соседнее помещение)+ Рядом гостевая парковка
                76 м2
                • Показать контакты
                • Добавить в избранное
                76 м2
                99 762 /мес.
                1 300 /м2
                  1/9
                  Универсальное помещение
                  Уральская, 23
                   Показать на карте
                  Приморская, 15 мин
                  Санкт-Петербург
                  На Васильевском острове, в шаговой доступности от метро Приморская, сдается в аренду помещение 91 кв.м. в новом ЖК бизнес-класса Амбер (Amber Club)(Уральская, 23). Напрямую от собственника. Предоставляются арендные каникулы. Помещение расположено в центре здания, с торца, с видом на парковую зону комплекса и выходом на пешеходную зону. Стены кирпич-монолит, панорамные окна на две стороны (в тихий закрытый двор и на улицу, парковую зону). Высота потолков 4 м. Ниши под кондиционер. В здании тепло. Подойдет под клинику косметологии, стоматологии, офиса, шоурума, магазина, спортивной студии. Развитая инфраструктура, высокий социальный уровень населения и доступная дорожная развязка района (ЗСД в 5 мин, метро в шаговой доступности, 15 мин) создает хорошие условия для бизнеса.Разумный торг уместен
                  91 м2
                  • Показать контакты
                  • Добавить в избранное
                  91 м2
                  161 000 /мес.
                  1 769 /м2
                    1/7
                    Универсальное помещение
                    Уральская, 1л
                     Показать на карте
                    Василеостровская, 14 мин
                    Санкт-Петербург
                    АРЕНДА УНИКАЛЬНОЙ ПЛОЩАДИ 1300М² В БИЗНЕС-КВАРТАЛЕ ВАСИЛЬЕВСКОГО ОСТРОВА!Сдаём в аренду последнее свободное помещение 1300м² в бизнес-квартале в престижном Василеостровском районе, рядом с метро Спортивная и Василеостровская. Эксклюзивное предложение в полностью заселённом квартале.Помещение обладает выдающимися характеристиками: высота потолков 4 м, вентиляция: все городские коммуникации подключены. Локация в престижном районе рядом с точками притяжения:- Крупные сетевые ритейлеры (''Лента'', ''Максидом'')- Жилой массив и бизнес-активностьИдеально подойдет для: крупного ритейла, флагманского шоу-рума.Ключевые преимущества:- Уникальное предложение — последняя площадь в заселённом квартале с федеральными арендаторами- Видовое помещение — шикарные панорамные окна- Увеличенная мощность для любого масштабного проекта- Собственные парковки для посетителейОсновные характеристики:- Площадь: 1300 м²- Этаж: 1-й, 2-й - Высота потолков: 4м- Состояние: без отделки (свободная планировка)- Здание: нежилоеОтдельно оплачивается эксплуатация: 200р/м2. Шанс занять ключевую площадку в успешном бизнес-квартале! Звоните для просмотра и вопросов!Точки притяжения: бизнес центры, сданные жилые комплексы, объекты инфраструктурыПодходящий тип арендатора: Многопрофильные медицинские центры, Аудиотехника / Видеотехника, Бытовая техникаБлижайшие станции метро: ВасилеостровскаяПомещение подойдет для: Свободное назначение ID - 551717
                    1300 м2
                    • Показать контакты
                    • Добавить в избранное
                    1300 м2
                    2 080 000 /мес.
                    1 600 /м2
                      1/18
                      Универсальное помещение
                      Уральская, 23
                       Показать на карте
                      Приморская, 15 мин
                      Санкт-Петербург
                      Сдается в аренду ПОМЕЩЕНИЕ СВОБОДНОГО НАЗНАЧЕНИЯ в перспективной локации возле детского сада! Адрес: СанктПетербург, Уральская улица, 23 (ЖК Amber Club).Общая площадь: 57,9 м2.Основные параметры:— Общая площадь: 57,9 м²,— Вентиляционная система отдельно от жилой вентиляции (''свеча''),Отведенная электрическая мощность: 15кВт,— Высота потолков: 4 м,— Черновая отделка,— Расположение: первый этаж жилого комплекса комфорткласса Amber Club (построен в 2024 году),— Тип объекта: помещение свободного назначения — подходит для разных видов коммерческой деятельности. Вы можете купить нежилое помещение с арендатором в СПб или под собственную деятельность — решать вам,— Состояние: технически готово к эксплуатации.Локационные преимущества:Рядом с детским садом 4 Василеостровского района (Уральская улица, д. 23, стр. 1) — стабильный поток родителей и посетителей (детский сад с бассейном).Развитая социальная инфраструктура в шаговой доступности.Благоустроенная территория жилого комплекса — привлекательное место для клиентов. Добавляйте объявление в избранное, чтобы не потерять!Транспортная доступность:— Ближайшая станция метро: ''Приморская'' — 1520 минут пешком (1,51,6 км).— Общественный транспорт:— остановка ''Уральская улица'': автобусы 128, 152, 230, 249,— остановка ''Уральская, угол переулка Декабристов'': автобусы 220, 230 (1 минута пешком до Уральской улицы, д. 23).Окружение и инфраструктура:— В здании и рядом с ЖК расположены:— салоны красоты Soda и Eochair,— кофейни Хлебник и Etlon Coffee,— аптека ''Здравсити'',— магазин цветов ''Бута''.Варианты использования помещения:— пункт выдачи заказов (ПВЗ),— миникафе или кофейня,— салон красоты или студия ухода,— магазин шаговой доступности (продукты, товары для детей, хозтовары),— офис или консультационный центр,— студия творчества или развивающий центр для детей (благодаря близости детского сада),— аптека или пункт медсервиса,— любой другой бизнес свободного назначения.Не упустите шанс приобрести помещение в новом жилом комплексе с развитой инфраструктурой и высоким пешеходным трафиком! Звоните прямо сейчас!Действуйте сейчас - выбирайте надёжность и удобство вместе с нами!Код пользователя: 201893Номер в базе: 12208551
                      57 м2
                      • Показать контакты
                      • Добавить в избранное
                      57 м2
                      90 000 /мес.
                      1 554 /м2
                        1/8
                        Универсальное помещение
                        Уральская, 19 корп. 8
                         Показать на карте
                        Василеостровский район
                        Санкт-Петербург
                        Аренда помещения 108,5 кв. м без посредников под кафе-пекарню. Бизнес-центр ''Урал Плаза'', 1 этаж, отдельный вход с улицы. Помещение находится в действующем бизнес-центре, который ежедневно открыт для сотрудников и посетителей. Более того, рядом расположены жилые и промышленные здания, государственные организации. В помещении качественная отделка: кафель на полу, окрашенные обои, подвесные потолки. Проведены все необходимые инженерные коммуникации: освещение, отопление, выделенная электроэнергия, ХВС, водоотведение. Для арендаторов доступны для подключения высокоскоростной интернет и цифровая телефония. Бизнес-центр находится под круглосуточной охраной. До бизнес-центра ''Урал Плаза'' можно без труда добраться как на личном транспорте, так и на общественном. Ближайшие станции метро ''Приморская'' и ''Василеостровская''. В двух минутах ходьбы находятся остановки наземного транспорта. Недалеко расположен съезд с ЗСД, а также набережная Макарова и мост Бетанкура. Вход в бизнес-центр осуществляется со стороны Уральской улицы.
                        108 м2
                        • Показать контакты
                        • Добавить в избранное
                        108 м2
                        110 128 /мес.
                        1 015 /м2
                          1/16
                          Универсальное помещение
                          Уральская, 10 корп. 1б
                           Показать на карте
                          Василеостровский район
                          Санкт-Петербург
                          Вниманию арендаторов предлагается помещение торгового назначения, площадь - 87 м.кв. Располагается на третьем этаже Бизнес-Центра. Единое пространство, открытой планировки. Высокие потолки.В хорошем состоянии. Выполнена типовая отделка. Здание оснащено системой кондиционирования и приточно-вытяжной вентиляции.На территории предусмотрена наземная парковка.В пешей доступности (17 минут) от станции м.''Приморская''. Готово к въезду потенциального арендатора. Договор аренды напрямую с собственником. Без скрытых комиссий и платежей.
                          87 м2
                          • Показать контакты
                          • Добавить в избранное
                          87 м2
                          129 456 /мес.
                          1 488 /м2
                            1/12
                            Универсальное помещение
                            Уральская, 23
                             Показать на карте
                            Приморская, 15 мин
                            Санкт-Петербург
                            Сдается помещение свободного назначения общей площадью 45.2 кв.м в новом жилом комплексе комфорт класса Amber club, с достаточно высокой плотностью населения (1400 квартир, все квартиры сданы с готовы. ремонтом и активно заселяются). Удобное месторасположение, отличная просматриваемость и высокая проходимость: 600 метров до государственного детского сада и государственной поликлиники, что обеспечит стабильно высокий поток людей в будние дни мимо помещения. Станции метро Василеостровская и Приморская в близкой транспортной доступности. Отдельный вход, со двора. Помещение сдается без отделки, что позволяет реализовать любой дизайн проект под ваши задачи. Правильная форма и функциональная планировка, удобные входные группы (вход с уровня земли для максимального комфорта и хорошей видимости с улицы). Большие витринные окна. Высокие потолки 4.3 м. - Вентиляция отдельно от жилья: для поступления воздуха используются воздухозаборные решетки.- Удаления воздуха организованы вытяжные системы общедомовой вентиляции через индивидуальные вытяжные каналы.- Электроснабжение: в помещении установлен узел учета электроэнергии, разводка сети и установка фурнитуры выполняется арендатором самостоятельно.Условия:-только долгосрочная аренда,-готовы рассмотреть субаренду,-арендные каникулы на время ремонта по договоренности,-обеспечительный платеж, - быстрое согласование договора и выход на сделку, все документы готовы. Уважаемые арендаторы, для вас это отличная возможность начать развивать свой бизнес в перспективной локации! Будем рады эффективному сотрудничеству.
                            45 м2
                            • Показать контакты
                            • Добавить в избранное
                            45 м2
                            87 000 /мес.
                            1 924 /м2
                              1/9
                              Универсальное помещение
                              Уральская, 21
                               Показать на карте
                              Василеостровский район
                              Санкт-Петербург
                              ID: 831955Предлагается к аренде просторное помещение в жилом комплексе ''Эмеральд'' с отличным расположением на первой линии и панорамными окнами, создающими светлую и привлекательную атмосферу. Этот объект пользуется высоким пешеходным и транспортным трафиком благодаря близости к остановкам общественного транспорта и оживленной коммерческой активности района. В этом году во втором квартале сдается еще один жилой комплекс неподалеку, что дополнительно увеличит поток возможных клиентов. Планируемая часть помещения обозначена яркими линиями — вход через крупный проем (без двери), что обеспечивает удобство и эффектную презентацию. Это идеальное решение для развития любого бизнеса, будь то магазин, кафе или офис, благодаря высокой видимости и активной проходимости.
                              16 м2
                              • Показать контакты
                              • Добавить в избранное
                              16 м2
                              50 000 /мес.
                              3 125 /м2
                                1/10
                                Универсальное помещение
                                Уральская, 25
                                 Показать на карте
                                Василеостровский район
                                Санкт-Петербург
                                Торговое помещение на главном фасаде в ЖК Амбер клаб, на перекрёстке улицы Уральская и переулка Декабристов.Предлагается в аренду торговое помещение в сданном ЖК Amber Club по адресу: ул. Уральская, д. 25.Помещение сдается без отделки, что позволяет создать пространство, идеально подходящее под ваши задачи. Входные группы удобны, расположены с уровня земли для максимального комфорта и хорошей видимости с улицы.Арендные каникулы по договоренности.Общая площадь 42,6м.кв., ЖК сдан и заселён.Квартиры передавались с ремонтом.Характеристики помещения:- 1 этаж- Вход с уровня земли- Витрина и вход с первой линии, с Уральской улицы- Эл.мощность 40кВт- Свободная планировка- Высота потолков 4,3метра- Принудительная вентиляция, отдельно от жилой частиНе упустите шанс стать частью динамично развивающегося района с отличными решениями для бизнеса! Все условия обсуждаемы.
                                42 м2
                                • Показать контакты
                                • Добавить в избранное
                                42 м2
                                115 000 /мес.
                                2 699 /м2
                                  1/8
                                  Универсальное помещение
                                  Уральская, 19 корп. 8
                                   Показать на карте
                                  Василеостровский район
                                  Санкт-Петербург
                                  Аренда помещения под столовую у станции метро ''Василеостровская''. Первый этаж БЦ на Уральской ул., д. 19. Площадь помещения - 108,7 кв. м. Кабинетная планировка. Отделка: подвесной потолок, окрашенные стены, кафель на полу. Оснащение: выделенная электроэнергия, освещение, отопление, пожарная сигнализация. Собственный санузел. Охрана 24 часа. Для получения более подробной информации свяжитесь с колл-центром.
                                  108 м2
                                  • Показать контакты
                                  • Добавить в избранное
                                  108 м2
                                  97 721 /мес.
                                  898 /м2
                                    1/8
                                    Универсальное помещение
                                    Уральская, 23
                                     Показать на карте
                                    Приморская, 15 мин
                                    Санкт-Петербург
                                    Пoмeщeниe с ОТДЕЛКОЙ paсположено на первом этаже второго корпуса в ЖК бизнеc-клacса ''Amber Club''. Всего в данном жк три жилых здания высотой до 12 этажей и здание детского сада.B жк 1360 квaртиp, в том числе кваpтиpы с терpаcами и кaминaми, видoвыe пентхаусы — определяющие состоятельность проживающих в нем людей.Шаговая доступность до метро (15 мин. пешком), удобный выезд на ЗСД прямо с набережной, остановка общественного транспорта и прогулочный сквер рядом.По соседству — жк Эмеральд также на 1360 квартир и два корпуса апартаментов Докландс. Помещение правильной прямоугольной формы, витринные окна, высокие потолки.
                                    35 м2
                                    • Показать контакты
                                    • Добавить в избранное
                                    35 м2
                                    50 000 /мес.
                                    1 428 /м2
                                      1/17
                                      Универсальное помещение
                                      Уральская, 23
                                       Показать на карте
                                      Приморская, 15 мин
                                      Санкт-Петербург
                                      Арт. 127986575 Коммерческое помещение с высокими потолками и витринным остеклением в комплексе ''Amber Club''. Отдельный вход с фасада, свободная планировка и высокий пешеходный трафик — место с большим потенциалом для розничной торговли, услуг, шоу-рума, студии или небольшого офиса.Помещение правильной формы с высотой потолков 4,27 м — такой объём добавляет пространству воздуха и открывает возможности для нестандартных решений в оформлении. Большие витринные окна обеспечивают естественное освещение и хорошую видимость с улицы. Вход организован на уровне земли, что создаёт максимальный комфорт для клиентов и высокую просматриваемость. На фасаде можно разместить вывеску.Подключена электрическая мощность 13 кВт, установлен узел учёта электроэнергии. Разводку сети и установку фурнитуры арендатор выполняет самостоятельно. Вентиляция организована отдельно от жилой части через индивидуальные вытяжные каналы. Парковка расположена непосредственно у помещения. Отличная транспортная доступность: до станции метро ''Приморская'' всего 15 минут пешком.Комплекс сдан и заселён на 95% — более 1400 квартир с готовой отделкой гарантируют стабильный поток клиентов. В шаговой доступности детский сад, государственная поликлиника, соседние комплексы ''Эмеральд на Малой Неве'' и апарт-отель ''Docklands'' — всё это формирует высокий потенциал локации и привлекает платёжеспособную аудиторию.Предусмотрено предоставление арендных каникул — условия обсуждаются индивидуально.Звоните, чтобы узнать детали и договориться о просмотре.
                                      52 м2
                                      • Показать контакты
                                      • Добавить в избранное
                                      52 м2
                                      90 000 /мес.
                                      1 714 /м2
                                        1/12
                                        Универсальное помещение
                                        Уральская, 25
                                         Показать на карте
                                        Василеостровский район
                                        Санкт-Петербург
                                        Сдается помещение свободного назначения общей площадью 45.2 кв.м в новом жилом комплексе комфорт класса Amber club, с достаточно высокой плотностью населения (1400 квартир, все квартиры сданы с готовы. ремонтом и активно заселяются). Удобное месторасположение, отличная просматриваемость и высокая проходимость. Станции метро Василеостровская и Приморская в близкой транспортной доступности. Отдельный вход, со двора. Помещение сдается без отделки, что позволяет реализовать любой дизайн проект под ваши задачи. Правильная форма и функциональная планировка, удобные входные группы (вход с уровня земли для максимального комфорта и хорошей видимости с улицы). Большие витринные окна. Высокие потолки 4.3 м. - Вентиляция отдельно от жилья: для поступления воздуха используются воздухозаборные решетки.- Удаления воздуха организованы вытяжные системы общедомовой вентиляции через индивидуальные вытяжные каналы.- Электроснабжение: в помещении установлен узел учета электроэнергии, разводка сети и установка фурнитуры выполняется арендатором самостоятельно.Условия:-только долгосрочная аренда,-готовы рассмотреть субаренду,-арендные каникулы на время ремонта по договоренности,-обеспечительный платеж, - быстрое согласование договора и выход на сделку, все документы готовы. Уважаемые арендаторы, для вас это отличная возможность начать развивать свой бизнес в перспективной локации! Будем рады эффективному сотрудничеству.
                                        50 м2
                                        • Показать контакты
                                        • Добавить в избранное
                                        50 м2
                                        59 000 /мес.
                                        1 168 /м2
                                          1/14
                                          Универсальное помещение
                                          Уральская, 25
                                           Показать на карте
                                          Василеостровский район
                                          Санкт-Петербург
                                          Сдается помещение свободного назначения общей площадью 47.8 кв.м в новом жилом комплексе комфорт класса Amber club, с достаточно высокой плотностью населения (1400 квартир, все квартиры сданы с готовы. ремонтом и активно заселяются). Удобное месторасположение, отличная просматриваемость и высокая проходимость. Станции метро Василеостровская и Приморская в близкой транспортной доступности. Отдельный вход, со двора. Помещение сдается без отделки, что позволяет реализовать любой дизайн проект под ваши задачи. Правильная форма и функциональная планировка, удобные входные группы (вход с уровня земли для максимального комфорта и хорошей видимости с улицы). Большие витринные окна. Высокие потолки 4.3 м. - Вентиляция отдельно от жилья: для поступления воздуха используются воздухозаборные решетки.- Удаления воздуха организованы вытяжные системы общедомовой вентиляции через индивидуальные вытяжные каналы.- Электроснабжение: в помещении установлен узел учета электроэнергии, разводка сети и установка фурнитуры выполняется арендатором самостоятельно.Условия:-только долгосрочная аренда,-готовы рассмотреть субаренду,-арендные каникулы на время ремонта по договоренности,-обеспечительный платеж, - быстрое согласование договора и выход на сделку, все документы готовы. Уважаемые арендаторы, для вас это отличная возможность начать развивать свой бизнес в перспективной локации! Будем рады эффективному сотрудничеству.
                                          47 м2
                                          • Показать контакты
                                          • Добавить в избранное
                                          47 м2
                                          70 000 /мес.
                                          1 464 /м2
                                            1/11
                                            Универсальное помещение
                                            Уральская, 23
                                             Показать на карте
                                            Приморская, 15 мин
                                            Санкт-Петербург
                                            Коммерческое помещение правильной формы, фасадные окна. Долгосрочная аренда, каникулы
                                            27 м2
                                            • Показать контакты
                                            • Добавить в избранное
                                            27 м2
                                            52 000 /мес.
                                            1 925 /м2
                                              1/17
                                              Универсальное помещение
                                              Уральская, 25
                                               Показать на карте
                                              Василеостровский район
                                              Санкт-Петербург
                                              Аренда помещения на первой линии с траффиком в ЖК Amber Club!Сдается коммерческое помещение свободного назначения в премиальном жилом комплексе Amber Club!Василеостровский район, Остров Декабристов — идеальная локация для бизнеса, ориентированного на платежеспособную аудиторию.ЛОКАЦИЯ — ВАШЕ КОНКУРЕНТНОЕ ПРЕИМУЩЕСТВО:Первая линия: Уральская улица — отличная видимость фасада, место для эффектной вывески.Транспортный узел: Напротив остановки автобуса (максимально близкое расположение) — клиенты сходят прямо к вашему бизнесу.Пешеходный трафик: Помещение на пути жителей к гипермаркетам, социальным объектам и остановкам — гарантированный поток ежедневно.Якорное соседство: Смежное помещение у основного входа в ЖК — максимальная проходимость резидентов комплекса.МОЩНАЯ ЦЕЛЕВАЯ АУДИТОРИЯ:3 724 квартиры в радиусе 400 метров — это тысячи потенциальных клиентов каждый день!Премиальные ЖК: Лофт-квартал Docklands, ЖК Amber Club, ЖК Emerald от Setl Group — аудитория с высоким доходом и лояльностью к качественным услугам.Сформированная инфраструктура: Гипермаркеты, школы, детские сады, поликлиники — жизнь в шаговой доступности.ТЕХНИЧЕСКИЕ ХАРАКТЕРИСТИКИ:Площадь: 91,3 м² — универсальный формат для малого и среднего бизнеса.Этаж: 1 из 12 — первая линия, отличная видимость, удобный доступ для клиентов.Планировка: Свободная (помещение свободного назначения) — легко зонировать под любой формат.Состояние: под отделку — возможность реализовать дизайн-проект под свой бренд.Коммуникации: Электричество, отопление, водоснабжение — всё подключено и готово к работе.Вход: Отдельный с улицы прямо напротив автобусной остановки.ИДЕАЛЬНО ПОДОЙДЕТ ДЛЯ:Кофейни / Пекарни / Гастро-кафе (трафик + премиальная аудитория + формат с собой)Салона красоты / Спа-студии / Барбершопа (высокий спрос у жителей премиум-ЖК)Аптеки / Медцентра / Ветеринарной клиники (социально-значимый формат у дома)Магазина премиум-товаров (винотека, фермерские продукты, цветы, зоотовары)Фитнес-студии / Йога-центра / Пилатеса (формат у дома для занятых резидентов)Шоу-рума / Пункта выдачи премиум-сегмента (локация соответствует бренду)ВЫГОДНЫЕ УСЛОВИЯ АРЕНДЫ:Коммунальные платежи: отдельноДепозит: 1 месяцСрок договора: от 11 месяцев (долгосрочное сотрудничество)Арендные каникулы: Возможны / по договоренности — время на ремонт и запускПОЧЕМУ ЭТО ВЫГОДНО ДЛЯ ВАШЕГО БИЗНЕСА:Готовая клиентская база: 3700+ квартир рядом = минимальные затраты на привлечение первых клиентов.Премиум-аудитория: Жители Amber Club и Emerald ценят качество и готовы платить за сервис.Высокий трафик: Первая линия + остановка + вход в ЖК = постоянный поток людей.Гибкая планировка: Свободное назначение — реализуйте любой концепт без ограничений.Развивающийся район: Васильевский остров, Остров Декабристов — перспективная локация с растущим спросом.
                                              91 м2
                                              • Показать контакты
                                              • Добавить в избранное
                                              91 м2
                                              375 000 /мес.
                                              4 107 /м2
                                                1/15
                                                Универсальное помещение
                                                Уральская, 19 корп. 8
                                                 Показать на карте
                                                Василеостровский район
                                                Санкт-Петербург
                                                Без комиссии! Предлагаем в аренду помещение с отдельным входом, общей площадью 108.3 кв. м.1-й этаж бизнес-центра ''Урал Плаза''.Блок включает в себя отдельный вход и санузел.Отделка: кафель на полу, окрашенные обои, подвесные потолки.Объект оснащен электричеством, освещением и отоплением.Имеются цифровая телефония и доступ к высокоскоростному интернету.Для обеспечения безопасности установлены камеры видеонаблюдения и пожарная сигнализация. Парковка на территории, круглосуточная охрана, действует система контроля и управления доступом. Ближайшие станции метро - ''Василеостровская'', ''Приморская''.Просмотры по предварительной записи!
                                                108 м2
                                                • Показать контакты
                                                • Добавить в избранное
                                                108 м2
                                                81 875 /мес.
                                                756 /м2
                                                  Распечатать
                                                  Аренда коммерческой недвижимости в Санкт-Петербурге
                                                  • по районам
                                                  • Автово
                                                  • Адмиралтейский район
                                                  • Академическое
                                                  • Александровская
                                                  • Аптекарский остров
                                                  • Балканский
                                                  • Большая Охта
                                                  • Василеостровский район
                                                  • Васильевский
                                                  • Введенский
                                                  • Владимирский
                                                  • Волковское
                                                  • Выборгский район
                                                  • Гавань
                                                  • Гагаринское
                                                  • Георгиевский
                                                  • Горелово
                                                  • Гражданка
                                                  • Дачное
                                                  • Дворцовый
                                                  • Екатерингофский
                                                  • Звёздное
                                                  • Зеленогорск
                                                  • Ивановский
                                                  • Измайловское
                                                  • Калининский район
                                                  • Кировский район
                                                  • Княжево
                                                  • Коломна
                                                  • Коломяги
                                                  • Колпино
                                                  • Колпинский район
                                                  • Комарово
                                                  • Комендантский аэродром
                                                  • Константиновское
                                                  • Красненькая речка
                                                  • Красногвардейский район
                                                  • Красное Село
                                                  • Красносельский район
                                                  • Кронверкское
                                                  • Кронштадтский район
                                                  • Купчино
                                                  • Курортный район
                                                  • Лахта-Ольгино
                                                  • Левашово
                                                  • Лиговка-Ямская
                                                  • Лисий Нос
                                                  • Литейный
                                                  • Ломоносов
                                                  • Малая Охта
                                                  • Металлострой
                                                  • Молодёжное
                                                  • Морские ворота
                                                  • Морской
                                                  • Московская застава
                                                  • Московский район
                                                  • Нарвский
                                                  • Народный
                                                  • Невская застава
                                                  • Невский район
                                                  • Новоизмайловское
                                                  • Обуховский
                                                  • Озеро Долгое
                                                  • Оккервиль
                                                  • Остров Декабристов
                                                  • Павловск
                                                  • Парголово
                                                  • Парнас
                                                  • Песочный
                                                  • Петергоф
                                                  • Петро-Славянка
                                                  • Петровский
                                                  • Петроградский район
                                                  • Петродворцовый район
                                                  • Пискарёвка
                                                  • Полюстрово
                                                  • Понтонный
                                                  • Пороховые
                                                  • Посадский
                                                  • Правобережный
                                                  • Приморский район
                                                  • Прометей
                                                  • Пулковский меридиан
                                                  • Пушкинский район
                                                  • Репино
                                                  • Ржевка
                                                  • Рыбацкое
                                                  • Сампсониевское
                                                  • Сапёрный
                                                  • Светлановское
                                                  • Северный
                                                  • Семёновский
                                                  • Сенной
                                                  • Серово
                                                  • Смольнинское
                                                  • Смолячково
                                                  • Солнечное
                                                  • Сосновая поляна
                                                  • Сосновское
                                                  • Стрельна
                                                  • Тярлево
                                                  • Ульянка
                                                  • Урицк
                                                  • Усть-Ижора
                                                  • Ушково
                                                  • Финляндский
                                                  • Фрунзенский район
                                                  • Центральный район
                                                  • Чкаловское
                                                  • Чёрная речка
                                                  • Шувалово-Озерки
                                                  • Шушары
                                                  • Юго-Запад
                                                  • Южно-Приморский
                                                  • Юнтолово
                                                  • № 15
                                                  • № 21
                                                  • № 54
                                                  • № 65
                                                  • № 72
                                                  • № 75
                                                  • № 78
                                                  • по метро
                                                  • Девяткино
                                                  • Гражданский проспект
                                                  • Академическая
                                                  • Политехническая
                                                  • Площадь Мужества
                                                  • Лесная
                                                  • Выборгская
                                                  • Площадь Ленина
                                                  • Чернышевская
                                                  • Площадь Восстания
                                                  • Владимирская
                                                  • Пушкинская
                                                  • Технологический институт
                                                  • Балтийская
                                                  • Нарвская
                                                  • Кировский завод
                                                  • Автово
                                                  • Ленинский проспект
                                                  • Проспект Ветеранов
                                                  • Парнас
                                                  • Проспект Просвещения
                                                  • Озерки
                                                  • Удельная
                                                  • Пионерская
                                                  • Чёрная речка
                                                  • Петроградская
                                                  • Горьковская
                                                  • Невский проспект
                                                  • Сенная площадь
                                                  • Фрунзенская
                                                  • Московские ворота
                                                  • Электросила
                                                  • Парк Победы
                                                  • Московская
                                                  • Звёздная
                                                  • Купчино
                                                  • Приморская
                                                  • Василеостровская
                                                  • Гостиный двор
                                                  • Маяковская
                                                  • Площадь Александра Невского
                                                  • Елизаровская
                                                  • Ломоносовская
                                                  • Пролетарская
                                                  • Обухово
                                                  • Рыбацкое
                                                  • Комендантский проспект
                                                  • Старая Деревня
                                                  • Крестовский остров
                                                  • Чкаловская
                                                  • Спортивная
                                                  • Садовая
                                                  • Достоевская
                                                  • Лиговский проспект
                                                  • Новочеркасская
                                                  • Ладожская
                                                  • Проспект Большевиков
                                                  • Улица Дыбенко
                                                  • Волковская
                                                  • Звенигородская
                                                  • Спасская
                                                  • Обводный канал
                                                  • Адмиралтейская
                                                  • Международная
                                                  • Бухарестская
                                                  • Беговая
                                                  • Проспект Славы
                                                  • Дунайская
                                                  • Шушары

                                                  Вместе с этим также ищут:

                                                  Снять помещение в Санкт-Петербурге Снять торговую площадь в Санкт-Петербурге Снять офис в Санкт-Петербурге Снять склад в Санкт-Петербурге Снять производственное помещение в Санкт-Петербурге Снять отдельностоящее здание в Санкт-Петербурге

                                                  🏠 Как снять коммерческую недвижимость в Санкт-Петербурге на N1?

                                                  • ✔ В поисках объявления об аренде или сдаче коммерческой недвижимости в Санкт-Петербурге?
                                                  • ✔ На N1 размещены 24 коммерческой недвижимости
                                                  • ✔ Чтобы снять или сдать недвижимость, воспользуйтесь формой поиска, фильтрами или быстрыми ссылками.

                                                  💸 Сколько стоит коммерческая недвижимость в Санкт-Петербурге?

                                                  • 🟢 Средняя цена аренды коммерческой недвижимости - 228,24 тыс ₽
                                                  • 🟢 Минимальная стоимость за 1 м2: 1,69 тыс ₽

                                                  📚 Какая площадь коммерческой недвижимости?

                                                  • Наибольшая площадь: 1,30 тыс м²
                                                  • Минимальная площадь: 16 м²