Офисное помещение
Двинская, 10 корп. 2 Показать на карте
Двинская, 10 корп. 2 Показать на карте
Кировский район
Санкт-Петербург
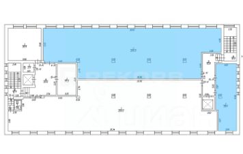
Арт. 132338115 В продаже коммерческое помещение под офис, склад, кладовки, хостел, нешумное производство. Кировский район, Гутуевский остров. 1 км до ЗСД. В рабочем состоянии, не требует больших затрат на ремонт. 415 кв. м,4 этаж,хорошее состояние,приточно-вытяжная вентиляция,кондиционирование,2 лифта (грузовой + пассажирский),2 входа,бесплатная парковка во дворе,место для разгрузки,h=2,7 м,можно частями,ИП без НДС.В настоящее время располагается хостел. Бывшее административное здание Морского пароходства.Возможно разделения кадастра.
414 м2
- Показать контакты
- Добавить в избранное
414 м2
40 000 000
96 548 /м2
