Производственное помещение
Промышленная, 5 Показать на карте
Промышленная, 5 Показать на карте
Кировский район
Санкт-Петербург
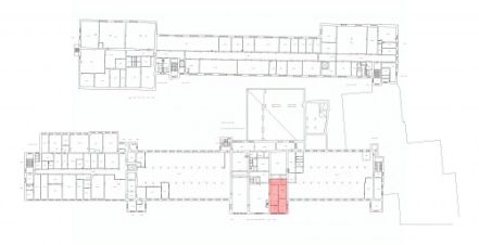
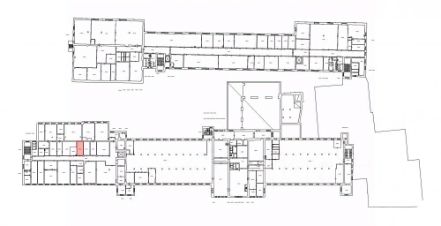
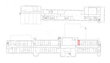
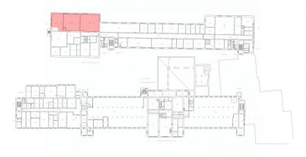
Сдаётся в аренду производственно-складской блок площадью 246.7 кв. м на Промышленной улице, дом 5. Потолки высотой 3,48 м, окрашенные стены, на полу кафель. Оснащение: выделенная электрическая мощность, освещение, отопление, пожарная сигнализация. Помещение расположено на 3-м этаже здания. Грузовой лифт г/п 1,5 т (2 х 2,2 х 2,5 м). Для удобства сотрудников во внутреннем дворе есть парковка. Действует система СКУД. Проход осуществляется по электронным картам доступа. Возможен круглосуточный режим работы. В пешей доступности находится станция метро ''Нарвская''. Рядом пролегают крупные автомагистрали - Стачек, Нарвский и Старо-Петергофский проспекты.
246 м2
- Показать контакты
- Добавить в избранное
246 м2
88 565 /мес.
358 /м2
