Производственное помещение
Звенигородская, 9 корп. 11 Показать на карте
Звенигородская, 9 корп. 11 Показать на карте
Обводный канал, 6 мин
Санкт-Петербург
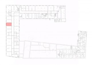
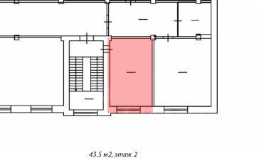
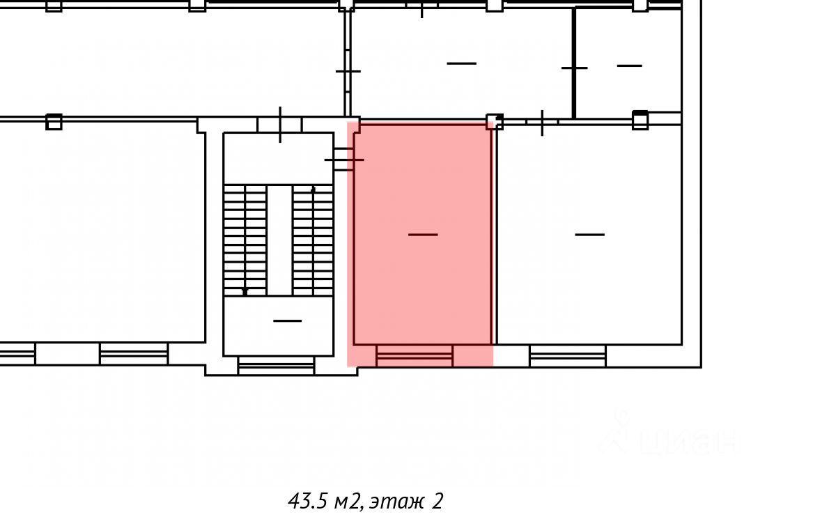
Производственное помещение площадью 43,3 кв. м сдаётся в аренду от собственника. Расположено на 2 этаже здания на Звенигородской ул., д. 9-11. Прекрасно подойдёт под швейную мастерскую и шоу-рум. Можно выполнить зонирование по вашим предпочтениям. В помещении высокие потолки и большое окно. Возможно выполнение ремонта по предварительному согласованию с собственником. Помещение имеет полное инженерное оснащение: освещение, отопление, выделенная электроэнергия, пожарная сигнализация. По запросу арендатора подключаются интернет и телефония. На территории есть столовая и парковка. Объект находится под круглосуточной охраной. Проход и заезд осуществляется по магнитным картам доступа. Дополнительно оплачиваются услуги связи, КУ, парковка. НДС входит в стоимость. Здание находится в пешей доступности от станции метро ''Звенигородская''. Рядом пролегают Звенигородская улица, набережная Обводного канала, Лиговский и Московский проспекты. На территорию есть удобный заезд для транспорта с улицы Звенигородской.
43 м2
- Показать контакты
- Добавить в избранное
43 м2
51 917 /мес.
1 199 /м2
