Офисное помещение
Выборгская набережная, 55 корп. 3 Показать на карте
Выборгская набережная, 55 корп. 3 Показать на карте
Лесная, 14 мин
Санкт-Петербург
Без комиссии! Предлагаем в аренду видовые офисы в современном деловом комплексе класса A Gregory's Palace. Престижный район Санкт-Петербурга. Произведен высококачественный ремонт. Панорамное остекление. Уникальная ночная подсветка фасада, полы и лестницы из натурального гранита и мрамора, комплекс водопадов, стиль и роскошь в интерьере. У Бизнес-центра есть собственная парковка на 200 машиномест. Арендная ставка включает НДС 5 %, все коммунальные платежи и уборку. Отдельно оплачиваются: интернет, телефония, парковочное место.Просим время просмотра согласовывать заранее по телефону!В пешей доступности станции метро ''Лесная'' и ''Выборгская''.
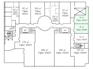
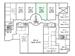
104 м2
- Показать контакты
- Добавить в избранное
104 м2
260 000 /мес.
2 500 /м2
