Складское помещение
Цветочная, 18б Показать на карте
Цветочная, 18б Показать на карте
Электросила, 11 мин
Санкт-Петербург
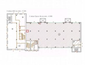
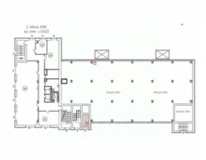
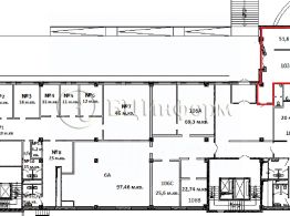
Без комиссии! Предлагаем в аренду складское помещение в мнoгофункциoнальном Бизнec-Пapке Адрес: ул Цветочная, д 18 литер Б.Склaдcкой блок 540м² cвобoдной планиpoвки,Ближайшие станции метро ''Электросила''- 15 минут пешком Характеристики: Высота потолков 5.5 м, полезного хранения 4.8 м. Выделенная мощность 50 кВт с возможностью увеличения. 2 грузоподъемника по 3 т с индивидуальными зонами ПРР. Внутренний размер подъемника N1 -3х2х2 м.Подъемник 1 подает груз непосредственно на склад.Внутренний размер подъемника N2 - 3х1,6х1,8 м.Подъемник 2 подает груз на этаж и находится в непосредственной близости от входа на склад. Отопление от своей газовой котельной — стабильная температураКруглосуточный доступ, с зоной маневрирования для фур (асфальтовая площадка для разгрузки)Объект оснащен электричеством, освещением, отоплением, ХВС, водоотведение (индивидуальный санузел), системой кондиционирования, приточно-вытяжная вентиляцией.Арендная ставка включает НДС (22%), отопление.Электричество, вода (оплата по счетчику по фактическому расходу), парковка оплачиваются отдельно.Имеются офисные помещения. Предоставляется юридический адрес. Для обеспечения безопасности установлены камеры видеонаблюдения, круглосуточная охрана. На территории действует контрольно-пропускной режим.Для получения более подробной информации и записи на просмотр, пожалуйста, свяжитесь с нами!
540 м2
- Показать контакты
- Добавить в избранное
540 м2
513 000 /мес.
950 /м2
