Офисное помещение
проспект Малый Васильевского острова, 22 Показать на карте
проспект Малый Васильевского острова, 22 Показать на карте
Спортивная, 15 мин
Санкт-Петербург
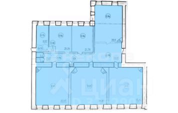
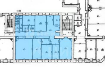
Аренда офиса в бизнес-центре класса АСоверен — это деловой центр в современном стиле — европейское архитектурное, конструктивное и дизайнерское решение. Его привлекательной стороной также является удобное расположение и отличная транспортная доступность. Рядом расположены остановки общественного транспорта, станции метро, автомобильные магистрали и их развязки.Помещение освобождается в июне 2026 года.ПРЕИМУЩЕСТВА:• расположение: первая линия Малого проспекта В. О.,• близость к метро: 8 минут до станции метро Василеостровская и 10 минут до станции метро Спортивная,• планировка: смешанная (open space, кабинеты, переговорные, кухня, с/у),• состояние: свежая качественная отделка помещений,• остекление: панорамное, обеспечивает высокий уровень естественного освещения,• окружение: рядом находятся кофейни, кафе и рестораны, аптеки, банкоматы, а также через дорогу располагается Благовещенский сад, выход на набережную в пешей доступности,• есть подземный и наземный паркинг.ФИН.УСЛОВИЯ:• в арендную ставку включены НДС, ОРЕХ и коммунальные услуги,• арендная ставка 1 900 ?/м²/мес,• прямая аренда без комиссии для клиента.Готовы оперативно организовать просмотр в удобное время и предоставить PDF-презентацию, план, а также видеотур по запросу.
548 м2
- Показать контакты
- Добавить в избранное
548 м2
1 041 200 /мес.
1 900 /м2
