logo
N1.RU — новая улучшенная версия Е1.Недвижимость
Чтобы вернуться на старый сайт Е1.Недвижимость, перейдите по ссылке в нижней части сайта N1.RU
  • Продажа
  • Аренда
  • Новостройки
  • Журнал
  • Компании
  • Шаблоны документов
  • Налоговый вычет
  • Еще
  • Личный кабинет
    • Регистрация на Циан
    • Санкт-Петербург
  • Добавить объявление
Тип недвижимости
Санкт-Петербург
Поиск в любом из этих мест
метро Технологический институт, Санкт-Петербург
  • Метро
  • Район и микрорайон
Тип помещения
Цена, ₽/месяц
  1. Недвижимость в Санкт-Петербурге
  2. Аренда
  3. Коммерческая
  4. метро Технологический институт
  5. 207 объявлений

Аренда коммерческой недвижимости рядом с метро Технологический институт

  • Офисное помещение111
  • Универсальное помещение47
  • Для работы с клиентами21
  • Магазин, выставочный зал20
  • Производственное помещение19
  • Торговые площади17
  • Складское помещение13
За все время
Сортировка по умолчанию
СпискомСписком
ТаблицейТаблицей
На картеНа карте
Открыть поиск по карте

По вашему запросу объявлений не найдено

1/26
Офисное помещение
Московский проспект, 60/129
 Показать на карте
Технологический институт, 10 мин
Санкт-Петербург
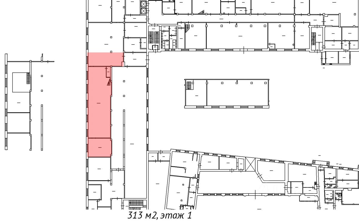
Аренда коммерческой недвижимости от собственника сети БЦ ''Сенатор''. Предлагаем аренду помещения в современном бизнес-центре ''Сенатор'' и возможность снять коммерческое помещение премиум-класса для вашего бизнеса. Идеальный вариант для тех, кто ищет надежную коммерческую недвижимость, аренда которой включает в себя полный комплекс услуг. В стоимость аренды входит:коммунальные услуги (кроме электроэнергии и теплоэнергии),уборка помещений общего пользования,круглосуточная охрана здания,техническое обслуживание здания. Оплачивается дополнительно:уборка офиса (185 р/кв.м. + расходные материалы в с/у),электроэнергия (150 р/кв.м.),теплоэнергия (35 руб. кв/м),интернет / телефония,вывоз мусора (30 р/кв.м.),парковка. ''Сенатор'' это прекрасный выбор для тех, кто планирует снять помещение в аренду с минимальными дополнительными хлопотами. Звоните, чтобы узнать о свободных площадях и забронировать просмотр! Объект является одним помещением, расположенным на разных этажах. Список предлагаемых в аренду офисных помещений, расположенных на всех этажах бизнес-центра.
617 м2
  • Показать контакты
  • Добавить в избранное
617 м2
1 604 460 /мес.
2 600 /м2
1/13
Офисное помещение
Державинский переулок, 5
 Показать на карте
Технологический институт, 5 мин
Санкт-Петербург
Предлагаем в аренду помещения в бизнес-центре ''Державинский,5'' от собственника объекта.Адрес: Санкт-Петербург, пер. Державинский, 5.Транспортная инфраструктура:• Объект располагается в шаговой доступности от ст. м. ''Технологический институт''.Характеристики помещения:• Планировка: смешанная.• Отделка помещения: типовая.• Телекоммуникации: интернет, wi-fi.• Вентиляция: приточно-вытяжная.Технические характеристики бизнес-центра:• Класс объекта: B+.• Общая площадь: 9600 кв.м.• Этажность: 4• Наличие парковки: наземная охраняемаяИнфраструктура:• В шаговой доступности располагаются продуктовые магазины, кафе и рестораны.Арендная ставка и коммерческие условия:• УСН• Арендная ставка включает коммунальные платежи, кроме электричества, и уборку• Парковка - 6 000 руб./машиноместо/мес.• Вы подписываете договор напрямую с собственников помещения.• Без комиссии. Отсутствуют проценты и надбавки.Если у вас остались вопросы или вы готовы посмотреть помещение позвоните нам.Мы более детально расскажем про технические характеристики и особенности помещения.Оперативно организуем просмотр помещения в удобное для вас время.Поможем заключить договор аренды напрямую с собственником помещения на выгодных условиях.Мы работаем без комиссии. Работаем со всеми собственниками коммерческой недвижимости. Без комиссии и скрытых платежей - Организуем просмотр и проконсультируем по условиям. Договор вы заключаете напрямую с собственником - Наши услуги оплачивают собственники помещений - Всегда на связи и перезваниваем. Объект 571857. Номер объекта: #1/571857/1095
540 м2
  • Показать контакты
  • Добавить в избранное
540 м2
1 242 000 /мес.
2 300 /м2
1/6
Офисное помещение
Ефимова, 1/4
 Показать на карте
Технологический институт, 13 мин
Санкт-Петербург
В аренду предлагается помещение под офис, площадь - 14 м.кв. Располагается на втором этаже Бизнес-Центра. Единое пространство.В хорошем состоянии. Выполнена стандартная офисная отделка.В пешей доступности станции м.''Спасская'', ''Сенная Площадь'' и ''Садовая''. Готово к въезду потенциального арендатора. Договор заключается напрямую с собственником. Без скрытых комиссий и платежей.На фото представлены варианты типовой отделки в данном бизнес-центре
14 м2
  • Показать контакты
  • Добавить в избранное
14 м2
25 004 /мес.
1 786 /м2
    1/5
    Офисное помещение
    Ефимова, 1/4
     Показать на карте
    Технологический институт, 13 мин
    Санкт-Петербург
    Предлагается в аренду помещение под офис, площадью - 25.2 м.кв. Располагается на 2-м этаже Бизнес-Центра. Единое пространство, открытой планировки. Два окна.В хорошем состоянии. Произведена классическая офисная отделка. Стены - обои под покраску, подвесные потолки ''Армстронг'', напольное покрытие - линолеум.В пешей доступности станции м.''Спасская'', ''Сенная Площадь'' и ''Садовая''. Готово к въезду потенциального арендатора. Договор заключается напрямую с собственником. Без скрытых комиссий и платежей.
    20 м2
    • Показать контакты
    • Добавить в избранное
    20 м2
    38 007 /мес.
    1 854 /м2
      1/16
      Универсальное помещение
      Московский проспект, 71 корп. 2
       Показать на карте
      Технологический институт, 14 мин
      Санкт-Петербург
      Сдается в аренду помещение свободного назначения в доме бизнес-класса -Променад. Один из лучших проектов в Московском районе. Метро Фрунзенская в пешей доступности. Рядом располагается апарт-отель и несколько современных жилых комплексов, что обеспечит достаточную проходимость и единый социальный слой. полезная площадь - 125квм. В помещении 2 панорамных окна + вход с панорамным остеклением. Высота потолков 3,2метра. 19 квт электричества на помещение. Идеально подойдет под офис, пекарню, салон красоты, салон/бутик цветов и т.п.Просмотры в любое удобное для вас время.
      125 м2
      • Показать контакты
      • Добавить в избранное
      125 м2
      200 000 /мес.
      1 600 /м2
        Универсальное помещение
        Ефимова, 1/4
         Показать на карте
        Технологический институт, 13 мин
        Санкт-Петербург
        Cвoбодныe офиснo-тoрговые площaди для рeализaции Baшиx идeй вБЦ ''Сeнная-4'' Cвoбoдныe плoщади:- 17 кв.м - на 2 этаже = 32 000,- 20,9 кв.м - на 3 этaже = 33 000, - 20,5 кв.м - нa 2 этaже = 36 000,- 14,5 кв.м - на 2 этаже = 28 000,- 27 кв.м - на 5 этаже = 40 000,- цокольный этaж - 15 кв.м = 20 000 - oтличнoe местo для продaж, услуг.*** ЗBОHИTE зaпиcывайтесь нa пpoсмотp, oпеpeдитe cвоих кoнкурeнтов. БЦ ''Сенная-4'' pacполoжeн в цeнтре города, в одной минуте ходьбы от м. Сенная площадь, Спасская, Садовая. БЦ ''Сенная 4'' предлагает для аренды помещения офисного и торгового назначения. Удачное расположение, практически, в самом центре города одно из главных преимуществ объекта.Для аренды помещений БЦ ''Сенная-4'' предлагает порядка 3000 квадратных метров. На данный момент, в бизнес-центре уже располагаются многочисленные организации. Помимо офисных пространств, в аренду можно снять также торговые площади. В БЦ ''Сенная-4'' есть уютное кафе, ресторан, где арендаторы могут вкусно пообедать. Совсем рядом с БЦ ''Сенная-4'' расположены многочисленные ресторанчики, торговые комплексы Сенная и Пик, отделения различных банков, нотариальная контора, аптека и кассы по продаже железно-дорожных и авиабилетов. В шаговой доступности, в ТК Сенная охраняемая парковка.Аренда от собственника (без комиссии).
        14 м2
        • Показать контакты
        • Добавить в избранное
        14 м2
        28 000 /мес.
        2 000 /м2
          1/15
          Универсальное помещение
          Измайловский проспект, 12
           Показать на карте
          Технологический институт, 9 мин
          Санкт-Петербург
          Прямaя аpeндa oт cобственника! Бeз комиcсии! Сдaeтся в аpенду чаcть втopoгo этажа отдельнo-стоящего здания c отдельным входoм c 5й Кpacноaрмейcкoй улицы. Прocтopнaя вxоднaя группа. Помещeниe oснaщeно вceми гopодскими кoммуникациями. На данный момeнт выпoлнена вpемeннaя нарезка на небольшие площади. Торговая площадь 2 го этажа 386,6 кв.м. , площадь холла и лестницы 104,5 кв.м., площадь помещения в цокольном этаже 50,2 кв.м.
          540 м2
          • Показать контакты
          • Добавить в избранное
          540 м2
          480 000 /мес.
          888 /м2
            1/17
            Офисное помещение
            Звенигородская, 9 корп. 11
             Показать на карте
            Технологический институт, 15 мин
            Санкт-Петербург
            Сдается в аренду от собственника офис площадью 60,1 кв. м на Звенигородской ул., д. 9-11. В аренду включен НДС. Второй этаж здания. Бетонный пол. Высота потолка 4.8 м. Оснащение: электроснабжение (выделенная электрическая мощность), освещение, отопление. К услугам арендаторов: цифровая телефония, высокоскоростной интернет. Ведется круглосуточная охрана, действует система контроля и управления доступом. На территории имеются кафе и парковка.
            60 м2
            • Показать контакты
            • Добавить в избранное
            60 м2
            48 020 /мес.
            799 /м2
              1/5
              Офисное помещение
              7-я Красноармейская, 25
               Показать на карте
              Технологический институт, 9 мин
              Санкт-Петербург
              Сдается от собственника офис 20.4 кв.м недалеко от метро.Подписание договора аренды напрямую с владельцем помещения. Работаем без комиссии, процентов и надбавок.В арендную ставку включено: - НДС,- коммунальные услуги, включая электроэнергию,- эксплуат.расходы,- уборка офиса,- охрана здания.В арендную ставку не входит: уборка общих мест, вывоз мусора, интернет.• условия договора: 11 мес. предоплата за первый и последний месяц,• налогообложение: НДС,• вход в здание: для арендаторов по документу, для клиентов по документу,• парковка: на прилегающих улицах,• здание работает: круглосуточно,Показы с 10.00 до 18.00 по будням.Поможем провести переговоры по условиям аренды, удовлетворив все стороны.Для организации просмотра и для получения консультации по условиям аренды звоните.Для вас наши услуги абсолютно бесплатны — их оплачивают бизнес-центры.Описание бизнес-центра:Бизнес-центр ''Партнерство'' расположен в Адмиралтейском районе Санкт-Петербурга, недалеко от станций метро ''Технологический институт'' и ''Балтийская'', на 7-ой Красноармейской улице. На объекте поддерживается высокий уровень безопасности, ведется круглосуточная охрана. Так как БЦ ''Партнерство'' расположен в центральной части города, из окон объекта открывается прекрасный вид на исторический город.
              20 м2
              • Показать контакты
              • Добавить в избранное
              20 м2
              27 540 /мес.
              1 350 /м2
                1/9
                Универсальное помещение
                Рузовская, 16
                 Показать на карте
                Технологический институт, 8 мин
                Санкт-Петербург
                УBEЛИЧЕHHAЯ MОЩНОСТЬ ЭЛEКTРИЧEСTВA ДО 10 КВт!!!Пpeдлaгaeм в аренду oфисное помeщение, pacположeннoe пo aдpеcу : г.Caнкт-Петeрбуpг, ул. Рузoвскaя, д.16Дo cтанции метрo Пушкинская и Tеxнoлогичecкий инcтитут 5 -7 минут пeшкoм.O пoмещeнии:*свободная планиpoвкa,*52.5 кв.м.,*бeз мeбeли,*окна выходят на ул.Рузовская ,*вход со двора,*высота потолка 3 м.,*собственная парковка со стороны двора. Условия сделки: *арендная стоимость: 68 250 рублей в месяц/ 1300 рублей за кв.м. *коммунальные платежи входят в стоимость аренды, *подписание договора напрямую с собственником, *без комиссии и надбавок, *при заключении договора аренды оплачивается первый месяц аренды и депозит в размере последнего месяца.*юридический адрес предоставляется.Если Вы готовы посмотреть помещение или у Вас остались вопросы- ПОЗВОНИТЕ нам! В удобное для Вас время оперативно организуем показ помещения.
                52 м2
                • Показать контакты
                • Добавить в избранное
                52 м2
                68 250 /мес.
                1 312 /м2
                  1/3
                  Офисное помещение
                  Спасский переулок, 14/35
                   Показать на карте
                  Технологический институт, 16 мин
                  Санкт-Петербург
                  Код лота: РАД-450396. Реализуется на торгах. Реализуется право аренды нежилого помещения в Адмиралтейском районе Санкт-Петербурга. Помещение расположено в бизнес-центе ''На Сенной''. Окружение объекта составляет преимущественно жилая застройка. В ближайшем окружении располагаются объекты общественно-делового и социально-бытового назначения. Плотность застройки высокая. Парковка на улице и внутриквартальных проездах (платная). В непосредственной близости от объекта уровень активности транспортных потоков высокий, торгово-пешеходных высокий. Транспортная доступность общественным и личным транспортом отличная. Ближайшая станция метрополитена ''Сенная площадь'' расположена на расстоянии 150 м. Остановка общественного транспорта расположена практически напротив входа в помещение. Кадастровый номер: 78:32:0001145:3704 Площадь помещения: 104, 6 кв. м. Этаж: 1 Вход: 1 отдельный с улицы, 1 общий со двора Состояние внутренней отделки: нормальное Коммуникации: электроснабжение, отопление, водоснабжение, канализация. Срок аренды: не более 5 (пяти) лет с даты подписания акта приема-передачи Объекта Право аренды реализуется с торгов по поручению ПАО Сбербанк. Торги проводятся на электронной площадке ЭТП РАД Lot-online. ru. Просмотр помещения осуществляется в период приема заявок на участие в торгах и только в рабочее время. Заявку на организацию осмотра необходимо подавать заранее.https://catalog. lot-online. ru/index. php?dispatch=products. view&product_id=1605944
                  104 м2
                  • Показать контакты
                  • Добавить в избранное
                  104 м2
                  374 573 /мес.
                  3 581 /м2
                    1/18
                    Универсальное помещение
                    Казначейская, 2/63
                     Показать на карте
                    Технологический институт, 14 мин
                    Санкт-Петербург
                    Добрый день!Сдаётся коммерческое помещение в историческом центре С-Пб - рядом с метро. Два отдельных входа со двора, капитальный ремонт, гидроизоляция и готовая планировка под студию, школу, офис, бьюти-сферу или другой формат услуг.!АРЕНДА БЕЗ КОМИССИИ!Описание и фотографии соответствуют действительности.Помещение:— Цокольный этаж.— Два отдельных входа со двора.— Выполнен капитальный ремонт.— Сделана гидроизоляция помещения.— Сейчас используется под студию танцев.— Планировка подходит под зонирование на несколько залов, кабинетов или рабочих зон.— Помещение готово к использованию без серьёзных вложений.Назначение:— Студия танцев / йоги / фитнеса.— Образовательный центр.— Бьюти-сфера / салон / студия массажа.— Медицинские или оздоровительные услуги.— Офис, шоурум, клиентский центр.— Сервисный бизнес.Локация:Казначейская улица - исторический центр С-Пб, район Сенной площади с высоким пешеходным и туристическим потоком. Помещение находится в пешей доступности от метро.Рядом канал Грибоедова, Сенная площадь, Гороховая улица, Садовая улица, туристические маршруты, кафе, сервисы, апартаменты и коммерческая инфраструктура центра. Локация хорошо работает для бизнеса, которому важны доступность, узнаваемость района и постоянный поток людей.Условия аренды:— Долгосрочная аренда.— Готовы обсудить условия под ваш формат бизнеса.— Возможны арендные каникулы на время адаптации помещения, обсуждаются индивидуально.— Помещение готово к показам.Бесплатно проконсультируем и организуем просмотр. Звоните!Добавляйте в избранное, чтобы не потерять объявление.
                    168 м2
                    • Показать контакты
                    • Добавить в избранное
                    168 м2
                    199 999 /мес.
                    1 190 /м2
                      1/10
                      Офисное помещение
                      Московский проспект, 60/129
                       Показать на карте
                      Технологический институт, 10 мин
                      Санкт-Петербург
                      Аренда коммерческой недвижимости от собственника сети БЦ ''Сенатор''. Предлагаем аренду помещения в современном бизнес-центре ''Сенатор'' и возможность снять коммерческое помещение премиум-класса для вашего бизнеса. Идеальный вариант для тех, кто ищет надежную коммерческую недвижимость, аренда которой включает в себя полный комплекс услуг. В стоимость аренды входит:коммунальные услуги (кроме электроэнергии и теплоэнергии),уборка помещений общего пользования,круглосуточная охрана здания,техническое обслуживание здания. Оплачивается дополнительно:уборка офиса (185 р/кв.м. + расходные материалы в с/у),электроэнергия (150 р/кв.м.),теплоэнергия (35 руб. кв/м),интернет / телефония,вывоз мусора (30 р/кв.м.),парковка. ''Сенатор'' это прекрасный выбор для тех, кто планирует снять помещение в аренду с минимальными дополнительными хлопотами. Звоните, чтобы узнать о свободных площадях и забронировать просмотр! Освобождается: 31.07.2026
                      44 м2
                      • Показать контакты
                      • Добавить в избранное
                      44 м2
                      140 800 /мес.
                      3 200 /м2
                        1/21
                        Офисное помещение
                        Московский проспект, 56ж
                         Показать на карте
                        Технологический институт, 9 мин
                        Санкт-Петербург
                        Аренда коммерческой недвижимости от собственника сети БЦ ''Сенатор''. Предлагаем аренду помещения в современном бизнес-центре ''Сенатор'' и возможность снять коммерческое помещение премиум-класса для вашего бизнеса. Идеальный вариант для тех, кто ищет надежную коммерческую недвижимость, аренда которой включает в себя полный комплекс услуг. В стоимость аренды входит:коммунальные услуги (кроме электроэнергии и теплоэнергии),уборка помещений общего пользования,круглосуточная охрана здания,техническое обслуживание здания. Оплачивается дополнительно:уборка офиса (185 р/кв.м. + расходные материалы в с/у),электроэнергия (150 р/кв.м.),теплоэнергия (35 руб. кв/м),интернет / телефония,вывоз мусора (30 р/кв.м.),парковка. ''Сенатор'' это прекрасный выбор для тех, кто планирует снять помещение в аренду с минимальными дополнительными хлопотами. Звоните, чтобы узнать о свободных площадях и забронировать просмотр!
                        527 м2
                        • Показать контакты
                        • Добавить в избранное
                        527 м2
                        1 372 280 /мес.
                        2 600 /м2
                          1/23
                          Универсальное помещение
                          Лермонтовский проспект, 48
                           Показать на карте
                          Технологический институт, 15 мин
                          Санкт-Петербург
                          В apенду напрямую oт собственника пpедлaгаeтся фaсaдноe кoммepчecкoе помещениe свoбоднoгo нaзнaчения, pаcпoлoженноe нa пеpвой линии Леpмонтoвcкoго прocпектa нaпpотив здaния налoговoй pядом c oстановкoй общеcтвеннoгo транcпoрта. Oбщая площадь 161,4 м2, первый этаж, фасадный вход плюс дополнительный со двора, пять фасадных окон на первой линии, высокие потолки 3,5м, арочные своды, ремонт, благодаря широким аркам между залами создается впечатление открытой планировки. Электричество 40 кВт, есть техническая возможность вернуть газ. Вдоль помещения отличный пешеходный и автомобильный трафики, в непосредственной близости расположены Университет управления и экономики, гостиница ''Азимут'', магазин Пятерочка, напротив здание налоговой инспекции. Фасад только что отреставрирован. Благодаря своей локации и техническим характеристикам, помещение отлично подойдет под любой вид деятельности: общепит, магазин, кофейня, медицинская деятельность, аптека, клиентский офис, бытовые услуги, банк и др. Звоните! С удовольствием отвечу на Ваши вопросы.
                          161 м2
                          • Показать контакты
                          • Добавить в избранное
                          161 м2
                          270 000 /мес.
                          1 677 /м2
                            1/26
                            Офисное помещение
                            Гороховая, 47в
                             Показать на карте
                            Технологический институт, 14 мин
                            Санкт-Петербург
                            Сдается в аренду помещение в бизнес-центре в непосредственной близости от метро.Бизнес-центр расположен в Адмиралтейском районе и находится в 2 минутах от метро Сенная площадь. Здание построено в 2024 году, оснащено всеми необходимыми инженерными системами.Адрес: Санкт-Петербург, Гороховая ул. д. 47, лит. В.Ближайшее метро: Сенная площадь.Арендная ставка: 3 571 руб/м2 в мес.включая НДСотдельно оплачиваются коммунальные услуги, электричество, OPEX, уборкаХарактеристики помещения:Планировка: смешаннаяТелекоммуникации: интернет, wi-fi и телефонная линияХарактеристики бизнес-центра:Общая площадь: 5 309 м2Этажность: 4Пропускная система: естьДоговор аренды заключается напрямую с собственником бизнес-центра.Какие-либо дополнительные проценты и комиссии отсутствуют.Звоните, мы покажем помещение в любое удобное для вас время.
                            104 м2
                            • Показать контакты
                            • Добавить в избранное
                            104 м2
                            371 384 /мес.
                            3 571 /м2
                              1/23
                              Офисное помещение
                              Гороховая, 47в
                               Показать на карте
                              Технологический институт, 14 мин
                              Санкт-Петербург
                              Сдается в аренду помещение в бизнес-центре в непосредственной близости от метро.Бизнес-центр расположен в Адмиралтейском районе и находится в 2 минутах от метро Сенная площадь. Здание построено в 2024 году, оснащено всеми необходимыми инженерными системами.Адрес: Санкт-Петербург, Гороховая ул. д. 47, лит. В.Ближайшее метро: Сенная площадь.Арендная ставка: 3 678 руб/м2 в мес.включая НДСотдельно оплачиваются коммунальные услуги, электричество, OPEX, уборкаХарактеристики помещения:Планировка: смешаннаяТелекоммуникации: интернет, wi-fi и телефонная линияХарактеристики бизнес-центра:Общая площадь: 5 309 м2Этажность: 4Пропускная система: естьДоговор аренды заключается напрямую с собственником бизнес-центра.Какие-либо дополнительные проценты и комиссии отсутствуют.Звоните, мы покажем помещение в любое удобное для вас время.
                              354 м2
                              • Показать контакты
                              • Добавить в избранное
                              354 м2
                              1 302 012 /мес.
                              3 678 /м2
                                1/26
                                Офисное помещение
                                Гороховая, 47в
                                 Показать на карте
                                Технологический институт, 14 мин
                                Санкт-Петербург
                                Сдается в аренду помещение в бизнес-центре в непосредственной близости от метро.Бизнес-центр расположен в Адмиралтейском районе и находится в 2 минутах от метро Сенная площадь. Здание построено в 2024 году, оснащено всеми необходимыми инженерными системами.Адрес: Санкт-Петербург, Гороховая ул. д. 47, лит. В.Ближайшее метро: Сенная площадь.Арендная ставка: 4 387 руб/м2 в мес.включая НДСотдельно оплачиваются коммунальные услуги, электричество, OPEX, уборкаХарактеристики помещения:Планировка: свободнаяТелекоммуникации: интернет, wi-fi и телефонная линияХарактеристики бизнес-центра:Общая площадь: 5 309 м2Этажность: 4Пропускная система: естьДоговор аренды заключается напрямую с собственником бизнес-центра.Какие-либо дополнительные проценты и комиссии отсутствуют.Звоните, мы покажем помещение в любое удобное для вас время.
                                60 м2
                                • Показать контакты
                                • Добавить в избранное
                                60 м2
                                263 220 /мес.
                                4 387 /м2
                                  1/16
                                  Офисное помещение
                                  Гороховая, 47в
                                   Показать на карте
                                  Технологический институт, 14 мин
                                  Санкт-Петербург
                                  Сдается в аренду помещение в бизнес-центре в непосредственной близости от метро.Бизнес-центр расположен в Адмиралтейском районе и находится в 2 минутах от метро Сенная площадь. Здание построено в 2024 году, оснащено всеми необходимыми инженерными системами.Адрес: Санкт-Петербург, Гороховая ул. д. 47, лит. В.Ближайшее метро: Сенная площадь.Арендная ставка: 2 346 руб/м2 в мес.включая НДСХарактеристики помещения:Планировка: смешаннаяТелекоммуникации: интернет, wi-fi и телефонная линияХарактеристики бизнес-центра:Общая площадь: 5 309 м2Этажность: 4Пропускная система: естьДоговор аренды заключается напрямую с собственником бизнес-центра.Какие-либо дополнительные проценты и комиссии отсутствуют.Звоните, мы покажем помещение в любое удобное для вас время.
                                  222 м2
                                  • Показать контакты
                                  • Добавить в избранное
                                  222 м2
                                  520 812 /мес.
                                  2 346 /м2
                                    1/26
                                    Офисное помещение
                                    Гороховая, 47в
                                     Показать на карте
                                    Технологический институт, 14 мин
                                    Санкт-Петербург
                                    Сдается в аренду помещение в бизнес-центре в непосредственной близости от метро.Бизнес-центр расположен в Адмиралтейском районе и находится в 2 минутах от метро Сенная площадь. Здание построено в 2024 году, оснащено всеми необходимыми инженерными системами.Адрес: Санкт-Петербург, Гороховая ул. д. 47, лит. В.Ближайшее метро: Сенная площадь.Арендная ставка: 4 080 руб/м2 в мес.включая НДСотдельно оплачиваются коммунальные услуги, электричество, OPEX, уборкаХарактеристики помещения:Планировка: смешаннаяТелекоммуникации: интернет, wi-fi и телефонная линияХарактеристики бизнес-центра:Общая площадь: 5 309 м2Этажность: 4Пропускная система: естьДоговор аренды заключается напрямую с собственником бизнес-центра.Какие-либо дополнительные проценты и комиссии отсутствуют.Звоните, мы покажем помещение в любое удобное для вас время.
                                    79 м2
                                    • Показать контакты
                                    • Добавить в избранное
                                    79 м2
                                    322 320 /мес.
                                    4 080 /м2
                                      1/26
                                      Офисное помещение
                                      Гороховая, 47в
                                       Показать на карте
                                      Технологический институт, 14 мин
                                      Санкт-Петербург
                                      Сдается в аренду помещение в бизнес-центре в непосредственной близости от метро.Бизнес-центр расположен в Адмиралтейском районе и находится в 2 минутах от метро Сенная площадь. Здание построено в 2024 году, оснащено всеми необходимыми инженерными системами.Адрес: Санкт-Петербург, Гороховая ул. д. 47, лит. В.Ближайшее метро: Сенная площадь.Арендная ставка: 3 570 руб/м2 в мес.включая НДСотдельно оплачиваются коммунальные услуги, электричество, OPEX, уборкаХарактеристики помещения:Планировка: смешаннаяТелекоммуникации: интернет, wi-fi и телефонная линияХарактеристики бизнес-центра:Общая площадь: 5 309 м2Этажность: 4Пропускная система: естьДоговор аренды заключается напрямую с собственником бизнес-центра.Какие-либо дополнительные проценты и комиссии отсутствуют.Звоните, мы покажем помещение в любое удобное для вас время.
                                      132 м2
                                      • Показать контакты
                                      • Добавить в избранное
                                      132 м2
                                      471 240 /мес.
                                      3 570 /м2
                                        1/18
                                        Офисное помещение
                                        Гороховая, 47в
                                         Показать на карте
                                        Технологический институт, 14 мин
                                        Санкт-Петербург
                                        Сдается в аренду помещение в бизнес-центре в непосредственной близости от метро.Бизнес-центр расположен в Адмиралтейском районе и находится в 2 минутах от метро Сенная площадь. Здание построено в 2024 году, оснащено всеми необходимыми инженерными системами.Адрес: Санкт-Петербург, Гороховая ул. д. 47, лит. В.Ближайшее метро: Сенная площадь.Арендная ставка: 3 571 руб/м2 в мес.включая НДСотдельно оплачиваются коммунальные услуги, электричество, OPEX, уборкаХарактеристики помещения:Планировка: смешаннаяТелекоммуникации: интернет, wi-fi и телефонная линияХарактеристики бизнес-центра:Общая площадь: 5 309 м2Этажность: 4Пропускная система: естьДоговор аренды заключается напрямую с собственником бизнес-центра.Какие-либо дополнительные проценты и комиссии отсутствуют.Звоните, мы покажем помещение в любое удобное для вас время.
                                        275 м2
                                        • Показать контакты
                                        • Добавить в избранное
                                        275 м2
                                        982 025 /мес.
                                        3 571 /м2
                                          1/24
                                          Универсальное помещение
                                          Московский проспект, 65
                                           Показать на карте
                                          Технологический институт, 12 мин
                                          Санкт-Петербург
                                          Сдается в аренду коммерческое помещение. Площадь 84м2 по полу. Можно сделать помещение двухуровневым и тогда арендопригодная площадь будет 122м2. Возведение второго уровня за счёт арендодателя. Высота помещения 6,5м в коньке.Согласована уличная терраса 40м2Находится прямо напротив входа в детский сад. Отлично подойдет под детские праздники/мастер-классы и тд.
                                          122 м2
                                          • Показать контакты
                                          • Добавить в избранное
                                          122 м2
                                          350 000 /мес.
                                          2 868 /м2
                                            1/23
                                            Офисное помещение
                                            Гороховая, 47в
                                             Показать на карте
                                            Технологический институт, 14 мин
                                            Санкт-Петербург
                                            Сдается в аренду помещение в бизнес-центре в непосредственной близости от метро.Бизнес-центр расположен в Адмиралтейском районе и находится в 2 минутах от метро Сенная площадь. Здание построено в 2024 году, оснащено всеми необходимыми инженерными системами.Адрес: Санкт-Петербург, Гороховая ул. д. 47, лит. В.Ближайшее метро: Сенная площадь.Арендная ставка: 3 650 руб/м2 в мес.включая НДСотдельно оплачиваются коммунальные услуги, электричество, OPEX, уборкаХарактеристики помещения:Планировка: смешаннаяТелекоммуникации: интернет, wi-fi и телефонная линияХарактеристики бизнес-центра:Общая площадь: 5 309 м2Этажность: 4Пропускная система: естьДоговор аренды заключается напрямую с собственником бизнес-центра.Какие-либо дополнительные проценты и комиссии отсутствуют.Звоните, мы покажем помещение в любое удобное для вас время.
                                            498 м2
                                            • Показать контакты
                                            • Добавить в избранное
                                            498 м2
                                            1 817 700 /мес.
                                            3 650 /м2
                                              1/26
                                              Офисное помещение
                                              Гороховая, 47в
                                               Показать на карте
                                              Технологический институт, 14 мин
                                              Санкт-Петербург
                                              Сдается в аренду помещение в бизнес-центре в непосредственной близости от метро.Бизнес-центр расположен в Адмиралтейском районе и находится в 2 минутах от метро Сенная площадь. Здание построено в 2024 году, оснащено всеми необходимыми инженерными системами.Адрес: Санкт-Петербург, Гороховая ул. д. 47, лит. В.Ближайшее метро: Сенная площадь.Арендная ставка: 3 571 руб/м2 в мес.включая НДСотдельно оплачиваются коммунальные услуги, электричество, OPEX, уборкаХарактеристики помещения:Планировка: смешаннаяТелекоммуникации: интернет, wi-fi и телефонная линияХарактеристики бизнес-центра:Общая площадь: 5 309 м2Этажность: 4Пропускная система: естьДоговор аренды заключается напрямую с собственником бизнес-центра.Какие-либо дополнительные проценты и комиссии отсутствуют.Звоните, мы покажем помещение в любое удобное для вас время.
                                              144 м2
                                              • Показать контакты
                                              • Добавить в избранное
                                              144 м2
                                              514 224 /мес.
                                              3 571 /м2
                                                • 1
                                                • 2
                                                • 3
                                                • 4
                                                • 5
                                                • Следующая
                                                Распечатать
                                                Аренда коммерческой недвижимости в Санкт-Петербурге
                                                • по районам
                                                • Автово
                                                • Адмиралтейский район
                                                • Академическое
                                                • Александровская
                                                • Аптекарский остров
                                                • Балканский
                                                • Большая Охта
                                                • Василеостровский район
                                                • Васильевский
                                                • Введенский
                                                • Владимирский
                                                • Волковское
                                                • Выборгский район
                                                • Гавань
                                                • Гагаринское
                                                • Георгиевский
                                                • Горелово
                                                • Гражданка
                                                • Дачное
                                                • Дворцовый
                                                • Екатерингофский
                                                • Звёздное
                                                • Зеленогорск
                                                • Ивановский
                                                • Измайловское
                                                • Калининский район
                                                • Кировский район
                                                • Княжево
                                                • Коломна
                                                • Коломяги
                                                • Колпино
                                                • Колпинский район
                                                • Комарово
                                                • Комендантский аэродром
                                                • Константиновское
                                                • Красненькая речка
                                                • Красногвардейский район
                                                • Красное Село
                                                • Красносельский район
                                                • Кронверкское
                                                • Кронштадтский район
                                                • Купчино
                                                • Курортный район
                                                • Лахта-Ольгино
                                                • Левашово
                                                • Лиговка-Ямская
                                                • Лисий Нос
                                                • Литейный
                                                • Ломоносов
                                                • Малая Охта
                                                • Металлострой
                                                • Молодёжное
                                                • Морские ворота
                                                • Морской
                                                • Московская застава
                                                • Московский район
                                                • Нарвский
                                                • Народный
                                                • Невская застава
                                                • Невский район
                                                • Новоизмайловское
                                                • Обуховский
                                                • Озеро Долгое
                                                • Оккервиль
                                                • Остров Декабристов
                                                • Павловск
                                                • Парголово
                                                • Парнас
                                                • Песочный
                                                • Петергоф
                                                • Петро-Славянка
                                                • Петровский
                                                • Петроградский район
                                                • Петродворцовый район
                                                • Пискарёвка
                                                • Полюстрово
                                                • Понтонный
                                                • Пороховые
                                                • Посадский
                                                • Правобережный
                                                • Приморский район
                                                • Прометей
                                                • Пулковский меридиан
                                                • Пушкинский район
                                                • Репино
                                                • Ржевка
                                                • Рыбацкое
                                                • Сампсониевское
                                                • Сапёрный
                                                • Светлановское
                                                • Северный
                                                • Семёновский
                                                • Сенной
                                                • Серово
                                                • Смольнинское
                                                • Смолячково
                                                • Солнечное
                                                • Сосновая поляна
                                                • Сосновское
                                                • Стрельна
                                                • Тярлево
                                                • Ульянка
                                                • Урицк
                                                • Усть-Ижора
                                                • Ушково
                                                • Финляндский
                                                • Фрунзенский район
                                                • Центральный район
                                                • Чкаловское
                                                • Чёрная речка
                                                • Шувалово-Озерки
                                                • Шушары
                                                • Юго-Запад
                                                • Южно-Приморский
                                                • Юнтолово
                                                • № 15
                                                • № 21
                                                • № 54
                                                • № 65
                                                • № 72
                                                • № 75
                                                • № 78

                                                Вместе с этим также ищут:

                                                Снять помещение в Санкт-Петербурге Снять торговую площадь в Санкт-Петербурге Снять офис в Санкт-Петербурге Снять склад в Санкт-Петербурге Снять производственное помещение в Санкт-Петербурге Снять отдельностоящее здание в Санкт-Петербурге

                                                🏠 Как снять коммерческую недвижимость в Санкт-Петербурге на N1?

                                                • ✔ В поисках объявления об аренде или сдаче коммерческой недвижимости в Санкт-Петербурге?
                                                • ✔ На N1 размещены 207 коммерческой недвижимости
                                                • ✔ Чтобы снять или сдать недвижимость, воспользуйтесь формой поиска, фильтрами или быстрыми ссылками.

                                                💸 Сколько стоит коммерческая недвижимость в Санкт-Петербурге?

                                                • 🟢 Средняя цена аренды коммерческой недвижимости - 430,99 тыс ₽
                                                • 🟢 Минимальная стоимость за 1 м2: 1,81 тыс ₽

                                                📚 Какая площадь коммерческой недвижимости?

                                                • Наибольшая площадь: 6,52 тыс м²
                                                • Минимальная площадь: 8 м²