Офисное помещение
Мира, 3 Показать на карте
Мира, 3 Показать на карте
Петроградский район
Санкт-Петербург
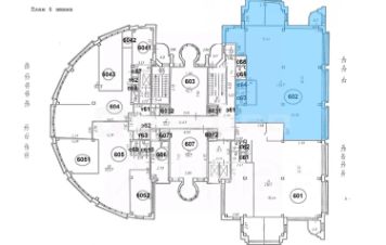
Аренда офисного блока 93.5 кв.м недалеко от метро. Состояние отделки — готово к въезду.Договор аренды заключаете с собственником помещения. Без надбавки к итоговой стоимости аренды.В арендную ставку включено: - НДС.В арендную ставку не входит: коммунальные услуги, электроэнергия, эксплуат.расходы, уборка офиса, уборка общих мест.• планировка в офисе: кабинетная,• кондиционер: нет,• вентиляция: нет,• сан. узел в офисе: нет,• условия договора: 11 месяцев, предоплата за первый и два последних месяца. бессрочный, если большая площ-от 300м., минимум на 4 мес,• налогообложение: НДС,• вход в здание: для арендаторов по документу, для клиентов по документу,• интернет провайдеры: Чайка-телеком,• парковка: на прилегающих улицах,• здание работает: круглосуточно,Показы в рабочее время.Получите подробную информацию об офисе. Отправим ее на почту или по Whatsapp.Звоните. Мы оперативно организуем просмотр помещения в удобную для вас дату и ответим на все интересующие вопросы.Для вас наши услуги бесплатны, их оплачивает БЦ.Описание бизнес-центра:Деловой центр ''Троицкий'' расположен в непосредственной близи к Александровскому парку. БЦ ''Троицкий'' работает круглосуточно. Аренда помещения в БЦ ''Троицкий'' — это перспективное решение разместить собственный бизнес.
93 м2
- Показать контакты
- Добавить в избранное
93 м2
98 082 /мес.
1 049 /м2
