Офисное помещение
17-я В.О. линия, 4 Показать на карте
17-я В.О. линия, 4 Показать на карте
Василеостровская, 15 мин
Санкт-Петербург
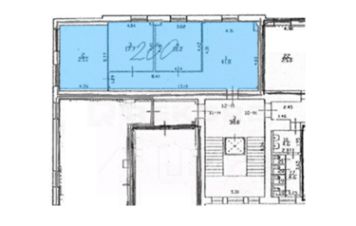
Сдается под офис блок 36.9 кв.м недалеко от метро. Состояние отделки — готово к въезду.Подписание договора аренды напрямую с владельцем помещения. Работаем без комиссии, процентов и надбавок.В арендную ставку включено: - НДС,- коммунальные услуги, включая электроэнергию,- эксплуат.расходы,- уборка общих мест,- вывоз мусора,- охрана здания.В арендную ставку не входит: уборка офиса, интернет.• планировка в офисе: кабинетная,• условия договора: 11 месяцев, предоплата за первый месяц,• налогообложение: НДС,• вход в здание: для арендаторов по документу, для клиентов по документу,• интернет провайдеры: Мегафон,• парковка: на территории БЦ,• здание работает: 8...22, кроме выходных,Покажем офис, ответив на все ваши вопросы.Получите подробную информацию об офисе. Отправим ее на почту или по Whatsapp.Звоните. Мы оперативно организуем просмотр помещения в удобную для вас дату и ответим на все интересующие вопросы.Для вас наши услуги бесплатны, их оплачивает БЦ.Описание бизнес-центра:В пешей досягаемости от центра располагаются 2 станции метро ''Горный институт'' и ''Василеостровская''. В здании размещены юридические и медицинские компании. Имеется все необходимое для работы телекоммуникационное и инженерное оборудование.
36 м2
- Показать контакты
- Добавить в избранное
36 м2
55 350 /мес.
1 500 /м2
