Офисное помещение
Новолитовская, 15 Показать на карте
Новолитовская, 15 Показать на карте
Лесная, 9 мин
Санкт-Петербург
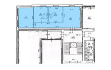
Сдается в аренду просторный офис 240 кв.м недалеко от метро.Подписание договора аренды напрямую с владельцем помещения. Работаем без комиссии, процентов и надбавок.В арендную ставку включено: - НДС,- коммунальные услуги, включая электроэнергию.В арендную ставку не входит: эксплуат.расходы, уборка офиса, уборка общих мест.• условия договора: 11 мес. предоплата за первый и последний месяц,• налогообложение: НДС,• вход в здание: для арендаторов по документу, для клиентов по документу,• интернет провайдеры: Westcall, Обит,• парковка: на территории БЦ,• здание работает: 10...20,Покажем офис, ответив на все ваши вопросы.Поможем провести переговоры по условиям аренды, удовлетворив все стороны.Для организации просмотра и для получения консультации по условиям аренды звоните.Для вас наши услуги бесплатны, их оплачивает БЦ.Описание бизнес-центра:Недалеко от бизнес-центра ''Аквилон'' находятся сразу две станции метро — ''Выборгская'' и ''Лесная'', всё это обеспечивает возможность комфортно добраться до БЦ ''Аквилон'' практически из любого района горда, что безусловно удобно как для сотрудников, так и для деловых гостей. Для арендаторов предлагается телефонная связь, интернет, доставка корреспонденции, автоматические системы контроля за пожаробезопасностью, современный ремонт, стеклопакеты, система вентиляции, фирменные лифты OTIS и KONE, помимо этого функционирует круглосуточная система видеонаблюдения и охрана. Условия аренды в бизнес-центре Бизнес-центр ''Аквилон'' размещен в здании бывшего Всесоюзного научно-исследовательского института и насчитывает более двухсот офисных помещений предлагаемых в аренду.
240 м2
- Показать контакты
- Добавить в избранное
240 м2
432 000 /мес.
1 800 /м2
