Офисное помещение
Швецова, 41 Показать на карте
Швецова, 41 Показать на карте
Кировский район
Санкт-Петербург
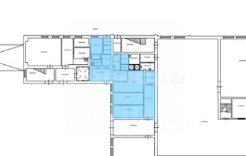
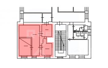
Сдается в аренду 1507 кв.м. Состояние отделки — готово к въезду.Договор аренды заключаете с собственником помещения. Без надбавки к итоговой стоимости аренды.В арендную ставку включено: - НДС.В арендную ставку не входит: коммунальные услуги, электроэнергия, эксплуат.расходы, уборка офиса, уборка общих мест.• планировка в офисе: кабинетная,• в офисе имеется: мокрая точка,• кондиционер: нет,• вентиляция: нет,• сан. узел в офисе: есть,• условия договора: 11 месяцев, предоплата за первый и два последних месяца, минимум на 11 мес,• налогообложение: НДС,• вход в здание: для арендаторов по документу, для клиентов по документу,• интернет провайдеры: Чайка телеком,• парковка: на территории БЦ,• здание работает: круглосуточно,Покажем офис, ответив на все ваши вопросы.Поможем провести переговоры по условиям аренды, удовлетворив все стороны.Звоните. Мы оперативно организуем просмотр помещения в удобную для вас дату и ответим на все интересующие вопросы.Для вас наши услуги бесплатны, их оплачивает БЦ.Описание бизнес-центра:В районе делового центра ''Швецова 41'' есть несколько АЗС, магазины, аптеки и другие объекты инфраструктуры, благодаря которым аренда помещения в этом бизнес-центре становится еще более привлекательной. Собственная котельная позволит круглый год обеспечивать комфортные условия для работы ваших сотрудников. При аренде офиса в стоимость арендной ставки будет включен НДС.
1507 м2
- Показать контакты
- Добавить в избранное
1507 м2
1 582 350 /мес.
1 050 /м2
