Офисное помещение
Большой Сампсониевский проспект, 28 корп. 2 Показать на карте
Большой Сампсониевский проспект, 28 корп. 2 Показать на карте
Выборгская, 10 мин
Санкт-Петербург
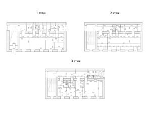
Офисное помещение 562.4 кв. м в бизнес-центре Mezon Plaza. Объект скоро освободится. Успейте забронировать на выгодных условиях. Готовность ко въезду уточняется по запросу. Район: Выборгский. Ближайшие станции метро: Выборгская, Площадь Ленина. Характеристики:- Класс: B+, - Арендопригодная площадь: 22600, - Код налоговой: 02, - Размер типового этажа: 3700, - Высота потолков: 2.8 м, 2.9 м, - Наличие лифта: Есть, - Кол-во мест наземного паркинга: 30, - Кол-во мест подземного паркинга: 167, - Интернет-провайдеры: Авантел, Билайн, ОБИТ, Прометей, РетнНет, Сити Телеком, Смарт Телеком, Эртелеком, - Шаг колонн: 8.1x8.1 м. Арендная ставка: 2 000 руб./кв. м в месяц. Финансовые условия: - В стоимость включено: НДС, OPEX, Коммунальные услуги, - Оплачивается отдельно: Интернет, Телефония, Уборка, Электроэнергия, - Налог: Включая НДС. Без комиссии и скрытых платежей для арендатора. Готовы оперативно организовать просмотр в удобное время, предоставить PDF-презентацию и план. Точное местоположение объекта можно найти по данным координатам: 59.963466,30.343661 ID = c_1785724
562 м2
- Показать контакты
- Добавить в избранное
562 м2
1 124 800 /мес.
2 000 /м2
