Офисное помещение
Виндавская, 2 Показать на карте
Виндавская, 2 Показать на карте
Кировский район
Санкт-Петербург
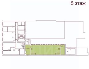
Офисное помещение 719.9 кв. м в бизнес-центре ''Виндавская 2''.Район: Кировский. Ближайшие станции метро: Нарвская. Характеристики:- Класс: B, - Арендопригодная площадь: 6400, - Код налоговой: 05, - Развозка: Шаттл, - Высота потолков: 3 м, 6 м, - Кол-во мест наземного паркинга: 30. Арендная ставка: 1 000 руб./кв. м в месяц. Финансовые условия: - В стоимость включено: НДС, - Оплачивается отдельно: OPEX, Интернет, Коммунальные услуги, Телефония, Уборка, - Налог: Включая НДС. Без комиссии и скрытых платежей для арендатора. Готовы оперативно организовать просмотр в удобное время, предоставить PDF-презентацию и план. Точное местоположение объекта можно найти по данным координатам: 59.910104,30.253220 ID = c_759605
719 м2
- Показать контакты
- Добавить в избранное
719 м2
719 900 /мес.
1 000 /м2
