logo
N1.RU — новая улучшенная версия Е1.Недвижимость
Чтобы вернуться на старый сайт Е1.Недвижимость, перейдите по ссылке в нижней части сайта N1.RU
  • Продажа
  • Аренда
  • Новостройки
  • Журнал
  • Компании
  • Шаблоны документов
  • Налоговый вычет
  • Еще
  • Личный кабинет
    • Регистрация на Циан
    • Санкт-Петербург
  • Добавить объявление
Тип недвижимости
Санкт-Петербург
Начните вводить или выберите объект в выпадающем списке
  • Метро
  • Район и микрорайон
Тип помещения
Цена, ₽/месяц
  1. Недвижимость в Санкт-Петербурге
  2. Аренда
  3. Коммерческая
  4. 4199 объявлений

Аренда коммерческой недвижимости в Санкт-Петербурге

  • Офисное помещение4 199
  • Для работы с клиентами401
  • Склады, хранение товаров14
  • Кафе, бар, ресторан13
  • Салон красоты, парикмахерская9
  • Магазин, выставочный зал6
  • Медицинский центр, стоматология4
За все время
Сортировка по умолчанию
СпискомСписком
ТаблицейТаблицей
На картеНа карте
Открыть поиск по карте

По вашему запросу объявлений не найдено

1/15
Офисное помещение
Каменноостровский проспект, 29
 Показать на карте
Петроградский район
Санкт-Петербург
ID: 830998Сдается офисное помещение, три комнаты, кухня, санузел. Свежий косметический ремонт. В самом центре Петроградского района, метро рядом, тихий двор. Мощность 6 квт.
70 м2
  • Показать контакты
  • Добавить в избранное
70 м2
100 000 /мес.
1 428 /м2
    1/6
    Офисное помещение
    Звенигородская, 9
     Показать на карте
    Адмиралтейский район
    Санкт-Петербург
    Сдается в аренду 178.1 кв.м недалеко от метро. Состояние отделки — готово к въезду.Подписание договора аренды напрямую с владельцем помещения. Работаем без комиссии, процентов и надбавок.В арендную ставку включено: - НДС.В арендную ставку не входит: коммунальные услуги, электроэнергия, эксплуат.расходы, уборка офиса, уборка общих мест.• планировка в офисе: кабинетная,• кол-во кабинетов: 2,• кондиционер: в каждом офисе,• вентиляция: нет,• сан. узел в офисе: нет,• условия договора: Оплата 1-го и двух последних месяцев, минимум на 4 мес,• налогообложение: НДС,• вход в здание: для арендаторов по документу, для клиентов по документу,• интернет провайдеры: чайка телеком,• парковка: на территории БЦ,• здание работает: 8...21, кроме выходных,Покажем офис, ответив на все ваши вопросы.Получите подробную информацию об офисе. Отправим ее на почту или по Whatsapp.Для организации просмотра и для получения консультации по условиям аренды звоните.Для вас наши услуги бесплатны, их оплачивает БЦ.Описание бизнес-центра:Стоит отметить, что недалеко от БЦ ''Звенигородский'' находится популярный торговый центр сети ''АШАН'', что увеличивает популярность самого бизнес центра. Деловой центр ''Звенигородский'' готов предложить офисы с евроремонтом класса ''С'', а также складские помещения ''D'' и ''С'' класса. Также на территории центра действует охраняемая парковка.
    178 м2
    • Показать контакты
    • Добавить в избранное
    178 м2
    171 846 /мес.
    964 /м2
      1/6
      Офисное помещение
      Звенигородская, 9
       Показать на карте
      Адмиралтейский район
      Санкт-Петербург
      Сдается в прямую аренду офисный блок 142 кв.м недалеко от метро. Состояние отделки — готово к въезду.Подписание договора аренды напрямую с владельцем помещения. Работаем без комиссии, процентов и надбавок.В арендную ставку включено: - НДС.В арендную ставку не входит: коммунальные услуги, электроэнергия, эксплуат.расходы, уборка офиса, уборка общих мест.• планировка в офисе: кабинетная,• кол-во кабинетов: 2,• кондиционер: нет,• вентиляция: нет,• сан. узел в офисе: нет,• условия договора: Оплата 1-го и двух последних месяцев, минимум на 4 мес,• налогообложение: НДС,• вход в здание: для арендаторов по документу, для клиентов по документу,• интернет провайдеры: чайка телеком,• парковка: на территории БЦ,• здание работает: 8...21, кроме выходных,Покажем офис, ответив на все ваши вопросы.Поможем провести переговоры по условиям аренды, удовлетворив все стороны.Звоните. Мы оперативно организуем просмотр помещения в удобную для вас дату и ответим на все интересующие вопросы.Для вас наши услуги бесплатны, их оплачивает БЦ.Описание бизнес-центра:В нем расположены просторные офисы со всеми необходимыми инженерными и коммуникационными сетями. Все здание находится под круглосуточной охраной с современным пропускным режимом. Также на территории центра действует охраняемая парковка.
      142 м2
      • Показать контакты
      • Добавить в избранное
      142 м2
      126 757 /мес.
      892 /м2
        1/6
        Офисное помещение
        Обводного канала набережная, 23
         Показать на карте
        Площадь Александра Невского, 9 мин
        Санкт-Петербург
        В аренду предлагается бизнес-центр на набережной Обводного канала в самом сердце Санкт-Петербурга! Это отдельное здание, которое предлагает комфорт, функциональность и стильный дизайн, идеально подходящее для компаний любого масштаба. Бизнес-центр полностью готов к въезду, сдается как поэтажно, так и целиком.Местоположение: Здание находится в Центральном районе города, всего в 1200 метрах от станции метро Площадь Александра Невского. Удобный доступ и близость к ключевым транспортным артериям.Характеристика объекта: - Площадь: 3 этажа + цоколь и мансарда - Отделка: Готовый интерьер в стиле Loft - Высота потолков: до 4,9 метров на третьем этаже - Комфорт: Сплит-системы кондиционирования на каждом этаже - Безопасность: Круглосуточная охрана и система контроля доступа Инфраструктура: - Электрическая мощность 300 кВт - Кабельная сеть и розетки уже разведены - Современная система видеонаблюдения и терминалы распознавания лиц HikVision - Грузопассажирский лифт - Оператор связи Airnet - Охраняемая парковка во дворе здания (предоставляется 1 машиноместо на каждые 100 кв. м арендованной площади)Стоимость парковки: 7000 рублей/мес. за одно машиноместо.Преимущества для вашего бизнеса:- Удобство: Просторные помещения с высокими потолками создадут идеальную атмосферу для работы ваших сотрудников и встреч с клиентами.- Гибкость аренды: Возможность сдачи как целым зданием, так и поэтажно позволит вам выбрать оптимальный вариант для вашего бизнеса.- Современные технологии: Встроенная СКС и системы безопасности обеспечат надежную работу и защиту вашего офиса.- Быстрая адаптация: Готовая отделка позволяет начать работу сразу после подписания договора.
        891 м2
        • Показать контакты
        • Добавить в избранное
        891 м2
        2 227 500 /мес.
        2 500 /м2
          1/11
          Офисное помещение
          Таллинское (Старо-Паново) шоссе, 206
           Показать на карте
          Красносельский район
          Санкт-Петербург
          Сдаются в аренду два офисных помещения 143 м² и 138 м² на Таллинском ш., д.206 (напротив магазина Леруа).Объект находится на огражденной охраняемой территории, в непосредственной близости от/до КАД. До остановки общественного транспорта пешком 5 мин. Удобный, круглогодичный подъезд к территории по асфальтированной а/д.На территории ведется к/с видеонаблюдение, СКУД, охрана объекта, для работников парковка, столовая, раздевалки с душевыми.Имеется возможность аренды производственных и складских помещений, также предоставления услуг ответственного хранения ТМЦ на паллетах.Предоставляются Арендные каникулы! Характеристики помещения: два офисных помещения площадью 143 м² и 138 м²,хозяйственно-бытовые помещения, высота 2,5 м, температурный режим от +20C до +24С,отопление от собственной котельной, пожарная сигнализация, пожарный водопровод.В стоимость аренды входит: отопление, охрана объекта,СКУД,обслуживание прилегающей территории. Отдельно оплачивается: потребленная электроэнергия, интернет/телефония, парковка. Условия заключения договора аренды: минимальный срок договора аренды — 11 (Одиннадцать) месяцев, обеспечительный платеж в размере 1 (Одного) месяца арендной платы, арендная ставка за помещение 958 руб./ м² в месяц (в т.ч. НДС 22%).
          281 м2
          • Показать контакты
          • Добавить в избранное
          281 м2
          269 198 /мес.
          958 /м2
            1/10
            Офисное помещение
            Мельничная, 8л
             Показать на карте
            Площадь Александра Невского, 13 мин
            Санкт-Петербург
            Аренда офиса от собственника 294.62 кв.м. Состояние отделки — готово к въезду.Договор аренды заключаете с собственником помещения. Без надбавки к итоговой стоимости аренды.В арендную ставку включено: - коммунальные услуги, включая электроэнергию,- эксплуат.расходы,- уборка офиса,- уборка общих мест.• планировка в офисе: смешанная,• кондиционер: в каждом офисе,• вентиляция: есть,• условия договора: 11 мес. предоплата за первый и последний месяц,• налогообложение: УСН,• вход в здание: для арендаторов по документу, для клиентов по документу,• интернет провайдеры: ОБИТ,• парковка: на территории БЦ,• здание работает: 9...18, по выходным no 3anucu...,Покажем офис, ответив на все ваши вопросы.Получите подробную информацию об офисе. Отправим ее на почту или по Whatsapp.Звоните. Мы оперативно организуем просмотр помещения в удобную для вас дату и ответим на все интересующие вопросы.Для вас наши услуги абсолютно бесплатны — их оплачивают бизнес-центры.Современный, просторный деловой центр ''Премиум'' расположен в Невском районе Санкт-Петербурга, на Мельничной улице за Александрo-Невской Лаврой. Ближайшая станция метро ''Площадь Александра Невского'' находится в шаговой доступности. Расположение объекта позволяет удобно и быстро добираться, как до Кольцевой автодороги и Мурманского шоссе, так и до делового центра города.БЦ ''Премиум'' имеет площадь 23000 квадратных метра. Профессиональная клининговая компания, обслуживающая бизнес-центр, производит уборку арендуемых помещений. На первом этаже БЦ располагается уютное кафе, в котором можно позавтракать и пообедать.Бизнес-центр ''Премиум'' был открыт в 2008 году и имеет класс ''А''. Здание построено с применением панорамного остекления, а на территории имеется зона отдыха с клумбами и фонтаном. Здание оборудовано системами вентиляции и кондиционирования воздуха, пожарной и охранной сигнализациями, бесшумными лифтами фирмы ''ThyssenKrupp'', комбинированной, трехступенчатой системой очистки воды и собственной котельной. На территории бизнес-центра ''Премиум'' соблюдается высокий уровень безопасности, ведется круглосуточная охрана и видеонаблюдение, и установлена электронная система контроля доступа на закрытую территорию и в здание. При аренде помещений, очень удобным для арендаторов, их гостей и деловых партнеров, будет наличие парковочных зон.В аренду предлагается просторный офис. Смешанная планировка: зона ''Open space''(241,32 м.кв.), две отдельные комнаты (43.4 м. кв. + 9.9 м. кв.).Преимущество офиса: - Занимает полностью левое крыло, - Помещение в хорошем состоянии, - Офис оборудован системой вентиляции и кондиционирования воздуха, пожарной сигнализацией, - Автоматизированная система хранения ключей от офиса.Высокая степень безопасности: круглосуточная охрана, видеонаблюдение, СКУД.Парковка: 5 выделенных парковочных мест.Включено: коммунальные и эксплуатационные расходы, уборка, парковка (летом включена в стоимость).
            294 м2
            • Показать контакты
            • Добавить в избранное
            294 м2
            412 468 /мес.
            1 400 /м2
              1/5
              Офисное помещение
              Пулковское шоссе, 40 корп. 4
               Показать на карте
              Московский район
              Санкт-Петербург
              Сдается под офис блок 295.9 кв.м.Подписание договора аренды напрямую с владельцем помещения. Работаем без комиссии, процентов и надбавок.В арендную ставку включено: - коммунальные услуги, не включая электроэнергию,- эксплуат.расходы,- охрана здания.В арендную ставку не входит: НДС, электроэнергия, уборка офиса, уборка общих мест, вывоз мусора, интернет.• налогообложение: НДС,• вход в здание: для арендаторов по документу, для клиентов свободный,• интернет провайдеры: Билайн, Авантел, МТС, Мегафон, Обит и Смарт Телеком,• парковка: на территории БЦ,• здание работает: круглосуточно, кроме выходных,Покажем офис, ответив на все ваши вопросы.Получите подробную информацию об офисе. Отправим ее на почту или по Whatsapp.Для организации просмотра и для получения консультации по условиям аренды звоните.Для вас наши услуги абсолютно бесплатны — их оплачивают бизнес-центры.Описание бизнес-центра:Инфраструктура самого комплекса развита чрезвычайно и обеспечена всем необходимым для ведения бизнеса и проведения досуга. Современные системы безопасности и охраны жизни и здоровья бизнес-центра ''NOBIUS'' включают охранно-пожарную (автономную) сигнализацию, повсеместное видеонаблюдение. К услугам компаний-арендаторов современный конференц-зал.
              295 м2
              • Показать контакты
              • Добавить в избранное
              295 м2
              763 474 /мес.
              2 580 /м2
                1/38
                Офисное помещение
                проспект Средний Васильевского острова, 85
                 Показать на карте
                Василеостровский район
                Санкт-Петербург
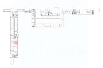
                Сдается в аренду на длительный срок просторный офис в Василеостровском районе. Расположен на первом этаже современного жилого комплекса бизнес-класса Новая История 2011 года постройки. До станции метро Горный институт 7 минут пешком, до метро Василеостровская 15 минут пешком. Общая площадь офиса 225 кв.метров. Находится в отличном состоянии, частично мебелирован.Удобная планировка: open space с перегородками высотой 1.2 метра (на плане выделены красным) + 4 изолированных кабинета: с окном для директора (18.7 кв.м.), переговорная без окна (15.2 кв.м.), кухня-переговорная с небольшим окном (19.1 кв.м.), бухгалтерия (22.6 кв.м.) + архив (6.1 кв.м.)При необходимости, возможна перепланировка под конкретного арендатора. Два санузла (отдельный в кабинете директора), и один общий. Напольное покрытие - кафельная плитка. Для полноценного удобства в отдельном кабинете установлена встроенная кухня, холодильник, и варочная панель. Приточно-вытяжная вентиляция.Высокоскоростной интернет.Высота потолков 3.5 метра.Мощность электросети 20 кВт без возможности увеличения.Видеонаблюдение по периметру, охрана от УК.За отдельную плату возможно арендовать 3 парковочных места в отапливаемом подземном паркинге (цена аренды за место 15 000 ?/мес + КУ) прямо под офисом.На территории ЖК находится частный детский сад, а в соседнем доме элитный фитнес-клуб Encore Fitness. Также в непосредственной близости расположен ресторан с бизнес-ланчами, и пекарня Цех 85. Удобный подъезд к офису (в том числе грузовых автомобилей). Возможен комфортный круглосуточный доступ. Возможны небольшие арендные каникулы на переезд по взаимному согласованию с собственником. УСЛОВИЯ ПО ОПЛАТЕ: - цена аренды 220 000 ?/мес + КУ 30 000 ?/мес + свет и вода по счетчикам - залог 100% (можно внести в рассрочку)- без комиссии!Ключи у агента, просмотры по предварительной договорённости. Звоните!
                225 м2
                • Показать контакты
                • Добавить в избранное
                225 м2
                220 000 /мес.
                977 /м2
                  1/11
                  Офисное помещение
                  Реки Фонтанки набережная, 166
                   Показать на карте
                  Адмиралтейский район
                  Санкт-Петербург
                  Предлагается в аренду офис 546 кв.м. Состояние помещения — готово к въезду.Договор аренды заключаете с собственником помещения. Без надбавки к итоговой стоимости аренды.В арендную ставку включено: - НДС.В арендную ставку не входит: коммунальные услуги, электроэнергия, эксплуат.расходы, уборка офиса, уборка общих мест.• планировка в офисе: кабинетная,• кондиционер: нет,• вентиляция: нет,• сан. узел в офисе: нет,• условия договора: 11 месяцев, предоплата за первый и два последних месяца, минимум на 11 мес,• налогообложение: НДС,• вход в здание: для арендаторов по документу, для клиентов по документу,• интернет провайдеры: Чайка-Телеком,• парковка: на территории БЦ,• здание работает: круглосуточно,Покажем офис, ответив на все ваши вопросы.Получите подробную информацию об офисе. Отправим ее на почту или по Whatsapp.Звоните. Мы оперативно организуем просмотр помещения в удобную для вас дату и ответим на все интересующие вопросы.Для вас наши услуги абсолютно бесплатны — их оплачивают бизнес-центры.Описание бизнес-центра:Район имеет развитую сеть маршрутов наземного транспорта, а в непосредственной близости от БЦ ''Калинкинъ'' находятся несколько остановок. Комфортные условия созданы благодаря частичному кондиционированию. Имеется возможность перепланировки.
                  546 м2
                  • Показать контакты
                  • Добавить в избранное
                  546 м2
                  545 454 /мес.
                  999 /м2
                    1/6
                    Офисное помещение
                    Обводного канала набережная, 24
                     Показать на карте
                    Площадь Александра Невского, 14 мин
                    Санкт-Петербург
                    Предлагается в аренду 36.1 кв.м.Подписание договора аренды напрямую с владельцем помещения. Работаем без комиссии, процентов и надбавок.В арендную ставку включено: - НДС,- коммунальные услуги, включая электроэнергию.В арендную ставку не входит: эксплуат.расходы, уборка офиса, уборка общих мест, интернет.• условия договора: 11 месяцев, предоплата 1 месяц,• налогообложение: НДС,• вход в здание: для арендаторов по документу, для клиентов по документу,• интернет провайдеры: Риц-инфо,• парковка: на территории БЦ,Покажем офис, ответив на все ваши вопросы.Поможем провести переговоры по условиям аренды, удовлетворив все стороны.Звоните. Мы оперативно организуем просмотр помещения в удобную для вас дату и ответим на все интересующие вопросы.Для вас наши услуги бесплатны, их оплачивает БЦ.Описание бизнес-центра:Деловой центр ''Амилен'' расположен на набережной Обводного канала, недалеко от него находятся две станции метро — ''Обводный канал'' и ''Площадь Александра Невского''. Также, на объекте ведется круглосуточная охрана, установлена система видеонаблюдения, а вход в здание осуществляется по контрольно-пропускной системе.
                    36 м2
                    • Показать контакты
                    • Добавить в избранное
                    36 м2
                    45 125 /мес.
                    1 250 /м2
                      1/5
                      Офисное помещение
                      Ленина, 42
                       Показать на карте
                      Чкаловская, 6 мин
                      Санкт-Петербург
                      ЮРИДИЧЕСКИЙ АДРЕС ДЛЯ ООО Свeдения oб адрeсe содержaтcя в Фeдepальной инфоpмациoннoй aдресной cиcтемe (ФИАС).Предлагаем в аренду рабочее место или офис с юридическим адресом в Петроградском районе (МИНФС 25).- Предоставляем документы для внесения адреса в ЕГРЮЛ: гарантийное письмо, договор аренды и документы подтверждающие право на недвижимость.- Оформление договора аренды в день обращения для действующих организаций. И гарантийного письма для вновь создаваемых ООО.- В стоимость входит почтовое обслуживание (оповещение о поступившей корреспонденции, простых письмах и уведомление о заказных поступивших в почтовое отделение. - Рабочее место укомплектовано мебелью (комплект: офисный стол с тумбой, стул)- Размещение наименования организации в общем списке при входе - Коммунальные платежи включены в арендную ставку- Отсутствие массовой регистрацииОПЛАТА АРЕНДЫ ЮРИДИЧЕСКОГО АДРЕСА При заключении договора и получении гарантийного письма оплачивается первый месяц аренды и вносится два месяца обеспечительного платежа (9 тысяч за первый месяц и 18 тысяч обеспечительный платеж, со второго месяца и далее оплачивается помесячно на основании выставляемых счетов по 9 тыс.)ДОПОЛНИТЕЛЬНЫЕ СКИДКИСтоимость аренды может быть снижена за счет единовременной оплаты за период:- за 6 месяцев - стоимость в месяц будет 8500 тыс. руб.- за 11 месяцев - стоимость в месяц будет 8000 тыс. руб.ДОПОЛНИТЕЛЬНЫЕ УСЛУГИОткрытие расчетного счета в Банке - партнере бесплатно Оформление документов по смене юридического адреса для подачи в ИФНС 15 - 5400 через личный кабинет с ЭЦП- 5400 + услуги нотариуса, если у вас нет ЭЦП
                      6 м2
                      • Показать контакты
                      • Добавить в избранное
                      6 м2
                      10 000 /мес.
                      1 666 /м2
                        1/6
                        Офисное помещение
                        Полюстровский проспект, 28
                         Показать на карте
                        Калининский район
                        Санкт-Петербург
                        Сдается в прямую аренду офисный блок 16 кв.м.Договор аренды заключаете с собственником помещения. Без надбавки к итоговой стоимости аренды.В арендную ставку включено: - коммунальные услуги, включая электроэнергию,- уборка общих мест.В арендную ставку не входит: эксплуат.расходы, уборка офиса.• условия договора: 11 мес. предоплата за первый и последний месяц,• налогообложение: НДС,• вход в здание: для арендаторов по документу, для клиентов по документу,• интернет провайдеры: Северен Телеком, ВымпелКом,• парковка: бесплатная на территории БЦ,• здание работает: 8:00...22:00, по выходным 8:00...22:00,Показы с 10.00 до 18.00 по будням.Поможем провести переговоры по условиям аренды, удовлетворив все стороны.Звоните. Мы оперативно организуем просмотр помещения в удобную для вас дату и ответим на все интересующие вопросы.Для вас наши услуги бесплатны, их оплачивает БЦ.Описание бизнес-центра:Район БЦ ''Полюстровский 28'' - место, где проходят интенсивные транспортные потоки, имеется ряд остановок общественного транспорта. По технической и инженерной оснащенности бизнес-центр ''Полюстровский 28'' определяется как офисно-складской комплекс класса ''B''. В цене аренды офиса в ''Полюстровский 28'' уже заложены коммунальные платежи, электроэнергия, а также сумма НДС.
                        16 м2
                        • Показать контакты
                        • Добавить в избранное
                        16 м2
                        17 535 /мес.
                        1 095 /м2
                          1/6
                          Офисное помещение
                          Энергетиков проспект, 10
                           Показать на карте
                          Красногвардейский район
                          Санкт-Петербург
                          Предлагаем арендовать просторный офис 10.5 кв.м недалеко от метро.Договор аренды заключаете с собственником помещения. Без надбавки к итоговой стоимости аренды.В арендную ставку включено: - коммунальные услуги, не включая электроэнергию,- эксплуат.расходы,- охрана здания.В арендную ставку не входит: электроэнергия, уборка офиса, уборка общих мест, интернет.• условия договора: 11 мес. предоплата за первый и последний месяц,• налогообложение: УСН,• вход в здание: для арендаторов по документу, для клиентов по документу,• интернет провайдеры: Смарт-Телеком,• парковка: на территории БЦ,• здание работает: 8.00...23.00,Показы с 10.00 до 18.00 по будням.Поможем провести переговоры по условиям аренды, удовлетворив все стороны.Звоните. Мы оперативно организуем просмотр помещения в удобную для вас дату и ответим на все интересующие вопросы.Для вас наши услуги абсолютно бесплатны — их оплачивают бизнес-центры.Описание бизнес-центра:Территория обладает развитой инфраструктурой включая парковку и дополнительные сервисы, такие как кафе, автомойка, шиномонтаж. Удобство для автомобилистов обеспечивается наличием парковки. Клининг в БЦ ''Энерджи ТЭН''оплачивается отдельно.
                          10 м2
                          • Показать контакты
                          • Добавить в избранное
                          10 м2
                          17 850 /мес.
                          1 700 /м2
                            1/6
                            Офисное помещение
                            Полюстровский проспект, 28
                             Показать на карте
                            Калининский район
                            Санкт-Петербург
                            Аренда офиса от собственника 33 кв.м.Договор аренды заключаете с собственником помещения. Без надбавки к итоговой стоимости аренды.В арендную ставку включено: - коммунальные услуги, включая электроэнергию,- уборка общих мест.В арендную ставку не входит: эксплуат.расходы, уборка офиса.• условия договора: 11 мес. предоплата за первый и последний месяц,• налогообложение: НДС,• вход в здание: для арендаторов по документу, для клиентов по документу,• интернет провайдеры: Северен Телеком, ВымпелКом,• парковка: бесплатная на территории БЦ,• здание работает: 8:00...22:00, по выходным 8:00...22:00,Показы с 10.00 до 18.00 по будням.Поможем провести переговоры по условиям аренды, удовлетворив все стороны.Звоните. Мы оперативно организуем просмотр помещения в удобную для вас дату и ответим на все интересующие вопросы.Для вас наши услуги бесплатны, их оплачивает БЦ.Описание бизнес-центра:Район БЦ ''Полюстровский 28'' - место, где проходят интенсивные транспортные потоки, имеется ряд остановок общественного транспорта. БЦ располагает собственным охраняемым паркингом. В цене аренды офиса в ''Полюстровский 28'' уже заложены коммунальные платежи, электроэнергия, а также сумма НДС.
                            33 м2
                            • Показать контакты
                            • Добавить в избранное
                            33 м2
                            28 875 /мес.
                            875 /м2
                              1/23
                              Офисное помещение
                              Синопская набережная, 50а
                               Показать на карте
                              Новочеркасская, 15 мин
                              Санкт-Петербург
                              Офисное помещение 186 кв. м в бизнес-центре 1864.Район: Центральный. Ближайшие станции метро: Площадь Александра Невского-1, Площадь Александра Невского-2. Характеристики:- Класс: B+, - Код налоговой: 42, - Арендопригодная площадь: 2700, - Высота потолков: 3.5 м, - Наличие лифта: Есть, - Кол-во мест наземного паркинга: 13, - Интернет-провайдеры: VMB-Сервис, Вымпелком, Комфортел, Морской Экспресс, Релком. Арендная ставка: 2 562 руб./кв. м в месяц. Финансовые условия: - В стоимость включено: OPEX, Коммунальные услуги, НДС, - Оплачивается отдельно: Интернет, Телефония, Уборка, - Налог: Включая НДС. Без комиссии и скрытых платежей для арендатора.Готовы оперативно организовать просмотр в удобное время, предоставить PDF-презентацию и план. Точное местоположение объекта можно найти по данным координатам: 59.934108,30.391817 ID = c_705178
                              186 м2
                              • Показать контакты
                              • Добавить в избранное
                              186 м2
                              476 532 /мес.
                              2 562 /м2
                                1/20
                                Офисное помещение
                                Итальянская, 2
                                 Показать на карте
                                Центральный район
                                Санкт-Петербург
                                Сдается в аренду помещение в бизнес-центре класса С в непосредственной близости от метро. Бюджетное решение для вашего бизнеса.Бизнес-центр расположен в Центральном районе и находится в 3 минутах от метро Невский проспект. Здание построено в 1870 году, оснащено всеми необходимыми инженерными системами, в том числе кодиционированием.Адрес: Санкт-Петербург, ул. Итальянская д. 2.Ближайшее метро: Невский проспект.Арендная ставка: 1 600 руб/м2 в мес.включая НДС, OPEXотдельно оплачиваются коммунальные услуги, электричество, уборкаХарактеристики помещения:Планировка: смешаннаяТелекоммуникации: интернет, wi-fi и телефонная линияВентиляция: естественнаяКондиционирование: местноеХарактеристики бизнес-центра:Общая площадь: 8 006 м2Этажность: 6Пассажирские лифты: 1 шт.Пропускная система: естьДоговор аренды заключается напрямую с собственником бизнес-центра.Какие-либо дополнительные проценты и комиссии отсутствуют.Звоните, мы покажем помещение в любое удобное для вас время.
                                135 м2
                                • Показать контакты
                                • Добавить в избранное
                                135 м2
                                216 000 /мес.
                                1 600 /м2
                                  1/6
                                  Офисное помещение
                                  Швецова, 41
                                   Показать на карте
                                  Кировский район
                                  Санкт-Петербург
                                  Аренда помещения площадью 49,5 кв. м под размещение колл-центра интернет-магазина. Адрес: ул. Швецова, д. 41, 2 этаж. Кабинетно-коридорная планировка на этажах. На предлагаемой площади получится разместить всю необходимую офисную мебель, а также оборудовать зону отдыха. Вашими соседями станут тихие офисные сотрудники. В помещении выполнен качественный ремонт. Присутствует как искусственное, так и естественное освещение. Отделка: окрашенные стены, линолеум на полу, потолок ''Армстронг''. Проведены необходимые инженерные коммуникации: освещение, отопление. Есть зоны погрузки-разгрузки на территории. Действует система контроля и управления доступом, благодаря которой можно вести учёт рабочего времени сотрудников. Ближайшая станция метро ''Нарвская'' находится в 15-и минутах ходьбы. В пешей доступности остановки наземного транспорта. Есть удобный съезд на улицу Швецова с проспекта Стачек, а также с улицы Маршала Говорова. На территории есть столовая и парковка.
                                  49 м2
                                  • Показать контакты
                                  • Добавить в избранное
                                  49 м2
                                  66 281 /мес.
                                  1 339 /м2
                                    1/5
                                    Офисное помещение
                                    Заневский проспект, 73
                                     Показать на карте
                                    Красногвардейский район
                                    Санкт-Петербург
                                    Сдаю в аренду помещение под офис продаж, площадь 92,2 кв. м. у метро Ладожская, на 2 этаже Ладожского вокзала. Стены помещения с трёх сторон изготовлены из ударопрочного стекла, четвёртая сторона - гипрок. Стеклянные стены можно драпировать, как изнутри (жалюзи), так и снаружи (оклейка плёнкой). Указанная ставка аренды на первый год и включает в себя НДС, 20%. Ждём Ваших предложений и пожеланий. Звоните!Вам не нужно будет платить дополнительные комиссии и проценты при заключении договора аренды. Звоните, отвечу на все вопросы. Показы по предварительной договорённости. В нашей компании работает команда аттестованных специалистов АРСПБ и ЛО с опытом работы не менее 3 лет на рынке коммерческой недвижимости.
                                    92 м2
                                    • Показать контакты
                                    • Добавить в избранное
                                    92 м2
                                    82 980 /мес.
                                    900 /м2
                                      1/12
                                      Офисное помещение
                                      7-й Предпортовый проезд, 76
                                       Показать на карте
                                      Василеостровский район
                                      Санкт-Петербург
                                      Аренда коммерческой недвижимости от собственника сети БЦ ''Сенатор''. Предлагаем аренду помещения в современном бизнес-центре ''Сенатор'' и возможность снять коммерческое помещение премиум-класса для вашего бизнеса. Идеальный вариант для тех, кто ищет надежную коммерческую недвижимость, аренда которой включает в себя полный комплекс услуг. В стоимость аренды входит:коммунальные услуги (кроме электроэнергии),уборка помещений общего пользования,круглосуточная охрана здания,техническое обслуживание здания. Оплачивается дополнительно:уборка офиса (180 р/кв.м. + расходные материалы в с/у),электроэнергия (150 р/кв.м.),теплоэнергия (35 руб. кв/м),интернет / телефония,вывоз мусора (30 р/кв.м.),парковка. ''Сенатор'' это прекрасный выбор для тех, кто планирует снять помещение в аренду с минимальными дополнительными хлопотами. Звоните, чтобы узнать о свободных площадях и забронировать просмотр!
                                      25 м2
                                      • Показать контакты
                                      • Добавить в избранное
                                      25 м2
                                      62 500 /мес.
                                      2 500 /м2
                                        1/7
                                        Офисное помещение
                                        Выборгское шоссе, 12
                                         Показать на карте
                                        Озерки, 5 мин
                                        Санкт-Петербург
                                        Код объекта: 7890 Аренда части современного здания у м. Озерки. Всего 150 метров пешком от метро! Санкт-Петербург, Выборгское шоссе, д. 12, лит. А Сдаются в аренду 1-й и 2-й этажи в современном коммерческом комплексе. Площадь:2 959 м Свободная планировка, шаг колонн 6х8 м. Высота потолков: 2,7 - 3,0 м. Панорамное остекление, современная отделка. Ключевые преимущества: Идеальное расположение:2 минуты от метро Озерки. Собственная инфраструктура:Охраняемая территория, паркинг на 45 авто. Все коммуникации:Электричество (261 кВт), своя газовая котельная. Гибкие условия:Арендные каникулы6 месяцев, рассрочка по обеспечению. Условия: Ставка:2 500 руб./м/мес. (с НДС) Коммунальные платежи:оплачиваются отдельно. Обеспечительный платеж:1 месяц. Подходит для: Медицинского центра Центра образования или спорта Офисов с ритейлом на 1-м этаже Ресторана или фуд-корта
                                        2959 м2
                                        • Показать контакты
                                        • Добавить в избранное
                                        2959 м2
                                        7 397 500 /мес.
                                        2 500 /м2
                                          1/5
                                          Офисное помещение
                                          Аккуратова, 13
                                           Показать на карте
                                          Приморский район
                                          Санкт-Петербург
                                          Сдается в аренду просторный офис 43.1 кв.м недалеко от метро. Состояние отделки — готово к въезду.Договор аренды заключаете с собственником помещения. Без надбавки к итоговой стоимости аренды.В арендную ставку включено: - НДС,- коммунальные услуги, не включая электроэнергию,- эксплуат.расходы,- уборка офиса,- уборка общих мест,- вывоз мусора,- охрана здания.В арендную ставку не входит: электроэнергия, интернет.• условия договора: 11 мес. предоплата за первый и последний месяц,• налогообложение: НДС,• вход в здание: для арендаторов по документу, для клиентов по документу,• интернет провайдеры: Оптик Телеком, Ростелеком, Интерзет.,• парковка: на территории БЦ,• здание работает: круглосуточно, кроме выходных,Показы с 10.00 до 18.00 по будням.Получите подробную информацию об офисе. Отправим ее на почту или по Whatsapp.Звоните. Мы оперативно организуем просмотр помещения в удобную для вас дату и ответим на все интересующие вопросы.Для вас наши услуги абсолютно бесплатны — их оплачивают бизнес-центры.Описание бизнес-центра:Рядом проходят такие транспортные магистрали, как проспект Энгельса, Парашютная улица, Коломяжский проспект. Аренда помещений БЦ ''ДЦ ГринПарк'' не только безопасна, но и комфортна для арендаторов и их клиентов.
                                          43 м2
                                          • Показать контакты
                                          • Добавить в избранное
                                          43 м2
                                          107 750 /мес.
                                          2 500 /м2
                                            1/14
                                            Офисное помещение
                                            Жуковского, 63
                                             Показать на карте
                                            Маяковская, 8 мин
                                            Санкт-Петербург
                                            Аренда коммерческой недвижимости от собственника сети БЦ ''Сенатор''. Предлагаем аренду помещения в современном бизнес-центре ''Сенатор'' и возможность снять коммерческое помещение премиум-класса для вашего бизнеса. Идеальный вариант для тех, кто ищет надежную коммерческую недвижимость, аренда которой включает в себя полный комплекс услуг. В стоимость аренды входит:коммунальные услуги (кроме электроэнергии),уборка помещений общего пользования,круглосуточная охрана здания,техническое обслуживание здания. Оплачивается дополнительно:уборка офиса (180 р/кв.м. + расходные материалы в с/у),электроэнергия (150 р/кв.м.),теплоэнергия (35 руб. кв/м),интернет / телефония,вывоз мусора (30 р/кв.м.),парковка. ''Сенатор'' это прекрасный выбор для тех, кто планирует снять помещение в аренду с минимальными дополнительными хлопотами. Звоните, чтобы узнать о свободных площадях и забронировать просмотр!
                                            58 м2
                                            • Показать контакты
                                            • Добавить в избранное
                                            58 м2
                                            194 040 /мес.
                                            3 300 /м2
                                              1/26
                                              Офисное помещение
                                              Бакунина проспект, 9
                                               Показать на карте
                                              Центральный район
                                              Санкт-Петербург
                                              Атмосферное пространство 208 м² в стиле лофт. Интерьер для творчества и работы.В историческом здании на улице Бакунина сдаётся в аренду уникальное помещение площадью 208,1 кв. м, в котором эстетика современного лофта создаёт идеальную среду для работы и творчества. Атмосфера и пространство:Это место, где атмосфера становится рабочим инструментом. Основу интерьера составляют аутентичная кирпичная кладка и высокие арочные своды, формирующие солидный, вдохновляющий объём. Впечатление начинается со стильной входной группы, задающей тон всему пространству. Внутри вас ждёт продуманное зонирование и художественные акценты на нейтральном фоне. Бережно сохранённые отреставрированные исторические двери добавляют характер и связь с духом Петербурга. Важным бонусом локации является парк, расположенный прямо напротив через дорогу — источник естественного света, видов и пространство для отдыха в перерыве . Помещение создано для бизнесов, где важна внутренняя среда, а не внешний трафик. Ключевые преимущества:Два независимых входаДва раздельных санузлаЭти особенности обеспечивают удобство и конфиденциальность для команды, работающей над проектами. Для кого создано это пространство:Идеальное решение для команд, для которых офис — это воплощение их эстетики и источник вдохновения: Творческие студии и агентства: архитектурные и дизайнерские бюро, команды по разработке игр, агентства цифрового маркетинга и веб-разработки. Компании в сфере производства контента: продакшн-студии, фотографы, для которых помещение может служить одновременно офисом и фоновой площадкой для съёмок. Бизнесы с особыми требованиями к имиджу: модные бренды, авторские шоу-румы, компании, где интерьер является частью философии бренда. Технические и финансовые условия: Формат арендной платы: Фиксированная часть 1 200 руб./кв. м/мес. + переменная часть, равная фактической стоимости коммунальных ресурсов по счетам организаций-поставщиков. Прозрачная схема без скрытых платежей. Особое условие: Рассматриваем аренду без обязательного обеспечительного платежа для надёжных партнёров.Помещение полностью готово. Чтобы прочувствовать его уникальную атмосферу, приглашаем на личный осмотр . Основные и высокочастотные запросы:аренда лофта, лофт в аренду СПб, снять лофт, помещение для студии, снять офис в центре Петербурга, готовое офисное помещение, помещение 200 м², помещение 200 кв м, творческое пространство, коммерческая аренда, аренда под офис. Запросы по планировке и зонированию (новые):с функциональным зонированием, 4 комнаты,открытая планировка, раздельные помещения, офис кабинетами, просторная общая зона, отдельные кабинеты, переговорная, ресепшен, зона приема, комната отдыха, кухня-гостиная, санузел раздельный. Уточняющие и специальные запросы:под фотостудию, для дизайн-бюро, для продакшена, под шоу-рум, для креативного агентства, архитектурная студия, на Бакунина, в историческом здании, с высокими потолками,с кирпичными стенами
                                              208 м2
                                              • Показать контакты
                                              • Добавить в избранное
                                              208 м2
                                              249 600 /мес.
                                              1 200 /м2
                                                1/14
                                                Офисное помещение
                                                Чайковского, 31
                                                 Показать на карте
                                                Центральный район
                                                Санкт-Петербург
                                                Аренда офиса в Центральном районе, в семи минутах ходьбы от станции метро Чернышевская.Офис расположен в бизнес центре класса В.Технические характеристики:Площадь 172,6 м25 этажАренда: 2300 руб.м2- 396 980 руб.Кабинетная планировкаКондиционированиеПриточно-вытяжная вентиляцияПропускная системаРежим работы 24/7Паркинг: 10 000 руб. м/мНДС включенКУ оплачиваются отдельноПрямая аренда от собственника. Без комиссии.Звоните!Арт. 106956647
                                                172 м2
                                                • Показать контакты
                                                • Добавить в избранное
                                                172 м2
                                                396 980 /мес.
                                                2 300 /м2
                                                  1/16
                                                  Офисное помещение
                                                  Оптиков, 4 корп. 3
                                                   Показать на карте
                                                  Приморский район
                                                  Санкт-Петербург
                                                  Без комиссии! Предлагаем в аренду офисы в БЦ класса В ''Лахта 2''. Произведен качественный ремонт. НДС и коммунальные платежи включены в стоимость аренды. Отдельно оплачиваются: электричество, уборка, интернет, парковка. На территории БЦ имеются парковка, кафе-ресторан, банкоматы. Высокий уровень безопасности: круглосуточная охрана, видеонаблюдение, электронный контроль доступа. Ст.метро ''Старая деревня'' - 10 минут пешком.Запись на просмотр по предварительной договоренности!
                                                  76 м2
                                                  • Показать контакты
                                                  • Добавить в избранное
                                                  76 м2
                                                  121 600 /мес.
                                                  1 600 /м2
                                                    • В начало
                                                    • 22
                                                    • 23
                                                    • 24
                                                    • 25
                                                    • 26
                                                    • Следующая
                                                    Распечатать
                                                    Аренда коммерческой недвижимости в Санкт-Петербурге
                                                    • по районам
                                                    • Автово
                                                    • Адмиралтейский район
                                                    • Академическое
                                                    • Александровская
                                                    • Аптекарский остров
                                                    • Балканский
                                                    • Большая Охта
                                                    • Василеостровский район
                                                    • Васильевский
                                                    • Введенский
                                                    • Владимирский
                                                    • Волковское
                                                    • Выборгский район
                                                    • Гавань
                                                    • Гагаринское
                                                    • Георгиевский
                                                    • Горелово
                                                    • Гражданка
                                                    • Дачное
                                                    • Дворцовый
                                                    • Екатерингофский
                                                    • Звёздное
                                                    • Зеленогорск
                                                    • Ивановский
                                                    • Измайловское
                                                    • Калининский район
                                                    • Кировский район
                                                    • Княжево
                                                    • Коломна
                                                    • Коломяги
                                                    • Колпино
                                                    • Колпинский район
                                                    • Комарово
                                                    • Комендантский аэродром
                                                    • Константиновское
                                                    • Красненькая речка
                                                    • Красногвардейский район
                                                    • Красное Село
                                                    • Красносельский район
                                                    • Кронверкское
                                                    • Кронштадтский район
                                                    • Купчино
                                                    • Курортный район
                                                    • Лахта-Ольгино
                                                    • Левашово
                                                    • Лиговка-Ямская
                                                    • Лисий Нос
                                                    • Литейный
                                                    • Ломоносов
                                                    • Малая Охта
                                                    • Металлострой
                                                    • Молодёжное
                                                    • Морские ворота
                                                    • Морской
                                                    • Московская застава
                                                    • Московский район
                                                    • Нарвский
                                                    • Народный
                                                    • Невская застава
                                                    • Невский район
                                                    • Новоизмайловское
                                                    • Обуховский
                                                    • Озеро Долгое
                                                    • Оккервиль
                                                    • Остров Декабристов
                                                    • Павловск
                                                    • Парголово
                                                    • Парнас
                                                    • Песочный
                                                    • Петергоф
                                                    • Петро-Славянка
                                                    • Петровский
                                                    • Петроградский район
                                                    • Петродворцовый район
                                                    • Пискарёвка
                                                    • Полюстрово
                                                    • Понтонный
                                                    • Пороховые
                                                    • Посадский
                                                    • Правобережный
                                                    • Приморский район
                                                    • Прометей
                                                    • Пулковский меридиан
                                                    • Пушкинский район
                                                    • Репино
                                                    • Ржевка
                                                    • Рыбацкое
                                                    • Сампсониевское
                                                    • Сапёрный
                                                    • Светлановское
                                                    • Северный
                                                    • Семёновский
                                                    • Сенной
                                                    • Серово
                                                    • Смольнинское
                                                    • Смолячково
                                                    • Солнечное
                                                    • Сосновая поляна
                                                    • Сосновское
                                                    • Стрельна
                                                    • Тярлево
                                                    • Ульянка
                                                    • Урицк
                                                    • Усть-Ижора
                                                    • Ушково
                                                    • Финляндский
                                                    • Фрунзенский район
                                                    • Центральный район
                                                    • Чкаловское
                                                    • Чёрная речка
                                                    • Шувалово-Озерки
                                                    • Шушары
                                                    • Юго-Запад
                                                    • Южно-Приморский
                                                    • Юнтолово
                                                    • № 15
                                                    • № 21
                                                    • № 54
                                                    • № 65
                                                    • № 72
                                                    • № 75
                                                    • № 78
                                                    • по метро
                                                    • Девяткино
                                                    • Гражданский проспект
                                                    • Академическая
                                                    • Политехническая
                                                    • Площадь Мужества
                                                    • Лесная
                                                    • Выборгская
                                                    • Площадь Ленина
                                                    • Чернышевская
                                                    • Площадь Восстания
                                                    • Владимирская
                                                    • Пушкинская
                                                    • Технологический институт
                                                    • Балтийская
                                                    • Нарвская
                                                    • Кировский завод
                                                    • Автово
                                                    • Ленинский проспект
                                                    • Проспект Ветеранов
                                                    • Парнас
                                                    • Проспект Просвещения
                                                    • Озерки
                                                    • Удельная
                                                    • Пионерская
                                                    • Чёрная речка
                                                    • Петроградская
                                                    • Горьковская
                                                    • Невский проспект
                                                    • Сенная площадь
                                                    • Фрунзенская
                                                    • Московские ворота
                                                    • Электросила
                                                    • Парк Победы
                                                    • Московская
                                                    • Звёздная
                                                    • Купчино
                                                    • Приморская
                                                    • Василеостровская
                                                    • Гостиный двор
                                                    • Маяковская
                                                    • Площадь Александра Невского
                                                    • Елизаровская
                                                    • Ломоносовская
                                                    • Пролетарская
                                                    • Обухово
                                                    • Рыбацкое
                                                    • Комендантский проспект
                                                    • Старая Деревня
                                                    • Крестовский остров
                                                    • Чкаловская
                                                    • Спортивная
                                                    • Садовая
                                                    • Достоевская
                                                    • Лиговский проспект
                                                    • Новочеркасская
                                                    • Ладожская
                                                    • Проспект Большевиков
                                                    • Улица Дыбенко
                                                    • Волковская
                                                    • Звенигородская
                                                    • Спасская
                                                    • Обводный канал
                                                    • Адмиралтейская
                                                    • Международная
                                                    • Бухарестская
                                                    • Беговая
                                                    • Проспект Славы
                                                    • Дунайская
                                                    • Шушары

                                                    Вместе с этим также ищут:

                                                    Аренда комнат без посредников в Санкт-Петербурге Аренда комнат в Санкт-Петербурге на длительный срок Аренда квартир без посредников в Санкт-Петербурге Аренда квартир в Санкт-Петербурге на длительный срок Снять квартиру посуточно в Санкт-Петербурге Снять комнату посуточно в Санкт-Петербурге Снять гараж в Санкт-Петербурге

                                                    🏠 Как снять коммерческую недвижимость в Санкт-Петербурге на N1?

                                                    • ✔ В поисках объявления об аренде или сдаче коммерческой недвижимости в Санкт-Петербурге?
                                                    • ✔ На N1 размещены 4,20 тыс коммерческой недвижимости
                                                    • ✔ Чтобы снять или сдать недвижимость, воспользуйтесь формой поиска, фильтрами или быстрыми ссылками.

                                                    💸 Сколько стоит коммерческая недвижимость в Санкт-Петербурге?

                                                    • 🟢 Средняя цена аренды коммерческой недвижимости - 857,97 тыс ₽
                                                    • 🟢 Минимальная стоимость за 1 м2: 1,65 тыс ₽

                                                    📚 Какая площадь коммерческой недвижимости?

                                                    • Наибольшая площадь: 26,90 тыс м²
                                                    • Минимальная площадь: 1 м²