Универсальное помещение
Заречная, 54 Показать на карте
Заречная, 54 Показать на карте
Выборгский район
Санкт-Петербург
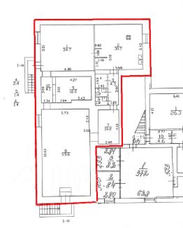
Предлагается в аренду от собственника нежилое помещение площадью 90,5 м2 в жилом доме на ул. Заречной, д. 54. Планировка смешанная, состояние помещения без отделки. Назначение свободное.Высота потолков - 3,3 м, 1-й этаж. Некоторые стены и перегородки не несущие. Электрическая мощность 17,4 кВт. У помещения отдельный вход, три окна, витражная дверь.Помещение отлично подойдет под любой вид деятельности - магазин любого направления деятельности, кафе, салон красоты, детские/взрослые студии, офис. В аренду под организацию ПВЗ OZON, Wildberries и Яндекс Маркет помещение не предлагается.ЖК ''Северная Долина'' располагается в Выборгском районе Санкт-Петербурга, в поселке Парголово. В непосредственной близости находятся крупный торговый центр ''МЕГА Парнас'', ТРК ''Гранд Каньон'', Шуваловский парк. Развитая инфраструктура по всем видам деятельности. Поблизости находятся съезды на КАД и Новоприозерское шоссе. Хорошо развит общественный транспорт. Ближайшая станция метро ''ПАРНАС'' находится в 20 минутах общественным транспортом от ЖК и 30 минут пешком.Отдельно оплачиваются коммунальные платежи. Арендная ставка включает НДС. Предоставляются арендные каникулы. Дом введен вэксплуатацию.Звоните, есть и другие предложения по площади и планировке. Лот 000006754
90 м2
- Показать контакты
- Добавить в избранное
90 м2
139 077 /мес.
1 530 /м2
