Универсальное помещение
Морская Набережная, 18/3 Показать на карте
Морская Набережная, 18/3 Показать на карте
Выборг
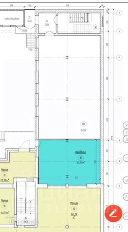
Предлагаем в аренду производственное помещение свободного назначения:- Площадь: 149. 9 кв. м- Арендная плата: 15 000 руб. /мес. (без комиссий)- Этаж - 1- 20кВтСдается в аренду помещение - 149. 9кв. м. Отлично подойдет склад. Возможны индивидуальные условия аренды, рассмотрим возможность перепланировки и дополнительного зонирования помещений, гибкий подход к каждому арендатору. Персональный консультант.************************************************* **********************************Викинг Недвижимость один из крупнейших собственников коммерческой недвижимости в Санкт-Петербурге. В наличии различные типы объектов: стрит-ритейл, офисы, склады, производственные помещения в Центральном, Петроградском, Выборгском, Московском и других районах города.Викинг Недвижимость комплексная поддержка вашего бизнеса:- льготное кредитование,- софинансирование проектов,- юридическое, информационное и налоговое сопровождение,- IT-услуги.Работаем с агентствами.Наш консультант ответит на все вопросы и поможет подобрать помещение, которое будет соответствовать вашим требованиям.
149 м2
- Показать контакты
- Добавить в избранное
149 м2
15 000 /мес.
100 /м2
