Офисное помещение
Московское шоссе, 179 корп. 2 ст1 Показать на карте
Московское шоссе, 179 корп. 2 ст1 Показать на карте
Пушкинский район
Санкт-Петербург
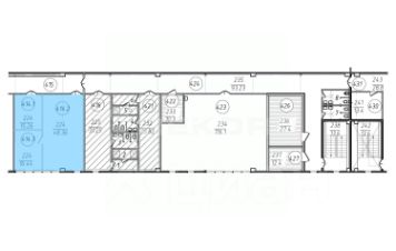
Сдаются в аренду помещения в бизнес-центре класса В. Отличное соотношение цена\качество.Бизнес-центр расположен в Пушкинском районе и находится в 59 минутах на транспорте от метро Шушары. Здание построено в 2015 году, оснащено всеми необходимыми инженерными системами.Адрес: Санкт-Петербург, Московское ш. д. 179, к. 2.Ближайшее метро: Шушары.Арендная ставка: 950 руб/м2 в мес.включая НДС, коммунальные услуги, электричество, OPEXотдельно оплачиваются уборкаХарактеристики помещения:Планировка: кабинетнаяТелекоммуникации: интернет, wi-fi и телефонная линияХарактеристики бизнес-центра:Этажность: 4Пропускная система: естьДоговор аренды заключается напрямую с собственником бизнес-центра.Какие-либо дополнительные проценты и комиссии отсутствуют.Звоните, мы покажем помещение в любое удобное для вас время.
343 м2
- Показать контакты
- Добавить в избранное
343 м2
325 850 /мес.
950 /м2
