Дом, Озерная, 31 Показать на карте
Силино
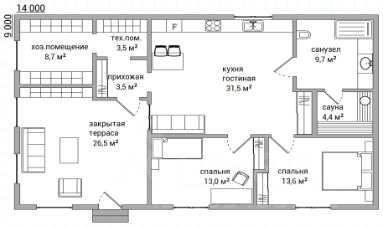
id:31449. Продается уникальный кирпичный дом на берегу Правдинского озераПредставляем вашему вниманию дом вашей мечты в п. Силино на 2 линии Правдинского озера.Дом расположен вдали от городского шума, что создает комфортную и спокойную атмосферу для жизни или отдыха, особенно для тех, кто ценит приватность. Близость к воде позволит заниматься водными видами спорта, рыбалкой, плаванием и прогулками по берегу, что сделает ваш отдых и досуг разнообразным и активным.- ТЕПЛЫЕ ВОДЯНЫЕ ПОЛЫ ОТ ГАЗОВОГО КОТЛА- 3 МИНУТЫ ДО ПЛЯЖА- ГАЗОВОЕ ОТОПЛЕНИЕ- 4 СПАЛЬНИ- 2 ГАРДЕРОБНЫЕ- САУНА- ИЖС- ЛАНДШАФТНЫЙ ДИЗАЙН- СУПЕРМАРКЕТ (ОЗОН\ВБ) В 7 МИН.- ПАРКОВКА НА 4 АВТОМОБИЛЯ - Просторная планировка: 4 изолированные комнаты, одна из которых на 1 этаже. 2 гардеробные.- Выполнен дизайнерский ремонт высокого класса. Вся мебель и техника остаются в подарок новому владельцу!- Финский камин Tulikivi согреет ваши сердца в любую погоду.- Кухня-гостиная с дополнительной кладовой - комнатой для продуктов.- Сердце дома - современная котельная с надежным газовым котлом BOSCH и бойлером косвенного нагрева ATLANTIC на 200 литров.- Настоящая роскошь - приватная сауна с аутентичной финской печью Harvia.- Всего в 15 минутах езды на автомобиле находится горнолыжный курорт Коробицыно - отличная возможность сочетать активный зимний отдых с комфортом СПА-зон, саунами и массажами для релакса и оздоровления.Это предложение для тех, кто ценит безопасность, стиль и готовые комфортные решения. Идеальный вариант как для постоянного проживания, так и для отдыха на выходных в экологичном и престижном районе.Свяжитесь с нами, чтобы назначить просмотр и ощутить атмосферу вашего будущего дома!Следите за нами в ТГ: terrasazn
240 м2
2 этажа
- Показать контакты
- Добавить в избранное
240 м2
2 этажа
35 555 000
148 146 /м2
