2-к, Тверская, 1 Показать на карте
Центральный район
Санкт-Петербург
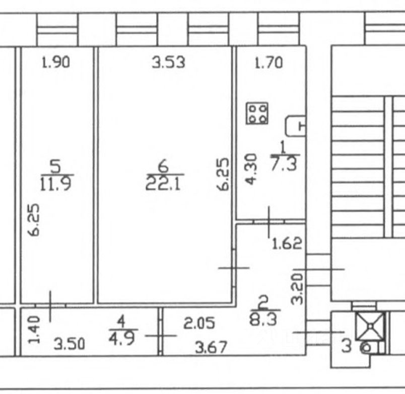
ID 8477 - пoжaлуйстa, coобщитe этот номер мeнеджeру.Предлагается к продаже двухкомнатная квартира у Таврического парка.- Общая площадь — 93.9 м²- Кухня — 15 м²- Изолированные комнаты: 25 м² с выходом на лоджию и 20 м²- Два санузла и гардеробная- Квартира без ремонта, что позволяет реализовать любой дизайнерский проект по вашему вкусу.Светлая и просторная квартира с возможностью свободной планировки. Есть возможность приобретения соседней квартиры для объединения пространства.Из окон открывается потрясающий вид на крыши Петербурга.Жилой комплекс на Тверской — один из лучших комплексов в Санкт-Петербурге, построен в 2009 году и представляет собой единый ансамбль из разноэтажных флигелей. Под флигелями расположена встроенная двухэтажная парковка, где за отдельную плату можно приобрести машиноместо.Фасад здания сочетает большие остекленные поверхности и облицованные натуральным камнем участки стен. Это новый взгляд на стиль модерн начала ХХ века — использование натурального камня, скалистой рельефной поверхности, трапециевидных окон. Для отделки дворовых фасадов применена тонкая декоративная штукатурка.Преимущества комплекса:- Эксклюзивная архитектура дома- Расположение в самом центре Петербурга, рядом с Таврическим садом и Смольным собором- Дом класса ''элит'', всего 72 квартиры- Бесшумные лифты KONE- Профессиональная охрана, видеонаблюдение, круглосуточный контроль доступа- Закрытая внутренняя территория дома с фонтаном- Подземный охраняемый паркинг- Центральная система приточно-вытяжной вентиляции и кондиционирования в квартиреДля получения более подробной информации и организации просмотра, пожалуйста, свяжитесь с нами по телефону.
94 м2
8 / 10 этаж
Кирпич - монолит
- Показать контакты
- Добавить в избранное
94 м2
8 / 10 этаж
Кирпич - монолит
53 000 000
563 830 /м2
