5-к, Захарьевская, 41 Показать на карте
Центральный район
Санкт-Петербург
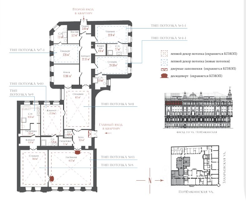
К продаже предлагается коллекционная квартира площадью 307 кв. м, на 5 этаже, с четырьмя спальнями, кабинетом и гостиной с видом на Захарьевскую улицу. Внутренняя отделка выполнена в изысканном стиле с бережным сохранением и реставрацией исторических деталей: пышный лепной декор, скульптура. Функционал квартиры включает в себя: четыре спальни, кабинет, кухню, столовую и просторную гостиную, из четырех окон которой открывается вид на город. Высота потолков 3,7 м создаёт впечатление обширного пространства, наполненного светом и воздухом. Продолжая традиции дореволюционных аристократических квартир, предусмотрены два входа и запроектированы отдельные хозяйственные помещения.''Три Грации'' - это уникальный клубный дом класса De Luxe, рассчитанный всего на 23 квартиры. Историческое здание-памятник полностью отреставрировано, восстановлены оригинальные планировки и декоративные элементы 1907 года, внутри же вы найдёте современнейшее оборудование и новейшие технологические решения. На первом этаже расположена вся необходимая для комфортного проживания инфраструктура: от комфортабельного элегантного лобби, переговорной и клубной гостиной до спортивного клуба с салоном красоты и SPA зоной. Дом оборудован автоматизированным паркингом на 21 машиноместо.Дом расположен в историческом центре Петербурга, напротив Таврического сада. В двух минутах ходьбы находится ''Ленинград Центр'' одно из самых модных культурных и шоу-пространств пространств Северной столицы. Каждая улица и здание этого района пропитаны историей. В пешей доступности оранжереи, набережная Невы, сад Салтыкова-Щедрина, сад Смольного собора, Музей воды, музей Суворова, Преображенский собор.
307 м2
5 / 5 этаж
Кирпич
- Показать контакты
- Добавить в избранное
307 м2
5 / 5 этаж
Кирпич
435 108 006
1 416 275 /м2
