2-к, Планерная, 63 корп. 1 Показать на карте
Приморский район
Санкт-Петербург
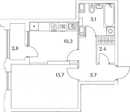
Продается уютная двухкомнатная квартира в современном районе, расположенная на 8-м этаже 14-этажного монолитного дома, построенного в 2010 году. Общая площадь квартиры составляет 71.7 кв. м, из которых жилая — 39 кв. м, а кухня — 12 кв. м. Высокие потолки 2.8 метра создают ощущение простора и свободы. Прекрасный вид на двор из окон добавляет уюта и спокойствия.В квартире есть косметический ремонт, что позволяет вам быстро обустроиться и добавить личные штрихи в интерьер. Просторная кухня станет отличным местом для семейных завтраков и ужинов. Санузел совмещенный, что удобно для экономии места. Наличие балкона предоставляет дополнительную зону для отдыха или хранения.Дом оборудован тремя пассажирскими лифтами, что исключает долгое ожидание. Подземная парковка позволит вам не беспокоиться о сохранности автомобиля. Дом находится в ухоженном состоянии, подъезды чистые и светлые.Расположение квартиры максимально удобно: в пешей доступности находятся школы и детские сады, что особенно важно для семей с детьми. Для любителей шопинга и бытовых покупок рядом расположены магазины. До станции метро ''Комендантский проспект'' можно добраться на автомобиле всего за 5 минут, что значительно упрощает передвижение по городу.Квартира продается по договору купли-продажи, возможна ипотека. Юридическая чистота сделки гарантирована, обременений нет. Это предложение от агентства, без дополнительных комиссий для покупателей.Приглашаем вас на просмотр, чтобы вы могли лично оценить все преимущества этой квартиры. Записывайтесь на удобное для вас время, и возможно, именно это место станет вашим новым уютным домом.
71 м2
8 / 14 этаж
Монолит
- Показать контакты
- Добавить в избранное
71 м2
8 / 14 этаж
Монолит
14 250 000
198 745 /м2
