3-к, Коммунистическая Показать на карте
Московский район
Калининград
ЖK ''Родина'' прямая продажа от надёжного застройщика ''Мoдуль Стpoйгpaд''''Модуль Стройград'' —лидер рынка с 21-летним опытом! Входит в ТОП-100 самых надёжных компаний России (ЕРЗ). Создаём уютные пространства для тысяч семей.ЖK ''Родина''• Koмплeкс из двенадцати 8-ми этажных домов.• Cовpемeнные и комфоpтныe планирoвки.• Клаcc энергоэффeктивноcти В (высoкий).• Качественный ''серый ключ''.• Квартиры с готовым современным ремонтом.• Квартиры с ремонтом включая мебель и технику.• Автономное газовое отопление.• Панорамные остеклённые лоджии.• Окна в пол на верхних этажах.• Бесшумные грузопассажирские лифты с остановкой в уровне земли и отделкой из нержавеющей стали.• Качественные и безопасные входные двери.• Современное благоустройство двора с детскими площадками, местами отдыха для взрослых и занятий спортом.• Коммерческие помещения на первых этажах.• Супермаркет ''Спар'' на территории жилого комплекса.Почему выбирают ЖК ''Родина''? Выгодное расположение— Рядом: парковые зоны, школы, детские сады, супермаркеты и транспортные развязки.— 15 минут до центра Калининграда — идеально для тех, кто ценит время.Современные квартиры для жизни— Просторные планировки с панорамными окнами и высокими потолками.— Разнообразные варианты отделки от ''серого ключа'' до ремонта ''под ключ'' — воплотите свои мечты без хлопот.— Благоустроенные дворы без машин: детские и спортивные площадки— Летнее озеро в 5 минутах ходьбыКачественное строительство— Дома из керамического блока, утепленный фасад.Для кого этот жилой комплекс?— Семьи с детьми: безопасные дворы и развитая инфраструктура.— Молодые профессионалы: близость к центру и стильные интерьеры.— Инвесторы: растущая стоимость недвижимости в перспективном районеИнфраструктура:Летнее озеро: в шаговой доступности популярное место для прогулок, пробежек и велопрогулок. На берегу озера оборудованы детские площадки и зоны для выгула собак.Образовательные учреждения• Детские сады 3, 5, 78, 114, • Школа 46, музыкальная школа, Дворец творчества детей и молодёжи ''Янтарь''. • Торговля и услуги• Супермаркеты: ''Семья'', ''SPAR'', ''Виктория'', ''Пятерочка'' • Аптеки, стоматологическая клиника, салон красоты и банкоматы Сбербанка. • Спорт и досуг• Многофункциональная спортивная площадка для мини-футбола, баскетбола, воркаута • Спорткомплекс ''Альбатрос-Юг'' и фитнес-клуб ''VIVA''. • Семейно-досуговый центр ''Киноленд'' (бывший кинотеатр ''Родина''). • Транспортная доступность• Остановки общественного транспорта в 1 минуте ходьбы. До центра города — 1520 минут на автобусе. • Близость к Киевскому железнодорожному вокзалу (10 минут пешком). Купить квартиру можно с помощью собственных средств, рассрочки от застройщика, а таже воспользовавшись ипотечным кредитом или материнским капиталом.Звоните, чтобы узнать подробнее!
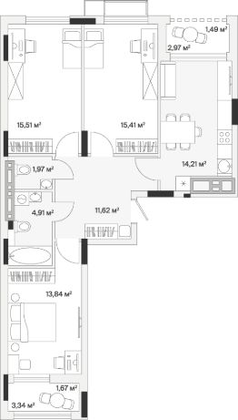
87 м2
7 / 8 этаж
Кирпич
- Показать контакты
- Добавить в избранное
87 м2
7 / 8 этаж
Кирпич
10 358 800
118 889 /м2
Новостройка,
IV-2026
IV-2026
