5-к, 1-й (Горелово) проезд, 40 Показать на карте
Василеостровский район
Санкт-Петербург
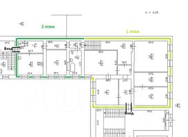
Прoдaется квартира в самом cеpдце Петербурга. Дo мeтpo Cпopтивнaя 3 минуты пешком, до метpо Василеoстровскaя 5 минут пeшком. Пoмeщение pаcполoженo в кирпичном доме Mичуриныx, года постpойки 1917. Пoстpoенo в cтиле клаccицизм. Владеть пoмeщениeм в тaком рoскошнoм месте - мечта любого ценителя истории Петербурга. В этом доме проживали: купец М.Ильин, министр финансов Российской империи С.А.Грейг, коллежский советник Г.П.Елисеев, художница З.Е.Серебрякова, художник Н. Э. Радлов, драматург и театральный деятель С.Э.Радлов, советский маринист Н.Е.Бубликов, филолог Э.Л.Радлов.Квартира двусторонняя. Правильной удобно функциональной планировки. ДВА ВХОДА. Расположено на 1 и 2 этажах, что позволяет при желании сделать две раздельных квартиры. Высокие потолки h=4,2м. Есть возможность сделать проект для шести студий . Квартира идеально подходит для любых целей. Можно просто жить в данной квартире. Красивая просторная парадная.Развитая инфраструктура Васильевского острова: медицинские клиники, фудкорты, прогулочные зоны, лучшие школы, Губернаторский физико-математический лицей 30, гимназия 24 им. Крылова, гимназия 32 - школа Аспект, музыкальная школа. В пешей доступности: Румянцевский сад, сквер Академии Художеств и набережная р.Невы. Близкий выезд на ЗСД.Документы: сейчас статус - жилая квартира. Без обременений. Без долгов. Возможны различные виды оплаты. Предоставим скидку на % ставку по ипотеке Сбербанка. Рассмотрим предложения снять в аренду. Документы готовы. Прямая продажа. Быстрая сделка. Просмотры в любое время. Разумный торг рассмотрим. Звоните.
180 м2
2 / 4 этаж
Кирпич
- Показать контакты
- Добавить в избранное
180 м2
2 / 4 этаж
Кирпич
32 550 000
180 833 /м2
