2-к, Подъездной переулок, 12 Показать на карте
Пушкинская, 5 мин
Санкт-Петербург
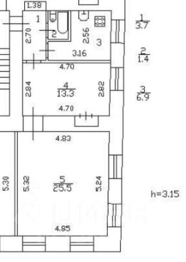
Продаётся уютная квартира площадью 61.3 квадратных метра в новом кирпичном доме, расположенном в престижном центре Санкт-Петербурга, по адресу: Подъездной переулок, 12 лит А. Здание, построенное в 2023 году, включает в себя всего восемь этажей, придавая месту особую камерность и комфорт.Продаётся светлая евро-2-комнатная квартира 61,3 м² в новом кирпичном доме в центре Петербурга! Адрес: Подъездной переулок, 12 лит. А ЖК бизнес-класса Наследние на Марата.Дом 2023 года постройки, всего 8 этажей — спокойная, камерная атмосфера и максимум приватности. О квартире:— 8 этаж — никто не топает сверху, только тишина и свет.— Панорамные окна с французскими балконами наполняют квартиру воздухом и дневным светом, создавая ощущение простора.— Удобная планировка:• Кухня-гостиная — 21,4 м²• Комнаты — 11,8 м² и 15,6 м²— Предчистовая отделка: выполнена стяжка пола, выровнены стены, заведена электрика — остаётся только выбрать финишные материалы и оформить квартиру под свой вкус. Преимущества дома:— Подземный паркинг.— Закрытая территория, видеонаблюдение и консьерж — высокий уровень безопасности.— Современные детская и спортивная площадки во дворе. Инфраструктура:Район идеально подходит для жизни: рядом школы, детские сады, фитнес-центры, магазины и зелёные зоны для прогулок. Центр города — всё под рукой, но без городского шума. Главное преимущество:Квартира с продуманной планировкой, большим количеством света и возможностью создать интерьер под себя. Новый дом, готовая база под чистовую — заезжай и начинай жизнь с чистого листа! Прямая продажа. Документы готовы. Без обременений.
61 м2
8 / 8 этаж
Кирпич - монолит
- Показать контакты
- Добавить в избранное
61 м2
8 / 8 этаж
Кирпич - монолит
17 900 000
292 007 /м2
