3-к, Александровская, 84 Показать на карте
Всеволожск
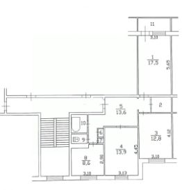
Вашему вниманию предлагается просторная квартира в самом центре Всеволожска.О КВАРТИРЕ:Общая площадь квартиры по документам 73,6 м2, Площадь кухни составляет 8,6 м2, площадь малой комнаты 12,8 м2, средней 13,9 м2, большой 17,5 м2. Просторный коридор площадью 13,6 кв.м. создают комфортное пространство для жизни и отдыха. Все комнаты изолированы. Квартира расположена на 3-м этаже, уютная, теплая и светлая, окна на две стороны.Квартира готова к проживанию, новому владельцу остается кухонный гарнитур с варочной панелью и кровать в спальне. При необходимости можем оставить шкаф со стеклянными дверцами и комплект мягкой мебели (диван + кресло).О СДЕЛКЕ:• Полная стоимость в договоре.• 2 взрослых собственника.• Документы к сделке готовы.• Обременений нет. Материнский капитал не использовался.О ДОМЕ:Дом 1994 года постройки. Дом находится в хорошем состоянии, чистая, отремонтированная, без запахов парадная. В доме есть пассажирский лифт , а также предусмотрен мусоропровод, что добавляет удобства. Просторная площадка на этаже. Всего 6 квартир на площадке.Детская площадка во дворе. Парковка во дворе.ИНФРАСТРУКТУРА:Прекрасно развита инфраструктура района, во дворе дома находятся школа, детские сады в пешей доступности (5-10 минут). Клиники и магазины в шаговой доступности. Отличное транспортное сообщение позволяет быстро добраться до центра города и других районов. До метро Ладожская 30 минут на транспорте. Можно доехать до города и на электричке.Идеальное место для семейной жизни и комфортного отдыха.Звоните в любое время, договоримся о просмотре.Поможем с одобрением ипотеки. 1082402
73 м2
3 / 9 этаж
Панель
- Показать контакты
- Добавить в избранное
73 м2
3 / 9 этаж
Панель
8 800 000
119 565 /м2
