2-к, Ипподромный переулок, 1 корп. 1 Показать на карте
Пионерская, 9 мин
Санкт-Петербург
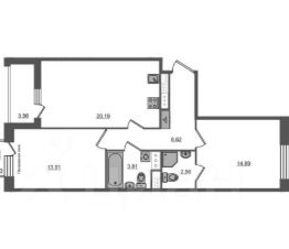
Арт. 91574529. Продается уютная 2-комнатная квартира в Приморском районе в шаговой доступности до метро Пионерская.Улучшенная планировка общей площадью 70 кв. м., на 10 м этаже 23 этажного кирпичного дома в отличном состоянии с ремонтом и мебелью. Все что необходимо для жизни.Светлая просторная, все продумано за Вас . Никто не жил. Раздельный санузел , просторная гардеробная, 2 лоджии. Для Вас оставляют все. В подарок (кухня). Квартира теплая, уютная для жизни , расположена на солнечной стороне с видом на парк.В доме работает консьерж, закрытая территория, все магазины на первом этаже, в том числе продуктовый, рядом с домом есть автостоянка, детский сад и школа, расширенная сеть банков, вмегда под рукой нотариус . Для отдыха - Новый торговый центр '' Голливуд''
70 м2
10 / 23 этаж
Кирпич - монолит
- Показать контакты
- Добавить в избранное
70 м2
10 / 23 этаж
Кирпич - монолит
25 000 000
357 143 /м2
