1-к, Московское шоссе, 323 Показать на карте
Пушкинский район
Санкт-Петербург
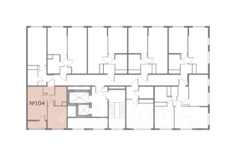
Цена со скидкой до 30% в прямой продаже от застройщика — только в этом месяце. Беспроцентная рассрочка. 1-к квартира в ЖК Up-квартал ''Новый Московский'' на 4-м этаже. Общая площадь 34,18. Без отделки.ГК ФСК представляет премьеру в концепции UP-кварталов: жилой комплекс ''Новый Московский'' в Пушкинском районе. Этот комплекс объединит в себе успешный опыт строительства комплексных современных проектов класса комфорт+ и лучшие мировые практики строительства и урбанистики. Стандарт UP-кварталов создавать не просто привычные жилые комплексы, а особенные проекты, жизнь в которых комфортна в каждой детали. В числе элементов этого стандарта, примененных в ''Новом Московском'':- Современная архитектурная концепция от известного петербургского бюро ''А. Лен'', - Разнообразие планировок с преобладанием евро-формата, - Увеличенное количество окон в квартирах, - Возможность выбирать квартиры с авторской отделкой, - Продуманное и эстетичное благоустройство территории с преобладанием натуральных материалов и многое другое.
34 м2
4 / 10 этаж
Кирпич - монолит
- Показать контакты
- Добавить в избранное
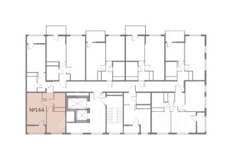
34 м2
4 / 10 этаж
Кирпич - монолит
5 659 695
165 585 /м2
Новостройка,
IV-2025
IV-2025
