3-к, Пролетарская, 15 Показать на карте
Волхов
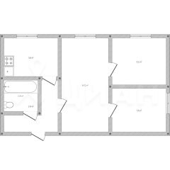
АУКЦИОН. Объект реализуется через электронный аукцион с 2025-03-13 по 2026-03-09 ПАО Сбербанк реализует имущество: Объект (ID I19950318) : 3-комнатная квартира общей площадью 58.30 кв.м. Дом панельный. Адрес: Россия, Ленинградская область, Волховский р-н, г. Волхов, Пролетарская ул, д. 15, кв. 40. Текущая стоимость объекта: 2,226,846.00Текущий статус продажи: получено несколько заявлений на покупку, ведется сделка с интересантом, предложившим максимальную стоимость. Если интересант откажется от заключения сделки, Банк определит нового покупателя, предложившего максимальную цену на дату отказа. Максимальная предложенная цена за лот аукциона: 2,226,846.00 руб. (на 04.05.2025) . Объект расположен в районе с очень развитой инфраструктурой, что обеспечит жителям современный уровень комфорта. Внутренняя отделка: Требует косметического ремонтаЛюбая форма оплаты. Бесплатное юридическое сопровождение сделки. ОКРУЖАЮЩАЯ ИНФРАСТРУКТУРА: Дет. сад, Школа, Спорт. клуб, Кафе, Прод. магазин, Остановка общ. транспорта. ДЕЙСТВУЮЩИЕ ОБРЕМЕНЕНИЯ ПО ОБЪЕКТУ: наличие проживающих граждан. СПОСОБЫ ОФОРМЛЕНИЯ СДЕЛКИ: возможна ипотека (минимальная сумма кредита 300 000 руб. ) / возможно использование материнского капиталаИНДИВИДУАЛЬНЫЕ И ТЕХНИЧЕСКИЕ ХАРАКТЕРИСТИКИ ОБЪЕКТА: Кадастровый номер: 47: 12: 0101009: 114Транспортная доступность: В п/д от остановки наземного транспортаОбщая площадь (кв. м. ) : 58.30Жилая площадь (кв. м. ) : 30.00Площадь кухни (кв. м. ) : 6.00Количество комнат: 3Высота потолков (м. ) : 2.50Этаж: 5Этажность: 5Количество санузлов: 1Санузел: СовместныйПринадлежность к рынку: ВторичкаВид из окна: Во дворКоммуникации: Водоснабжение, Канализация, Энергоснабжение, ОтоплениеХарактеристики здания, в котором располагается объект: Год постройки: 1994Парковка: СтихийнаяКоличество машиномест: 20Дополнительная информация по телефону, указанному в объявлении, в рабочие дни с 04-00 до 18-00 (МСК) . Задать вопрос в ЧАТ можно по ссылке ниже. Ответ в ЧАТ предоставляется в рабочие дни с 04-00 до 18-00 (МСК) . Настоящее объявление размещено в рамках реализации ПАО Сбербанк имущества, приобретенного в целях обеспечения деятельности ПАО Сбербанк, имущества, на которое обращено взыскание как на предмет залога, а также полученного по договору в качестве отступного. ПАО Сбербанк. Генеральная лицензия Банка России на осуществление банковских операций 1481 от 11.08.2015График работы отдела: 01.05.25 - 04.05.25 - выходной05.05.25 - 07.05.25 - в стандартном режиме08.05.25 - 11.05.25 - выходнойС 12.05.25 - в стандартном режиме
58 м2
5 / 5 этаж
Панель
- Показать контакты
- Добавить в избранное
58 м2
5 / 5 этаж
Панель
2 226 846
38 196 /м2
