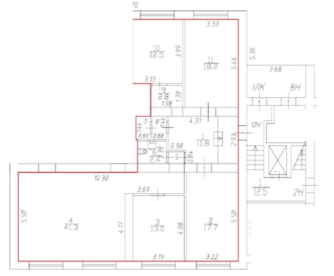
Адрес: Санкт-Петербург, Пискарёвский проспект, дом 10, корпус 2, литера А, помещение 12Н (цокольный этаж, вход со двора). Общая площадь: 123 кв.м. Назначение: офисное. Кадастровый номер: 78:10:0005162:5949. Право: собственность.
Характеристики:
Просторное встроенное помещение в кирпичном многоквартирном доме. Состояние удовлетворительное, готова под косметический ремонт. Высота потолков ~2,5-3,0 м. 6 окон во двор, хорошее естественное освещение. 2 общих входа со двора. Планировка кабинетного типа. Подведены все коммуникации: электричество, отопление, водоснабжение, канализация.
Объект:
Собственник юридическое лицо! Первый собственник!
Адрес: Санкт-Петербург, Пискарёвский проспект, дом 10, корпус 2, литера А, помещение 12Н (цокольный этаж, вход со двора). Общая площадь: 123 кв.м. Назначение: офисное. Кадастровый номер: 78:10:0005162:5949. Право: собственность.
Характеристики:
Просторное встроенное помещение в кирпичном многоквартирном доме. Состояние удовлетворительное, готова под косметический ремонт. Высота потолков ~2,5-3,0 м. 6 окон во двор, хорошее естественное освещение. 2 общих входа со двора. Планировка кабинетного типа. Подведены все коммуникации: электричество, отопление, водоснабжение, канализация.
Локация и инфраструктура:
Квартал между Пискаревским, Полюстровским, Металлистов и ул. Замшина. Развитая инфраструктура: поликлиника, диспансер, школы, детские сады, библиотека, скверы, продуктовые магазины. Удобный подъезд и свободный доступ во двор. Парковка во дворе. Общественный транспорт: автобусы и трамваи в 0,4 км. До станции метро Выборгская — 3,7 км.
Документы и особенности:
Отсутствуют зарегистрированные обременения и ограничения (выписка ЕГРН от 27.01.2025). Не является объектом культурного наследия. Не является защитным сооружением ГО. По условиям приватизации предусмотрен доступ эксплуатирующих организаций к инженерному оборудованию для ремонта.
Цена: 9 900 000 ? с НДС
Идеально под офис, студию, представительство, мастерскую или коммерческий проект. Все документы готовы. Показ в удобное для вас время.