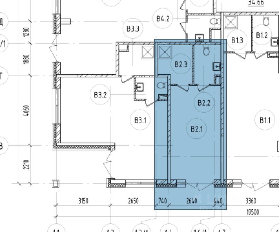
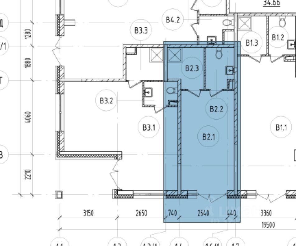
Продаётся коммерческое помещение 23,7 метра квадратных по переуступке в ЖК Универ Сити корпус 6, Колпинское шоссе 123 стр1
О помещении :
Вентиляция- отдельная от вентиляции квартир.
Отопление-отдельное от жилой части. предусмотрен индивидуальный учёт тепловой энергии.
Холодное водоснабжение - без внутренней разводи, без установки оборудования, с установкой счетчика.
Электрический щит в помещении, без разводки.
Высота не менее 3.6 метров(от стяжки до потолка)
Без чистовой отделки
Витринные окна
Покупка и продажа помещения физическим лицом. Переуступка.







