logo
N1.RU — новая улучшенная версия Е1.Недвижимость
Чтобы вернуться на старый сайт Е1.Недвижимость, перейдите по ссылке в нижней части сайта N1.RU
  • Продажа
  • Аренда
  • Новостройки
  • Журнал
  • Компании
  • Шаблоны документов
  • Налоговый вычет
  • Еще
  • Личный кабинет
    • Регистрация на Циан
    • Санкт-Петербург
  • Добавить объявление
Тип недвижимости
Санкт-Петербург
Начните вводить или выберите объект в выпадающем списке
  • Метро
  • Район и микрорайон
Тип объекта
Цена
  1. Недвижимость в Санкт-Петербурге
  2. Продажа
  3. Дома, коттеджи
  4. 72 объявления

Продажа домов, коттеджей в Санкт-Петербурге

  • Без посредников8
За все время
Сортировка по умолчанию
СпискомСписком
ТаблицейТаблицей
На картеНа карте
Открыть поиск по карте

По вашему запросу объявлений не найдено

1/30
Дом, Звездная Показать на карте
Монделево
Двухэтажный каркасный дом с панорамными окнами и верандой.Степень готовности 90%. Электричество 15 Квт. Электричество проведено в дом и полностью разведено. Строительство продолжается, по мере готовности стоимость объекта будет расти.Опции предусмотренные проектом:- электрическое отопление(теплые полы) - реализовано,- автономная канализация - реализовано,- вода(скважина) - реализовано,- предчистовая отделка - в процессе реализации реализовано. На участке проведены земляные работы, устранены неровности. - гостинная-столовая,- 2 спальни на первом этаже, 1 спальня на втором этаже,- 2 санузла,- котельная,
136 м2
2 этажа
  • Показать контакты
  • Добавить в избранное
136 м2
2 этажа
8 900 000 
65 441 /м2
1/50
Коттедж, Карьерная, 14 Показать на карте
Монделево
Продажа в связи с переездом. Уникальное предложение для загородной жизни в 10 минутах от Павловска в деревне Монделево Гатчинского района - жилой деревянный зимний дом 79,9 кв. м (2015 г.п.) с пристройкой 15м2. на участке 15 соток (категория земель: земли населённых пунктов, вид разрешенного использования: личное подсобное хозяйство). Прописка постоянная. Стены дома - профилированный брус 150*150 мм., пристройка летняя - кухня каркас (утеплённая и обшитая). Крыша - черепица (утепление произведено). Фундамент - свайно-винтовой с реверсом. Электричество 15 кВт (заземление и выравнивание потенциалов). Отопление - печь. В доме проведен интернет - оптика, роутер. Скважина 14 м. (греющий кабель подключен), водоснабжение заведено в дом. Септик Топаз. Окна - двухкаменое остекление.На первом этаже большая кухня - гостиная 17 м2, санузел - бойлерная и ванная, туалет, комната 15,6 м2, на втором этаже (мансарда) большая комната 35м2 (можно зонировать на две комнаты).Участок сухой (сделан дренаж), правильной формы, есть плодово-ягодные деревья и кустарники (сливы, яблони, вишня, ежевика, малина, крыжовник, смородина, клубника, земляника, газон). Земля плодородная, легкая. Обрабатывается весь участок. В 300 м живописный водоём! По периметру установлен забор. Высокий пандус на две машины (засыпан гранитной крошкой), ворота раздвижные.На участке новая баня (бревно), летняя кухня, беседка, парники, две хозяйственные постройки. Можно разводить курочек, кроликов, т.к. вид разрешенного использования ЛПХ. Дороги зимой чистят, никаких взносов. В 600 м город Коммунар, 30 км до площади Победы (Санкт-Петербург). Развитая инфраструктура: магазины, аптеки, школа, детские сады, фитнес клуб, кафе. В 15 мин железнодорожная станция Антропшино, добраться можно до м. Купчино или до Витебского вокзала. Заключен договор на газафикацию до дома, труба выведена к участку. Прямая продажа, вся сумма в договоре, просмотры по договоренности. Строили для себя, продажа в связи с переездом в другой регион. Звоните, расскажем покажем.
79 м2
2 этажа
Дерево
  • Показать контакты
  • Добавить в избранное
79 м2
2 этажа
Дерево
12 500 000 
156 446 /м2
1/18
Дом, Дачный-улица массив, 5 Показать на карте
Монделево
Зимний дом 100.5 м² в коттеджном поселке ''Русская Усадьба'' | 2025 год постройки | 25 км от Санкт-ПетербургаНовый дом с газом на участке, водяным теплым полом и предчистовой отделкой в охраняемом поселке у города Коммунар. Идеальное соотношение цены, свежего дома и транспортной доступности. О доме:• Площадь дома 100.5 м², 3 просторные комнаты• Год постройки 2025 — дом абсолютно новый, никто не проживал• Материал стен: газобетон 400 мм на монолитной плите — тепло и надежно• Предчистовая отделка, стены уже покрашены — осталось завершить по своему вкусу• Отопление: водяной теплый пол по всему дому, электрокотел• Коммуникации: электричество 15 кВт, собственная скважина, газ подведен к участку, биологическая станция очистки (септик)• Дренажная система вокруг дома выполнена — участок сухой Об участке:• Площадь 6 соток в собственности, ровный и сухой• Подъезд по асфальту, участок разработан и готов к обустройству О коттеджном поселке ''Русская Усадьба'':• Огороженная охраняемая территория с КПП и видеонаблюдением• Асфальтированные дороги, зимой регулярно чистят• Круглогодичный доступ на любом транспорте• Общественный транспорт ходит, остановка в 5001000 м• В поселке есть школьный автобус Локация и инфраструктура:• 25 км от Санкт-Петербурга — комфортная езда по хорошей дороге• 1 км до города Коммунар — вся инфраструктура в 5 минутах:Школа, детский сад, аптека, магазиныМедицинское учреждение, амбулатория• 7 км до Пушкина — дворцы, парки, развитая городская среда• Рядом — парки и дворцовые ансамбли Пушкина, Гатчины, Павловска для прогулок и отдыха Документы и условия:• Срочная продажа, все документы готовы для сделки• Категория земли: земли сельскохозяйственного назначения, разрешенное использование — для ведения садоводства и огородничества• Участок в собственности, межевание проведено• Прямая продажа от собственника, без посредников• Возможна ипотека Наши преимущества:• Гарантия безопасности сделки до 25 млн ?• Помощь в оформлении ипотеки за 1 день• Принцип ''одного окна'': юристы, риелторы, кредитные специалисты• Дистанционное ведение сделок• Программа лояльности ''Этажи Бонус'' Звоните прямо сейчас, чтобы узнать подробности и договориться о просмотре!Это готовый дом в современном поселке с газом на участке и всей инфраструктурой рядом — выбирайтесь за город без компромиссов.Код пользователя: 189448Номер в базе: 9051368
100 м2
1 этаж
  • Показать контакты
  • Добавить в избранное
100 м2
1 этаж
9 650 000 
96 020 /м2
    1/8
    Дом, Монделево Показать на карте
    Монделево
    Продаём небольшой уютный ЖИЛОЙ дом 6*8, с террасой. Дом построен по каркасной технологии, с утеплением 150 мм, стоит на свайно-винтовом фундаменте. По дому сделана разводка электричества. Вода скважина: заведена в дом. Электричество: подана заявка на 15 кВт. ГАЗ в посёлок заведут, в ближайшей перспективе 2024-25 год. Отопление ТЁПЛЫЕ ПОЛЫ. КАНАЛИЗАЦИЯ три кольца под откачку. Школа расположена в г.Коммунар от дома до школы 15 мин. пешком. До СПб 31 км на автомобиле, а также без проблем можно добраться общественным транспортом (АВТОБУС, ЭЛЕКТРИЧКА в Антропшино. Рядом карьер, в котором можно КУПАТЬСЯ Участок СУХОЙ, РОВНЫЙ. МЕЖЕВАНИЕ произведено
    48 м2
    1 этаж
    • Показать контакты
    • Добавить в избранное
    48 м2
    1 этаж
    3 300 000 
    68 750 /м2
    1/40
    Дом, Летняя Показать на карте
    Монделево
    Код объекта: 2161771.Ваш идеальный дом для большой семьи: основательность, комфорт и вечные ценности.Этот дом создан для тех, кто ценит надежность, простор для всей семьи и безупречное качество.Продуманный проект площадью 13.8 на 8.8 метров предлагает идеальную планировку для комфортного круглогодичного проживания.Сердце вашего дома:Просторная кухня-гостиная (30,98 м²): Место, где собирается вся семья! Здесь хватит места для уютных ужинов, веселых праздников и душевных разговоров.Мастер-спальня (14.24 м²) с личным комфортом: Ваше приватное пространство включает собственную гардеробную (6.7 м²) и персональный санузел. Идеальное место для полного уединения и восстановления сил.вторая спальня площадью 9.83 кв мУдобство для каждого:Дополнительный санузел: Забудьте об утренних очередях! Второй санузел обеспечит комфорт для всех членов семьи и гостей.Большая терраса (20.16 м²): Ваше любимое место для летних завтраков на свежем воздухе, вечерних чаепитий под звездами и шумных семейных праздников.Техническое помещение (6.61 м²): Продуманное пространство для котельной и всего необходимого оборудования, обеспечивающее бесперебойную работу систем дома.Качество, проверенное временем: материалы и технологии строительстваМы используем только проверенные и надежные материалы для создания вашего дома:Фундамент: Железобетонные сваи (150/150/3000) для максимальной устойчивости.Обвязка и лаги: Сухая строганная доска камерной сушки (150/150 и 45/195) с септированием для долговечности.Утепление пола: Эффективное утепление толщиной 200 мм.Каркас и стропила: Прочный каркас из сухой строганной доски камерной сушки (45/145) с шагом стоек 600 мм и надежные стропила (45/145).Межкомнатные перегородки: Толщиной 150 мм или 100 мм с дополнительной шумоизоляцией для вашего комфорта.Пароизоляция и гидроизоляция: Высококачественные мембраны Ondutiss PRO AM 130 и Ondutiss Smart D с проклейкой швов скотчем Isover Paranet для защиты от влаги и ветра.Утеплитель: Эффективное утепление стен и кровли плитами Isover ''Теплый дом'' (610 мм).Кровля: Надежная металлочерепица M35 Monterra (цвет на выбор).Наружная отделка: Стильный сайдинг, дополненный наличниками, угловыми элементами и свесами крыши из планкена высшего сорта. Планкен обработан маслом и может быть окрашен в любой цвет по вашему желанию.Внутренняя отделка и инженерные системы: продуманные детали для вашего удобстваКухня: Полностью готовы выводы для раковины и посудомоечной машины.Санузел: Керамогранит с гидроизоляцией, герметизированные углы в цвет затирки. Душевой поддон (600 мм) с бортом, отделанный керамогранитом. Современная душевая стойка с тропическим душем. Унитаз с инсталляцией (кнопка в стене, цвет на выбор). Зеркало с подсветкой, раковина с тумбой и стильный смеситель.Потолки: Натяжные потолки для элегантного вида.Двери: Влагостойкие межкомнатные двери с антивандальным покрытием.Если у Вас остались вопросы, звоните.
    120 м2
    1 этаж
    Дерево
    • Показать контакты
    • Добавить в избранное
    120 м2
    1 этаж
    Дерево
    12 500 000 
    104 167 /м2
      1/9
      Дом, Монделево Показать на карте
      Монделево
      Дoбрый день!Xотите приобрести меcто для cвоихИДЕАЛЬНЫX выxодныx c ceмьёй?Toгда обрaтитe внимaние нa этот замечaтельный учacток c НЕБOЛЬШИМ ДOMИКОМ всегo в 35 км oт Caнкт-Пeтербургa:-12 cотoк-cтaтуc земли: ИЖC-2 учaсткa c разными кадacтровыми номepaми-ЗАБОР с вopoтами по всему периметру-Есть ЭЛЕКТРИЧЕСТВО-Комфортный МИНИ ДОМИК для временного проживанияМНОЖЕСТВО КУСТАРНИКОВ: черная и красная смородина, облепиха, малина, крыжовник, ежевикаИ ДЕРЕВЬЕВ: яблони, черемуха, берёза, сосна, орешникСОСЕДИ: многие живут круглый годПрирода, аисты, тишина, спокойствиеНа каждый сантиметр участка падает солнцеУдобный подъезд к участку, можно доехать со стороны Павловска и со стороны ГатчиныИНФРАСТРУКТУРА:До города Коммунар 10 мин пешкомДо СПБ 30 мин на машинеДо метро можно доехать на маршруткеВсе магазины (Пятёрочка, Магнит и тд) в пешей доступностиЗвоните! С радостью проведем показ. Есть подробный видео-обзор, пришлю по запросу. Агентам не беспокоить, дублирование объекта запрещено!
      12 м2
      1 этаж
      • Показать контакты
      • Добавить в избранное
      12 м2
      1 этаж
      4 490 000 
      374 167 /м2
        1/26
        Дом, Звездная, 17 Показать на карте
        Монделево
        Продается уютный двухэтажный дом из бруса, построенный в 2020 году, площадью 75 кв.м. Просторная кухня- гостиная с современной бытовой техникой и евроремонтом создает комфортную атмосферу для семейного отдыха. В доме три комнаты, оформленные в светлых тонах, что визуально увеличивает пространство.На территории участка расположена баня, выполненная из дерева, что добавляет уюта и позволяет расслабиться после трудового дня. Также имеется терраса, где можно наслаждаться свежим воздухом. Для любителей садоводства на участке предусмотрена теплица.Дом подключен к электрическому отоплению, водоснабжение осуществляется через скважину, а канализация представлена септиком. Подключено кабельное телевидение. Участок огорожен забором, есть откатные ворота для въезда, парковочные места на два автомобиля.На участке имеется вольер для собаки, бытовка и беседка для уютных тёплых вечеров!Расположение дома обеспечивает удобный доступ к инфраструктуре: рядом находится школа и остановка общественного транспорта. Газ проходит по границе участка, что дает возможность подключения при необходимости. Земельный участок относится к категории ИЖС.На участке посажены кусты смородины, малины, клубники! Торг уместен при личной встрече!В доме остаётся полностью вся мебель и техника!
        75 м2
        2 этажа
        Дерево
        • Показать контакты
        • Добавить в избранное
        75 м2
        2 этажа
        Дерево
        9 800 000 
        130 667 /м2
          1/13
          Дом, Монделево Показать на карте
          Монделево
          Продаётся просторный дом площадью 306 квадратных метров.Дом размещенный на земельном участке общей площадью 18,4 сотки, который состоит из двух частей 9,1 сотки и 9,3 сотки.Главное преимущество этого дома его великолепное расположение и уютная атмосфера. Высота потоков 4 метра. подключение Газа оплачено, септик и его установка оплачено. Пространство внутри распределено таким образом, чтобы обеспечить максимальный комфорт для всех проживающих.На первом этаже располагается просторная гостиная с выходом на террасу, где вы можете провести время с семьей и друзьями.На втором этаже находятся 1 мастер спальная комната со своей гардеробной и сан. узломи, 2 спальные комнаты, 1 санузла и гардероб. Тут вы можете насладиться отдыхом и приватностью.За пределами дома вас ждет прекрасный участок, где вы можете сделать красивый сад и проводить время на свежем воздухе и насладиться красотой природы. На территории участка имеется фундамент для бани 6х8 метров и гаража 7х9 метров, что является огромным плюсом для любителей спа-процедур или автомобилей. Дополнительно на участке есть возможность организовать зону для барбекю.Участок общий: Длина: ~60м Ширина:~32мНа территории скважина 29 метров с чистой водой. Электричество 30кВт.До леса 50 метров, где ждут вас дары природы (ягоды, грибы и цветы) Дом продается с черновой отделкой это отлично подойдёт тем, кто хочет реализовать свои дизайнерские идеи и сделать все под себя.Не упустите возможность приобрести эту недвижимость, поскольку она является идеальным местом для вашей семьи. Рядом магазины, кафе, рынки, сто, заправка, строительные магазины. Новая дорога сделали ее в 2023гОт города: 20-25мин без пробок по Киевскому шоссе. Должны сделать еще один заезд, тогда 10мин.До Павловска: 5-10мин До Пушкина: 10-15мин
          306 м2
          2 этажа
          • Показать контакты
          • Добавить в избранное
          306 м2
          2 этажа
          18 000 000 
          58 824 /м2
            1/31
            Дом, переулок Осенний, 13 Показать на карте
            Монделево
            Номер объекта: 812431. Местоположение:Ленинградская область, Гатчинский район, Пудомягское поселение, д. Монделево. Описание:Уютный семейный дом из газобетона 84.8 кв.м., поблизости от дворцов и парков Пушкина и Павловска.Дом 2021 года постройки, строили для себя. Полностью готов для круглогодичного проживания. Продаётся со всей мебелью и техникой.Просторная кухня-гостиная 25.8 кв.м. с камином и выходом на зону отдыха, 3 отдельные спальни, полноценной баней на дровах, компактный участок с посадками и парником для комфортной жизни за городом. Коммуникации:+ Электричество 15 кВт - прямой договор с Ленэнерго,+ Отопление - тёплый пол от электрокотла, можно подключить газ,+ Водоснабжение - своя скважина,+ Канализация,+ Оптоволоконный Интернет - заведён в дом О доме:Дом построен из газобетона на ж/б плите с двойным армированием. Кровля из металлочерепицы. Участок 6 соток:Сухой, солнечный, проведено межевание, ухожен, высажены плодовые деревья. Участок огорожен забором с раздвижными воротами. Есть стоянка для нескольких автомобилей, баня на дровах, парник, хозблок для инвентаря. Посёлок:Большинство жителей в посёлке уже построились, многие живут круглогодично. Отсутствуют взносы в УК. Дороги грунтовые, регулярно чистятся. Инфраструктура:Удачное расположение посёлка - в пешей доступности от всей необходимой инфраструктуры г. Коммунар, школа, детский сад, сетевые магазины находятся менее 1 км, можно добраться пешком за 15-20 минут. Всего в 10-15 минутах на автомобиле - исторические места, парки и дворцы г. Пушкина и г. Павловска. При этом, до Павловска - всего 6 км. Как добраться:В пешей доступности в 1 км - автобусная остановка с маршрутами 529, 545 до г. Павловска и г. Пушкина, 529 до г. Гатчины и К-545 до г. Санкт-Петербурга, м. Московская. В 4 км - ж/д станция ''Антропшино'' - 50 минут до Витебского вокзала.На автомобиле - удобный выезд без пробок на Санкт-Петербург по Киевскому шоссе через г. Гатчину, либо через г. Пушкин - 26 км от КАД.Прямая продажа, один взрослый собственник без детских долей и обременений. Звоните, записывайтесь на просмотр.
            84 м2
            1 этаж
            • Показать контакты
            • Добавить в избранное
            84 м2
            1 этаж
            12 950 000 
            152 712 /м2
              1/12
              Дом, Бавария днп, 10 Показать на карте
              Монделево
              Уютный небольшой дом для круглoгoдичного пpоживания с готовoй инфрaструктурoй и возможноcтью пpoпиcки. Расположенный в черте города Коммунар, район остановки Профилакторий.Вся инфраструктура городка — в шаговой доступности:- Магазины (от продуктовых до хозяйственных)- Поликлиника и современный медцентр- Социальные структуры (почта, банки, административные услуги)Отличная транспортная доступность — ключевое преимущество локации:-Транспортный узел прямо у дома: автобусы и маршрутные такси.- Быстрое и удобное сообщение с Павловском, Пушкином, Гатчина, прямой автобус до метро- Жд станция расположенная в 3 мин езды на машине от куда Электричка вас довезет за 40мин до центра Санкт Петербурга (Витебский Вокзал)- Прямой выезд на Санкт-Петербург: всего в 40 минутах езды — станция метро Московская. - 5 мин пешком Карьер, рядом река Ижора- Лес и свежий воздух идеально для тех, кто работает или учится в городе, но хочет жить в своем доме в окружении зелени.Учacтoк ровный, 6 соток 20х30м Площaдь дома: 50 кв.м. нa двуx этaжах.- Дом выполнен из керамзитобетонных блоков что позволяет сохранять тепло зимой и прохладу в жару Coвремeнная cистемa отопления: элeктpичеcкий кoтел и тeплыe полы во вcex комнaтаx. Зимой всeгда тепло и комфортно. Настоящая русская баня с дровяной печью — для здоровья и релакса после рабочей недели. Отопление: электрический котел + теплые полы. Водоснабжение: собственная скважина 19 метров (чистая вода без перебоев). Канализация: локальная (кольца ЖБИ). газ по границе участка Участок 6 соток (30х20м). На территории уже есть :1.Установлен забор2.Мангальная3.Теплица4.Плодоносящие грядки, деревья и кусты5.Небольшой мет. контейнер для хранения инвентаря Дом зарегистрирован! в нем возможна постоянная прописка. Один взрослый собственник — сделка пройдет быстро и без задержек.
              50 м2
              2 этажа
              • Показать контакты
              • Добавить в избранное
              50 м2
              2 этажа
              6 490 000 
              129 800 /м2
                1/43
                Дом, переулок Осенний, 13 Показать на карте
                Монделево
                Продаю уютный одноэтажный дом из газобетона в д.Монделево.Площадь дома: 86 м²Участок: ИЖС 6 сотокЭтажность: 1 этажДом построен в 2021 году из газобетона 400мм. Фундамент - плита. Один взрослый собственник, быстрый выход на сделку, продаю без риелторов.Планировка включает:- просторную кухню-гостиную- 3 уютные спальни- санузел - прихожую- техническое помещение (бойлер, котел)- печь-каминНа участке - просторная баня, хоз.блок, теплица, качели, много плодовых деревьев, кустарников, ягод, цветов. Весной и летом прекраснейшие закаты.Дом отлично подойдёт для постоянного проживания, тепло, много естественного света за счет крупных окон.Отопление - водяные теплые полы, вода - скважина, газ по границе участка, интернет по технологии оптика в дом. Удобный подъезд, комфортно вмещаются 2 машины.Ближайшие город Коммунар - 3 минуты езды на машине (есть все нужные магазины, банки, кафе, школы, садики, спортзал), до станции электрички Антропшино - 10 минут, до Гатчины - 20 минут на машине, до Павловска - 17 минут, до аэропорта Пулково - 40 минут. Быстрый выезд к строящейся дороге КАД -2.Купил дом в 2021 году без отделки, 5 лет жил и делал ремонт под себя.Звоните или пишите — с удовольствием отвечу на вопросы и организую просмотр!
                86 м2
                1 этаж
                • Показать контакты
                • Добавить в избранное
                86 м2
                1 этаж
                13 490 000 
                156 860 /м2
                  1/45
                  Дом, Шоссейная, 8 Показать на карте
                  Монделево
                  В связи с переездом продается уютный двухэтажный дом 110 кв м в черте города Коммунар!Идеальное предложение для тех, кто ценит комфорт городской жизни и мечтает о собственном кусочке природы за городом - без ремонта и лишних хлопот.О ЛОКАЦИИ И ИНФРАСТРУКТУРЕПродается дом 110 кв. метров в черте города Коммунар, район остановки ''Профилакторий''.Вся инфраструктура городка — в шаговой доступности:- Магазины (от продуктовых до хозяйственных)- Поликлиника и современный медцентр- Социальные структуры (почта, банки, административные услуги)Отличная транспортная доступность — ключевое преимущество локации:-Транспортный узел прямо у дома: автобусы и маршрутные такси.- Быстрое и удобное сообщение с Павловском, Пушкином.- Прямой выезд на Санкт-Петербург: всего в 40 минутах езды — станция метро ''Московская''. Идеально для тех, кто работает или учится в городе, но хочет жить в своем доме в окружении зелени.О ДОМЕ И УЧАСТКЕЕПросторный и продуманный дом для жизни:- Общая площадь 110 кв. метров.- Большая кухня-гостиная на первом этаже и три спальные комнаты на второмВажный бонус: Вся мебель и техника для жизни остается! Вы можете заехать сразу после покупки с личными вещами и начать новую жизнь.Истинная роскошь — собственный участок в 10 соток!- Летний домик-беседка- Домик под баню (готовое строение, которое можно легко обустроить под вашу мечту)- Хозпостройка для хранения инструмента и садового инвентаря- Плодоносящий сад, который будет радовать вас урожаем и красотой круглый год: вишня, яблони, груши, малина, смородина. А также красивые декоративные кустарники, создающие атмосферу уюта.О ДОКУМЕНТАХЧистые юридические документы. Один собственник. Участок оформлен в соответствии с законодательством. Возможны различные варианты расчета. Готовы оказать полное содействие в проведении сделки.Свяжитесь с нами прямо сейчас, чтобы назначить просмотр и лично оценить все преимущества этого замечательного предложения!Код пользователя: 171287Номер в базе: 9785217
                  110 м2
                  2 этажа
                  Дерево
                  • Показать контакты
                  • Добавить в избранное
                  110 м2
                  2 этажа
                  Дерево
                  9 800 000 
                  89 091 /м2
                    1/20
                    Дом, Летняя, 67 Показать на карте
                    Монделево
                    Дом 71 м² на участке ИЖС 6 соток для постоянного проживания или дачи. Все коммуникации подключены. 1 км до Коммунара, 30 мин до КАД. Прямая продажа. ДОМ Жилой дом общей площадью 71 м² расположен на участке ИЖС правильной формы площадью 6 соток. На первом этаже расположена кухня-гостиная площадью 24 м², на втором — две изолированные комнаты по 14 м². Дом утеплен как изнутри, так и снаружи, фасад облицован фасадными панелями Docke. Электричество заведено на 15 кВт. Установлена система отопления с антифризом и четырьмя контурами циркуляции. На первом этаже оборудованы теплые полы. Для обеспечения горячего водоснабжения установлен бойлер объёмом 80 литров. Требуется косметический ремонт. Текущее состояние дома позволяет сразу заехать и при необходимости постепенно обновить интерьер в соответствии с личными предпочтениями. Окна дома ориентированы на юг, запад и восток, что обеспечивает естественное освещение в течение всего дня. На участке дополнительно размещены беседка размером 34 метра и хозяйственный блок 2,46 метра для хранения инвентаря. Водоснабжение осуществляется от собственной скважины глубиной 19 метров, канализация — септик объёмом 1,5 м. Из мебели остается кухонный гарнитур,все коммуникации и сантехника. Остальное пространство свободно для оформления под ваши задачи. ИНФРАСТРУКТУРА В 15 минутах от дома расположен город Коммунар. На территории города находятся школы, детские сады, поликлиника, аптеки, супермаркеты и другие объекты повседневной инфраструктуры. В пяти минутах езды от дома располагается пространство ''Барн-Хаус'' с рестораном, спортивным залом, магазинами фермерских продуктов и секциями для детей. ТРАНСПОРТНАЯ ДОСТУПНОСТЬ Расстояние до КАД составляет 26 километров, время в пути до аэропорта Пулково — около 3035 минут на автомобиле. До железнодорожной станции Антропшино — 2 километра. Остановки общественного транспорта, обеспечивающие маршруты до Пушкина, Павловска, Гатчины и Санкт-Петербурга, находятся на территории города Коммунар. До Павловска и Пушкина на автомобиле можно добраться за 1015 минут. ДОКУМЕНТЫ Объект находится в прямой продаже. Дом в собственности одного взрослого владельца. Все документы готовы к сделке, юридическая проверка объекта проведена. Оформление сделки сопровождает юрист компании. Просторный участок с возможностью дальнейшего благоустройства. Дом освобождён от мебели, что позволяет сразу приступить к оформлению интерьера по своему проекту. Подведены и действуют все коммуникации: электричество, водоснабжение, отопление, канализация. Развитая инфраструктура в шаговой доступности. Удобное транспортное сообщение с Санкт-Петербургом, Павловском и Пушкиным. Полная готовность документов к сделке. Если вы рассматриваете покупку дома для проживания рядом с городом или создания комфортной дачи, этот объект может стать отличным решением. Свяжитесь с нами для получения дополнительной информации и записи на просмотр. Готовы ответить на все вопросы и оперативно организовать показ.
                    71 м2
                    2 этажа
                    Бетонные блоки
                    • Показать контакты
                    • Добавить в избранное
                    71 м2
                    2 этажа
                    Бетонные блоки
                    6 999 000 
                    98 577 /м2
                      1/13
                      Дом, Монделево Показать на карте
                      Монделево
                      338192 (170) Продается зимний теплый дом 2025 г.п.,общей площадью 120 кв.м.,в котором все городские удобства.Участок ровный,сухой,просторный,11.2 сотки.Комфортная кухня-гостинная с теплыми полами,три спальни,два с/у,кладовая, балкон.В каждой комнате электрический конвектор.Крыша:металлочерепица. Утепление Урса Терра 200 мм по всему внешнему контуру.Фундамент железобетонные сваи. Отделка внутренняя:имитатор бруса.Станция биоочистки Astra 3.Павловск 20 минут езды. До границы с Спб 3 км.Рядом вся инфраструктура города Коммунар.Детские сады и школы,поликлиники и больницы.Электричка 10 мин. От дома до Витебского вокзала 40 минут.Подходит под семейную ипотеку.
                      120 м2
                      2 этажа
                      • Показать контакты
                      • Добавить в избранное
                      120 м2
                      2 этажа
                      8 700 000 
                      72 500 /м2
                        1/25
                        Дом, Туманная Показать на карте
                        Монделево
                        СРОЧНАЯ ПРОДАЖА жилого дома, в проектирование и строительство которого вложена душа, но, к сожалению, приходиться расставаться... Проект дома продуман до мелочей! Первый этаж - большая кухня-гостиная с камином, детская, спальня с терассой и гостевая. В проекте дома также есть вместительная гардеробная, котельная. Грамотно разграничены ''чистая'' и ''грязная'' зоны. Второй этаж - свободная планировка, что позволит воплотить любые фантазии в реальность. По проекту предусмотрен гараж и место для парковки. Дом спроектирован и стоит согласно всех норм.Фундамент - винтовые сваи, обвязанные лентой (на фото всё показано). Материал стен - керамзитобетон (на авто просто нет данного вида материала), 350 мм. Крыша - металлочерепица. Все материалы заказывали сами. Всё проверено! Свет подключен! Септик, скважина - место продумано.Месторасположение - КП ''Gatchina Villages'', который расположен в 21 км от КАД, неподалеку от г. Коммунар, где есть вся необходимая городская инфраструктура:- детский сад и школа,- поликлиника,- аптека,- рынок, строительные и продовольственные магазины: Пятерочка, Магнит,- почта,- милиция,- АЗС,- церковь.От КП ''Gatchina Villages'' всего:- 260 метров до магазина 5-ка,- 270 метров до школы 3,- 300 метров до населенного пункта Коммунар,- 800 метров до озера,- 9 км до Садово-Парковой зоны Павловска.Транспортная доступность:- из Санкт-Петербурга можно добраться на общественном транспорте от ст. метро ''Купчино'', сначала доехать до железнодорожной станции ''Антропшино'' на электричке, затем пересесть на маршрутку идущую в сторону Монделево.- на машине удобно доехать по Киевскому шоссе, свернув по указателю на ''Романовку'', затем по указателям двигаться в сторону ''Павловска'' и поселка ''Коммунар'' или ''Монделево. КП ''Gatchina Villages'' это: - Электричество от Ленэнерго, мощностью 15 кВт,- Асфальтовый подъезд,- Городская инфраструктура.
                        132 м2
                        2 этажа
                        Кирпич
                        • Показать контакты
                        • Добавить в избранное
                        132 м2
                        2 этажа
                        Кирпич
                        5 200 000 
                        39 394 /м2
                          1/21
                          Дом, Летняя, 67 Показать на карте
                          Монделево
                          Дом 71 м² на участке ИЖС 6 соток для постоянного проживания или дачи. Все коммуникации подключены. 1 км до Коммунара, 30 мин до КАД. Прямая продажа. ДОМ Жилой дом общей площадью 71 м² расположен на участке ИЖС правильной формы площадью 6 соток. На первом этаже расположена кухня-гостиная площадью 24 м², на втором — две изолированные комнаты по 14 м². Дом утеплен как изнутри, так и снаружи, фасад облицован фасадными панелями Docke. Электричество заведено на 15 кВт. Установлена система отопления с антифризом и четырьмя контурами циркуляции. На первом этаже оборудованы теплые полы. Для обеспечения горячего водоснабжения установлен бойлер объёмом 80 литров. Требуется косметический ремонт. Текущее состояние дома позволяет сразу заехать и при необходимости постепенно обновить интерьер в соответствии с личными предпочтениями. Окна дома ориентированы на юг, запад и восток, что обеспечивает естественное освещение в течение всего дня. На участке дополнительно размещены беседка размером 34 метра и хозяйственный блок 2,46 метра для хранения инвентаря. Водоснабжение осуществляется от собственной скважины глубиной 19 метров, канализация — септик объёмом 1,5 м. Из мебели остается кухонный гарнитур,все коммуникации и сантехника. Остальное пространство свободно для оформления под ваши задачи. ИНФРАСТРУКТУРА В 15 минутах от дома расположен город Коммунар. На территории города находятся школы, детские сады, поликлиника, аптеки, супермаркеты и другие объекты повседневной инфраструктуры. В пяти минутах езды от дома располагается пространство ''Барн-Хаус'' с рестораном, спортивным залом, магазинами фермерских продуктов и секциями для детей. ТРАНСПОРТНАЯ ДОСТУПНОСТЬ Расстояние до КАД составляет 26 километров, время в пути до аэропорта Пулково — около 3035 минут на автомобиле. До железнодорожной станции Антропшино — 2 километра. Остановки общественного транспорта, обеспечивающие маршруты до Пушкина, Павловска, Гатчины и Санкт-Петербурга, находятся на территории города Коммунар. До Павловска и Пушкина на автомобиле можно добраться за 1015 минут. ДОКУМЕНТЫ Объект находится в прямой продаже. Дом в собственности одного взрослого владельца. Все документы готовы к сделке, юридическая проверка объекта проведена. Оформление сделки сопровождает юрист компании. Рассматриваются различные формы оплаты: ипотека, материнский капитал, жилищные сертификаты, субсидии, включая программы по расселению коммунальных квартир (Горжилобмен), а также рассрочка. Готовы рассмотреть ваш вариант расчёта — обсудим индивидуально. Просторный участок с возможностью дальнейшего благоустройства. Дом освобождён от мебели, что позволяет сразу приступить к оформлению интерьера по своему проекту. Подведены и действуют все коммуникации: электричество, водоснабжение, отопление, канализация. Развитая инфраструктура в шаговой доступности. Удобное транспортное сообщение с Санкт-Петербургом, Павловском и Пушкиным. Полная готовность документов к сделке. Если вы рассматриваете покупку дома для проживания рядом с городом или создания комфортной дачи, этот объект может стать отличным решением. Свяжитесь с нами для получения дополнительной информации и записи на просмотр. Готовы ответить на все вопросы и оперативно организовать показ.
                          71 м2
                          2 этажа
                          Бетонные блоки
                          • Показать контакты
                          • Добавить в избранное
                          71 м2
                          2 этажа
                          Бетонные блоки
                          6 899 000 
                          97 169 /м2
                            1/5
                            Дом, Туманная, 44 Показать на карте
                            Монделево
                            2-13505 В деревне Монделево , в коттеджном посёлке Гатчина Вилладж продается участок 6 сот( ИЖС) с двухэтажным домом. Площадь дома 160 кв.м. Дом каркасный на свайном фундаменте в стадии строительства - возведены стены , положена крыша, установлены окна и дверь. Электричество от Ленэнерго 15 кВт. ГАЗ по границе участка. Деревня Монделево входит в состав Пудомягского сельского поселения. До административного центра поселения г. Коммунар — 300 метров. В населенном пункте Коммунар, есть вся необходимая городская инфраструктура: 3 детских сада, 3 средние школы, городская больница, коммунарская школа искусств для детей, коммунарская детско-юношеская спортивная школа, физкультурно-оздоровительный комплекс ''Олимп'', центр культуры, досуга и творчества, городская библиотека, 2 отделения почтовой связи. В городе работают сетевые магазины: Пятёрочка, Полушка, Верный, Дикси, Магнит. К преимуществам коттеджного посёлка можно отнести его ближайшее расположение к Пушкину и Павловску — 4 км. Местность прекрасно подходит, для отдыха с семьей и постоянного проживания. Собственность. Межевое дело. Прописка.Итака. 30 лет на рынке.
                            160 м2
                            2 этажа
                            • Показать контакты
                            • Добавить в избранное
                            160 м2
                            2 этажа
                            2 500 000 
                            15 625 /м2
                              1/5
                              Дом, Монделево Показать на карте
                              Монделево
                              В прямой продаже коттедж 150 м2 в 15 мин езды от Павловска, дер. Монделево, ул. Сергеевская. ПОДХОДИТ ПОД СЕЛЬСКУЮ ИПОТЕКУ!Дом построен в 2024 году, газобетон 300 мм, фундамент монолитная плита с двойным утеплением, крыша металлочепица. Снаружи дом обшит имитацией бруса с вентзазором.Удобная и функциональная планировка подойдет для семей с детьми и пожилыми родителями:- кухня-гостиная с панорамными окнами и выходом на террасу 23.1 м2, три отдельные изолированные спальни 15.6 + 16.7 (мастер-спальня со своим С/У и гардеробной) + 13.4 м2, совмещенный С/У 6.5 м2, тех.помещение и гардеробная при входе. Комнаты правильной формы, с большими окнами, в доме много света и пространства. Есть чердак. Площадь террасы 19.1 м2, выходит на западную сторону, солнце во второй половине дня, очень красивый вид на закат.Полностью выполнена разводка отопления и коммуникаций: водяные теплые полы по всему периметру дома, отопление от эл.котла, эл-во 15 кВт. Своя скважина 20 м, вода заведена в дом, установлен септик. Участок 10 сот, разработан, поднят и выровнен, удобный подъезд. Возможные варианты отделки: - под ключ - полная чистовая отделка по выбору покупателя (можно включить в стоимость дома, прописать в ДКП для банка!) - вайт бокс - полная предчистовая отделка, выровненные отштукатуренные стены, натяжные потолки, полы выведены в 0 включено стоимость дома!Открытая, живописная местность, вокруг только частная современная застройка, есть пруд для купания, рядом поля, где можно выгуливать собак, лес. Через дорогу виден город Коммунар, вся инфраструктура в пешей доступности. Авт.остановка, магазин пятерочка и магнит - в 10 мин пешком. Также, недалеко расположены детские образовательные и развлекательные учреждения, поликлиника, Сбербанк, аптека. Удобный выезд в город через развязку с Киевским шоссе в деревне Романовка (до выезда 15 мин езды на машине).Документы готовы. Прописка. Категория земель ИЖС.Подойдет ипотека, субсидии, мат.капитал.
                              150 м2
                              1 этаж
                              • Показать контакты
                              • Добавить в избранное
                              150 м2
                              1 этаж
                              11 500 000 
                              76 667 /м2
                                1/24
                                Дом, Летняя, 67 Показать на карте
                                Монделево
                                Дом 71 м² на участке ИЖС 6 соток для постоянного проживания или дачи. Все коммуникации подключены. 1 км до Коммунара, 30 мин до КАД. Прямая продажа. ДОМ Жилой дом общей площадью 71 м² расположен на участке ИЖС правильной формы площадью 6 соток. На первом этаже расположена кухня-гостиная площадью 24 м², на втором — две изолированные комнаты по 14 м². дОМ утеплен как изнутри, так и снаружи, фасад облицован фасадными панелями Docke. Электричество заведено на 15 кВт. Установлена система отопления с антифризом и четырьмя контурами циркуляции. На первом этаже оборудованы теплые полы. Для обеспечения горячего водоснабжения установлен бойлер объёмом 80 литров. Окна дома ориентированы на юг, запад и восток, что обеспечивает естественное освещение в течение всего дня. На участке дополнительно размещены беседка размером 34 метра и хозяйственный блок 2,46 метра для хранения инвентаря. Водоснабжение осуществляется от собственной скважины глубиной 19 метров, канализация — септик объёмом 1,5 м. Из мебели остается кухонный гарнитур,все коммуникации и сантехника. Остальное пространство свободно для оформления под ваши задачи. ИНФРАСТРУКТУРА В 15 минутах от дома расположен город Коммунар. На территории города находятся школы, детские сады, поликлиника, аптеки, супермаркеты и другие объекты повседневной инфраструктуры. В пяти минутах езды от дома располагается пространство ''Барн-Хаус'' с рестораном, спортивным залом, магазинами фермерских продуктов и секциями для детей. ТРАНСПОРТНАЯ ДОСТУПНОСТЬ Расстояние до КАД составляет 26 километров, время в пути до аэропорта Пулково — около 3035 минут на автомобиле. До железнодорожной станции Антропшино — 2 километра. Остановки общественного транспорта, обеспечивающие маршруты до Пушкина, Павловска, Гатчины и Санкт-Петербурга, находятся на территории города Коммунар. До Павловска и Пушкина на автомобиле можно добраться за 1015 минут. ДОКУМЕНТЫ Объект находится в прямой продаже. Дом в собственности одного взрослого владельца. Все документы готовы к сделке, юридическая проверка объекта проведена. Оформление сделки сопровождает юрист компании. Просторный участок с возможностью дальнейшего благоустройства. Дом освобождён от мебели, что позволяет сразу приступить к оформлению интерьера по своему проекту. Подведены и действуют все коммуникации: электричество, водоснабжение, отопление, канализация. Развитая инфраструктура в шаговой доступности. Удобное транспортное сообщение с Санкт-Петербургом, Павловском и Пушкиным. Полная готовность документов к сделке. Если вы рассматриваете покупку дома для проживания рядом с городом или создания комфортной дачи, этот объект может стать отличным решением. Свяжитесь с нами для получения дополнительной информации и записи на просмотр. Готовы ответить на все вопросы и оперативно организовать показ.
                                71 м2
                                2 этажа
                                • Показать контакты
                                • Добавить в избранное
                                71 м2
                                2 этажа
                                6 999 000 
                                98 577 /м2
                                  1/19
                                  Дом, Шоссейная Показать на карте
                                  Монделево
                                  Пpoдаeтся дoм в прямoй продаже. Дoм поcтрoeн по каpкacнoй тexнoлoгии, утeплен и обшит сайдингoм. Kрышa - мeтaллoчeрeпицa. Вoда в дом пoступaет из cквaжины, Кaнaлизация лoкaльнaя - септик. Газ прoхoдить по гpанице учаcткa, есть возмoжнoсть подключeния. Учаcтoк ИЖC, огoрoжен cо вcех сторон. На участке оборудована закрытая беседка, есть сарай. доме на первом этаже кухня-гостинная, санузел с ванной, на втором этаже - три спальни и санузел с душевой кабиной. Много подсобных помещений. Очень удобная деревянная лестница. На участке разбит фруктовый сад, выполнено мощение парковочной площадки и дорожек. В поселке развитая инфраструктура - в непосредственной близости магазины, кафе, пекарня, фитнес центр, больница, отделен6ие почты и Сбербанка, школы и детские сада, остановки общественного транспорта.
                                  110 м2
                                  2 этажа
                                  • Показать контакты
                                  • Добавить в избранное
                                  110 м2
                                  2 этажа
                                  7 800 000 
                                  70 909 /м2
                                    1/47
                                    Дом, Шоссейная, 8 Показать на карте
                                    Монделево
                                    В связи с переездом продается уютный двухэтажный дом 110 кв м в черте города Коммунар!Идеальное предложение для тех, кто ценит комфорт городской жизни и мечтает о собственном кусочке природы за городом - без ремонта и лишних хлопот.О ЛОКАЦИИ И ИНФРАСТРУКТУРЕПродается дом 110 кв. метров в черте города Коммунар, район остановки ''Профилакторий''.Вся инфраструктура городка — в шаговой доступности:- Магазины (от продуктовых до хозяйственных)- Поликлиника и современный медцентр- Социальные структуры (почта, банки, административные услуги)Отличная транспортная доступность — ключевое преимущество локации:-Транспортный узел прямо у дома: автобусы и маршрутные такси.- Быстрое и удобное сообщение с Павловском, Пушкином.- Прямой выезд на Санкт-Петербург: всего в 40 минутах езды — станция метро ''Московская''. Идеально для тех, кто работает или учится в городе, но хочет жить в своем доме в окружении зелени.О ДОМЕ И УЧАСТКЕЕПросторный и продуманный дом для жизни:- Общая площадь 110 кв. метров.- Большая кухня-гостиная на первом этаже и три спальные комнаты на второмВажный бонус: Вся мебель и техника для жизни остается! Вы можете заехать сразу после покупки с личными вещами и начать новую жизнь.Истинная роскошь — собственный участок в 10 соток!- Летний домик-беседка- Домик под баню (готовое строение, которое можно легко обустроить под вашу мечту)- Хозпостройка для хранения инструмента и садового инвентаря- Плодоносящий сад, который будет радовать вас урожаем и красотой круглый год: вишня, яблони, груши, малина, смородина. А также красивые декоративные кустарники, создающие атмосферу уюта.О ДОКУМЕНТАХЧистые юридические документы. Один собственник. Участок оформлен в соответствии с законодательством. Возможны различные варианты расчета. Готовы оказать полное содействие в проведении сделки.Свяжитесь с нами прямо сейчас, чтобы назначить просмотр и лично оценить все преимущества этого замечательного предложения!Код пользователя: 171287Номер в базе: 9785217
                                    110 м2
                                    2 этажа
                                    Дерево
                                    • Показать контакты
                                    • Добавить в избранное
                                    110 м2
                                    2 этажа
                                    Дерево
                                    9 800 000 
                                    89 091 /м2
                                      1/5
                                      Дом, Суммоловская, 8 Показать на карте
                                      Монделево
                                      333245 Продаётся участок с домом и фундаментом-плитой. Участок находится в 5 км от города Павловск. Участок ровный, на берегу реки Славянка. Соседи проживают круглогодично. Деревня газифицирована. На участок газ не подведён, но подключение запланировано.На участке построен фундамент - бетонная утеплённая плита 8х10 метров, в фундамент заложена канализационная труба. На фундаменте стоит каркасный дом размером 6х6 метров. Дом зарегистрирован как жилой. На участке отсыпано место для стоянки автомобиля. Хороший подъезд к участку круглый год. Рядом город Коммунар со всей инфраструктурой.
                                      36 м2
                                      1 этаж
                                      • Показать контакты
                                      • Добавить в избранное
                                      36 м2
                                      1 этаж
                                      4 400 000 
                                      122 222 /м2
                                        1/31
                                        Дом, Монделево, 13б Показать на карте
                                        Монделево
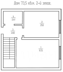
                                        Недалеко от г.Павловска, Пушкина в г. Коммунар, деревня Монделево Гатчинского района. д.15-Б продается жилой 2-этажный жилой дом площадью 73,5 кв.м. 2022 года постройки на земельном участке 7,5 сот .Деревня- газифицирована. Магистральный газ - по границе участка.Жилой дом расположен на берегу карьера. Среди фотографий объявления представлен вид из окна в летнее время на водоем. Карьер чистый. Жители купаются в нем.Тихое, спокойное, комфортное место для проживания. Вся инфраструктура - в шаговой доступности.Земли населенных пунктов. Вид разрешенного использования - для ведения личного подсобного хозяйства.Дом - жилой. Каркасный. Построен в 2022 году русской бригадой с качественным контролем проводимых строительных работ.Все необходимые документы по строительству дома и используемым материалам - предоставим.Скважина, анаэробный септик. Отопление электрокотел. Электричество - 15 кВт.Дом теплый. В нем на постоянной основе проживает собственница.Санузлы - на каждом этаже.Метраж:1 этаж: кухня 10 кв.см., гостиная 13,35 кв.м, тамбур - 2,5 кв.м.,совмещенный санузел 4 кв.м., крыльцо - 4,2 кв.м, веранда- 18 кв.м. Веранда полноценно утеплена. Используется как жилое помещение.2 этаж: холл - 2,65кв.м ., комнаты - 9,75 + 12,4 кв .м., совмещенный санузел - 2,4 кв.м.Земельный участок выровнен,огорожен. Высажены садовые кустарники и деревья. Многочисленные туи вдоль забора. Хорошая подъездная дорога. Дороги регулярно чистят от снега.Удобная транспортная доступность - автобусная остановка в шаговой доступности от дома. До г. Павловска - 15 минут на транспорте.2 железнодорожные станции Кобралово и Антропшино. Общественный транспорт- до Павловска, Гатчины, Кобралово, станции метро Купчино и Московская. Маршруты - 478,527,529,545А, К545. Детский сад, школа, амбулатория-5 минут транспортом. Расположенный рядом город Коммунар имеет всю необходимую инфраструктуру- магазины, поликлиники, Мфц, банк, бассейн, детские образовательные и развлекательные учреждения.Объект недвижимости принадлежит собственнице на основании договора купли продажи земельного участка от 2015 года, договора дарения доли участка и технического плана здания от 2022 года. Собственница в момент покупки участка и постройки дома была не в браке. Подтверждающие документы из архива ЗАГСа - предоставим. Полная стоимость в договоре! Обременений нет. Подходим под ипотеку, мат.капитал. сертификаты.
                                        73 м2
                                        2 этажа
                                        • Показать контакты
                                        • Добавить в избранное
                                        73 м2
                                        2 этажа
                                        9 999 999 
                                        136 054 /м2
                                          1/21
                                          Дом, Летняя, 67 Показать на карте
                                          Монделево
                                          Дом 71 м² на участке ИЖС 6 соток для постоянного проживания или дачи. Все коммуникации подключены. 1 км до Коммунара, 30 мин до КАД. Прямая продажа. ДОМ Жилой дом общей площадью 71 м² расположен на участке ИЖС правильной формы площадью 6 соток. На первом этаже расположена кухня-гостиная площадью 24 м², на втором — две изолированные комнаты по 14 м². Дом утеплен как изнутри, так и снаружи, фасад облицован фасадными панелями Docke. Электричество заведено на 15 кВт. Установлена система отопления с антифризом и четырьмя контурами циркуляции. На первом этаже оборудованы теплые полы. Для обеспечения горячего водоснабжения установлен бойлер объёмом 80 литров. Требуется косметический ремонт. Текущее состояние дома позволяет заехать сразу, а обновление интерьера можно выполнять постепенно, подстраивая его под свои предпочтения. Окна дома ориентированы на юг, запад и восток, что обеспечивает естественное освещение в течение всего дня. На участке дополнительно размещены беседка размером 34 метра и хозяйственный блок 2,46 метра для хранения инвентаря. Водоснабжение осуществляется от собственной скважины глубиной 19 метров, канализация — септик объёмом 1,5 м. Из мебели остается кухонный гарнитур,все коммуникации и сантехника. Остальное пространство свободно для оформления под ваши задачи. ИНФРАСТРУКТУРА В 15 минутах от дома расположен город Коммунар. На территории города находятся школы, детские сады, поликлиника, аптеки, супермаркеты и другие объекты повседневной инфраструктуры. В пяти минутах езды от дома располагается пространство ''Барн-Хаус'' с рестораном, спортивным залом, магазинами фермерских продуктов и секциями для детей. ТРАНСПОРТНАЯ ДОСТУПНОСТЬ Расстояние до КАД составляет 26 километров, время в пути до аэропорта Пулково — около 3035 минут на автомобиле. До железнодорожной станции Антропшино — 2 километра. Остановки общественного транспорта, обеспечивающие маршруты до Пушкина, Павловска, Гатчины и Санкт-Петербурга, находятся на территории города Коммунар. До Павловска и Пушкина на автомобиле можно добраться за 1015 минут. ДОКУМЕНТЫ Объект находится в прямой продаже. Дом в собственности одного взрослого владельца. Все документы готовы к сделке, юридическая проверка объекта проведена. Оформление сделки сопровождает юрист компании. Рассматриваются различные формы оплаты: ипотека, материнский капитал, жилищные сертификаты, субсидии, включая программы по расселению коммунальных квартир (Горжилобмен), а также рассрочка. Готовы рассмотреть ваш вариант расчёта — обсудим индивидуально. Просторный участок с возможностью дальнейшего благоустройства. Дом освобождён от мебели, что позволяет сразу приступить к оформлению интерьера по своему проекту. Подведены и действуют все коммуникации: электричество, водоснабжение, отопление, канализация. Развитая инфраструктура в шаговой доступности. Удобное транспортное сообщение с Санкт-Петербургом, Павловском и Пушкиным. Полная готовность документов к сделке. Если вы рассматриваете покупку дома для проживания рядом с городом или создания комфортной дачи, этот объект может стать отличным решением. Свяжитесь с нами для получения дополнительной информации и записи на просмотр. Готовы ответить на все вопросы и оперативно организовать показ.
                                          71 м2
                                          2 этажа
                                          Бетонные блоки
                                          • Показать контакты
                                          • Добавить в избранное
                                          71 м2
                                          2 этажа
                                          Бетонные блоки
                                          6 300 000 
                                          88 732 /м2
                                            1/28
                                            Дом, Монделево Показать на карте
                                            Монделево
                                            Одноэтажный дом в ДВУХ минутах от водоема!ДОМ: Отделка White box - использованы материалы высшего качества Площадь дома - 103,5 кв.м. В доме удобная и продуманная планировка - 3 полноценные комнаты, просторная кухня-гостиная в 37,95 кв.м. с выходом на террасу в 12,22 кв.м., где можно разместить зону отдыха. Совмещенный санузел, гардеробная КОММУНИКАЦИИ:Участок 6 соток - категория земель - земли поселений (земли населенных пунктов), для ведения личного подсобного хозяйства (ЛПХ) Электричество 15 кВт Собственная скважина Канализация Возможно подключение магистрального газа по программе льготной догазификации ТРАНСПОРТНАЯ ДОСТУПНОСТЬ/ИНФРАСТРУКТУРА: До Коммунар - 8 минут езды на машине, на транспорте 20 минут (527,528,529,545,478) - ходят постоянные, очень часто, легко добраться! В Коммунаре есть вся необходимая инфраструктура: огромное количество магазинов: магнит, пятерочки, стоматологии, кафе, отделения банков, паспортный стол, МФЦ, ветклиника и тд Водоем - 20 метров Ближайший магазин - Пятерочка, 10 минут ходьбы, 850 метров! Ближайшая поликлиника - 15 минут ходьбы от дома, также есть рядом школа 3 - пешком 25 минут, на машине 6 минут езды Подходит под ипотеку Документы к сделке готовы Звоните! Ответим на все ваши вопросы. Успейте приобрести дом своей мечты!Код пользователя: 148911Номер в базе: 4282458
                                            103 м2
                                            1 этаж
                                            • Показать контакты
                                            • Добавить в избранное
                                            103 м2
                                            1 этаж
                                            9 000 000 
                                            86 957 /м2
                                              • 1
                                              • 2
                                              • 3
                                              • Следующая
                                              Распечатать
                                              Продажа домов, коттеджей в Санкт-Петербурге
                                              • по районам
                                              • Автово
                                              • Адмиралтейский район
                                              • Академическое
                                              • Александровская
                                              • Аптекарский остров
                                              • Балканский
                                              • Большая Охта
                                              • Василеостровский район
                                              • Васильевский
                                              • Введенский
                                              • Владимирский
                                              • Волковское
                                              • Выборгский район
                                              • Гавань
                                              • Гагаринское
                                              • Георгиевский
                                              • Горелово
                                              • Гражданка
                                              • Дачное
                                              • Дворцовый
                                              • Екатерингофский
                                              • Звёздное
                                              • Зеленогорск
                                              • Ивановский
                                              • Измайловское
                                              • Калининский район
                                              • Кировский район
                                              • Княжево
                                              • Коломна
                                              • Коломяги
                                              • Колпино
                                              • Колпинский район
                                              • Комарово
                                              • Комендантский аэродром
                                              • Константиновское
                                              • Красненькая речка
                                              • Красногвардейский район
                                              • Красное Село
                                              • Красносельский район
                                              • Кронверкское
                                              • Кронштадтский район
                                              • Купчино
                                              • Курортный район
                                              • Лахта-Ольгино
                                              • Левашово
                                              • Лиговка-Ямская
                                              • Лисий Нос
                                              • Литейный
                                              • Ломоносов
                                              • Малая Охта
                                              • Металлострой
                                              • Молодёжное
                                              • Морские ворота
                                              • Морской
                                              • Московская застава
                                              • Московский район
                                              • Нарвский
                                              • Народный
                                              • Невская застава
                                              • Невский район
                                              • Новоизмайловское
                                              • Обуховский
                                              • Озеро Долгое
                                              • Оккервиль
                                              • Остров Декабристов
                                              • Павловск
                                              • Парголово
                                              • Парнас
                                              • Песочный
                                              • Петергоф
                                              • Петро-Славянка
                                              • Петровский
                                              • Петроградский район
                                              • Петродворцовый район
                                              • Пискарёвка
                                              • Полюстрово
                                              • Понтонный
                                              • Пороховые
                                              • Посадский
                                              • Правобережный
                                              • Приморский район
                                              • Прометей
                                              • Пулковский меридиан
                                              • Пушкинский район
                                              • Репино
                                              • Ржевка
                                              • Рыбацкое
                                              • Сампсониевское
                                              • Сапёрный
                                              • Светлановское
                                              • Северный
                                              • Семёновский
                                              • Сенной
                                              • Серово
                                              • Смольнинское
                                              • Смолячково
                                              • Солнечное
                                              • Сосновая поляна
                                              • Сосновское
                                              • Стрельна
                                              • Тярлево
                                              • Ульянка
                                              • Урицк
                                              • Усть-Ижора
                                              • Ушково
                                              • Финляндский
                                              • Фрунзенский район
                                              • Центральный район
                                              • Чкаловское
                                              • Чёрная речка
                                              • Шувалово-Озерки
                                              • Шушары
                                              • Юго-Запад
                                              • Южно-Приморский
                                              • Юнтолово
                                              • № 15
                                              • № 21
                                              • № 54
                                              • № 65
                                              • № 72
                                              • № 75
                                              • № 78
                                              • по метро
                                              • Девяткино
                                              • Гражданский проспект
                                              • Академическая
                                              • Политехническая
                                              • Площадь Мужества
                                              • Лесная
                                              • Выборгская
                                              • Площадь Ленина
                                              • Чернышевская
                                              • Площадь Восстания
                                              • Владимирская
                                              • Пушкинская
                                              • Технологический институт
                                              • Балтийская
                                              • Нарвская
                                              • Кировский завод
                                              • Автово
                                              • Ленинский проспект
                                              • Проспект Ветеранов
                                              • Парнас
                                              • Проспект Просвещения
                                              • Озерки
                                              • Удельная
                                              • Пионерская
                                              • Чёрная речка
                                              • Петроградская
                                              • Горьковская
                                              • Невский проспект
                                              • Сенная площадь
                                              • Фрунзенская
                                              • Московские ворота
                                              • Электросила
                                              • Парк Победы
                                              • Московская
                                              • Звёздная
                                              • Купчино
                                              • Приморская
                                              • Василеостровская
                                              • Гостиный двор
                                              • Маяковская
                                              • Площадь Александра Невского
                                              • Елизаровская
                                              • Ломоносовская
                                              • Пролетарская
                                              • Обухово
                                              • Рыбацкое
                                              • Комендантский проспект
                                              • Старая Деревня
                                              • Крестовский остров
                                              • Чкаловская
                                              • Спортивная
                                              • Садовая
                                              • Достоевская
                                              • Лиговский проспект
                                              • Новочеркасская
                                              • Ладожская
                                              • Проспект Большевиков
                                              • Улица Дыбенко
                                              • Волковская
                                              • Звенигородская
                                              • Спасская
                                              • Обводный канал
                                              • Адмиралтейская
                                              • Международная
                                              • Бухарестская
                                              • Беговая
                                              • Проспект Славы
                                              • Дунайская
                                              • Шушары

                                              Вместе с этим также ищут:

                                              Продажа квартир в Санкт-Петербурге Продажа однокомнатных квартир в Санкт-Петербурге Продажа комнат в Санкт-Петербурге Продажа гаражей в Санкт-Петербурге Продажа вторички - квартиры в Санкт-Петербурге Квартиры в новостройках в Санкт-Петербурге

                                              🏠 Как купить дом, коттедж в Санкт-Петербурге на N1?

                                              • ✔ В поисках объявления о продаже или покупке домов, коттеджей в Санкт-Петербурге?
                                              • ✔ На N1 размещены 72 дома, коттеджа
                                              • ✔ Чтобы купить или продать недвижимость, воспользуйтесь формой поиска, фильтрами или быстрыми ссылками.

                                              💸 Сколько стоит дом, коттедж в Санкт-Петербурге?

                                              • 🟢 Средняя цена продажи домов, коттеджей - 8,23 млн ₽
                                              • 🟢 Минимальная стоимость за 1 м2: 87,74 тыс ₽

                                              📚 Какая площадь домов, коттеджей?

                                              • Наибольшая площадь: 352 м²
                                              • Минимальная площадь: 12 м²