1-к, Планерная, 89 Показать на карте
Приморский район
Санкт-Петербург
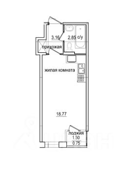
Код объекта: 2093255.Ваш идеальный дом ждет вас! Продается уютная квартира в Приморском районе! Преимущества: • Светлая и уютная квартира площадью 22 м² с лоджией, где открывается потрясающий вид на Юнтоловский заказник. Идеальное место для кабинета или зоны отдыха! • Жилой комплекс ''NewTime'' — современный и комфортный! • Качественный евроремонт: все продумано до мелочей! Установлены оптимальное количество розеток, качественная сантехника и светильники. Квартира в идеальном состоянии — просто заезжайте и живите! • Вся мебель и техника на фото остаются новым хозяевам. Дополнительные удобства: • На первом этаже — зона для хранения велосипедов и колясок. • Тихие и вежливые соседи создают атмосферу уюта и спокойствия. Инфраструктура: • Отлично развитая инфраструктура района: детский сад на первом этаже, школа и современный IT-лицей в 2-х минутах. • В шаговой доступности поликлиника, магазины, рестораны и службы доставки. • Остановка общественного транспорта в 5 минутах от дома: до метро Комендатский проспект всего 20 минут на автобусе! Для автомобилистов: • Удобный выезд на КАД за 15 минут, съезд на ЗСД — всего 10 минут. В ближайшее время откроется улица Планерная, что сократит время вдвое! Любите природу?• Через дорогу — Юнтоловский заказник с Буферным прудом для прогулок и активного отдыха. Всего 20 минут пешком до Новоорловского заказника и Шуваловского карьера. А в 20 минутах на автомобиле — вы уже на заливе в Сестрорецке! Перспективы: • Район стремительно развивается. Покупка квартиры здесь — это отличная инвестиция в будущее! В 2027 году планируется открытие новой станции метро в 20 минутах пешком. О сделке: • Все документы готовы к сделке. • Один взрослый собственник. • Материнский капитал не использовался. • Возможна помощь в одобрении ипотеки. Не упустите шанс стать владельцем этой замечательной квартиры! Звоните прямо сейчас для организации просмотра!
22 м2
4 / 13 этаж
Кирпич - монолит
- Показать контакты
- Добавить в избранное
22 м2
4 / 13 этаж
Кирпич - монолит
6 300 000
286 364 /м2
