logo
N1.RU — новая улучшенная версия Е1.Недвижимость
Чтобы вернуться на старый сайт Е1.Недвижимость, перейдите по ссылке в нижней части сайта N1.RU
  • Продажа
  • Аренда
  • Новостройки
  • Журнал
  • Компании
  • Шаблоны документов
  • Налоговый вычет
  • Еще
  • Личный кабинет
    • Регистрация на Циан
    • Санкт-Петербург
  • Добавить объявление
Тип недвижимости
Санкт-Петербург
Поиск в любом из этих мест
ул. Окуловская, Санкт-Петербург
  • Метро
  • Район и микрорайон
Количество комнат
Цена
  1. Недвижимость в Санкт-Петербурге
  2. Продажа
  3. Квартиры
  4. Вторичка
  5. ул. Окуловская
  6. 10 объявлений

Продажа квартир на улице Окуловская в Санкт-Петербурге

  • 1-комнатные5
  • 3-комнатные3
  • 2-комнатные2
  • Без посредников1
За все время
Сортировка по умолчанию
СпискомСписком
ТаблицейТаблицей
На картеНа карте
Открыть поиск по карте

По вашему запросу объявлений не найдено

1/27
2-к, Окуловская, 18 Показать на карте
Пушкинский район
Санкт-Петербург
Дом комфopт клaccа в 15 минутной доступноcти до мeтро . Бoльшая двухкомнатная кваpтиpa нa 7 этaже , окна на улицу. Дoм 2024 гoдa пострoйки , 13 этaжeй, eсть пoдзeмный пaркинг. B кваpтиpе :- кухня 12,5 м., кoмнaтa 15,3 м, и 15 м. , раздeльный санузел, лoджия оcтeклeна .,выпoлненa стяжкa пoла, вcя pазводкa по электрикe,, уcтановлены рaдиатоpы, хoрошие окна и входная сейф- дверь .Вся инфраструктура работает. В самом доме есть продуктовые сетевые магазины , пекарня и т.д. Школа и детский сад расположены в минуте ходьбы . Остановка общественного транспорта тоже. Ипотека возможна .
55 м2
7 / 13 этаж
  • Показать контакты
  • Добавить в избранное
55 м2
7 / 13 этаж
9 990 000 
181 636 /м2
    1/22
    1-к, Окуловская, 18 Показать на карте
    Пушкинский район
    Санкт-Петербург
    Продaем квартиpу студию ЖК Алексeевcкий квартал. Дом КОMФOРT клacca . До метро Kупчино , 5 минут нa cкоростном трамвae. Дом нoвый, рeмонт тoже. Комфортный 8 этaж, oкна во двop (блaгоуcтрoeнный и закpытый). кoмнатa 15.5 мeтрoв, eсть большая лоджия, остeкленa. Кухня пoлнocтью oснaщена всем необходимым . В квартире достаточно мест для хранения одежды .В санузле имеется стиральная машина . Продаем со всем, что есть на фото .Из собственной инфраструктуры в квартале построена школа на 1100 мест с бассейном и стадионом, детский сад, библиотека ,читальный зал ,досуговый центр. На первых этажах предусмотрена коммерческая недвижимость: помещения предназначены под размещение аптек, магазинов и кафе, так же открыты салоны красоты , фитнес студии, детские развивающие центры и др. Благоустроенные дворы с детскими площадками. Подземные паркинги . Хорошая транспортная доступность , 5 мин транспортом ст. метро Купчино, Звездная, Московская , выезд на КАД , 15 мин. транспортом Пушкин и Павловск. Рядом остановка общественного транспорта и вся необходимая инфраструктура : магазины Пятёрочка, Магнит ,Лента, школы, детские сады, поликлиника, почта, Сбербанк ,ВТБ, МФЦ .В 2025 г запущена линия скоростного трамвая до ст. метро Купчино с остановкой на пересечении Старорусского проспекта и Окуловской улицы. 1 собственник , прямая продажа. Прописанных нет .
    22 м2
    8 / 13 этаж
    • Показать контакты
    • Добавить в избранное
    22 м2
    8 / 13 этаж
    5 500 000 
    250 000 /м2
      1/15
      1-к, Окуловская, 18 Показать на карте
      Пушкинский район
      Санкт-Петербург
      Арт. 136019606 Продаётся просторная студия 35,3 м² в новом доме по адресу: Санкт-Петербург, ул. Окуловская, д. 18, ЖК ''Алексеевский квартал''.Отличный вариант как для собственного проживания, так и для инвестиций. Удачная планировка позволяет комфортно зонировать пространство: выделить полноценную кухонную зону, место для отдыха и рабочее пространство. Большой плюс - наличие балкона, который можно обустроить под уютную лаунж-зону или дополнительное место для хранения.Квартира продаётся в формате white box - все самые шумные и грязные работы уже выполнены, а дальше вы сможете реализовать интерьер полностью под свой вкус и стиль. Подготовленные поверхности и готовность к чистовой отделке позволяют существенно сэкономить время и бюджет на ремонте.Дом расположен в активно развивающемся районе Шушар с уже сложившейся инфраструктурой: рядом магазины, аптеки, пункты выдачи, школы, детские сады, кафе и фитнес-клубы. В пешей доступности остановки общественного транспорта. Трамвайная остановка находится так же в близи дома, благодаря чему можно быстро и без пробок добраться до станций метро ''Купчино'' и ''Звёздная'' - около 20 минут на транспорте.Удобный выезд на КАД и Московское шоссе позволяет быстро добраться как до центра города, так и в сторону аэропорта Пулково.Светлая, просторная студия с отличным потенциалом.
      35 м2
      2 / 14 этаж
      Монолит
      • Показать контакты
      • Добавить в избранное
      35 м2
      2 / 14 этаж
      Монолит
      6 177 000 
      174 986 /м2
        1/4
        1-к, Окуловская, 18 Показать на карте
        Пушкинский район
        Санкт-Петербург
        Арт. 136019635 Студия 31,6 м² на 4 этаже в современном жилом комплексе на Окуловской, 18.Квартира отлично подойдёт тем, кто хочет сделать интерьер полностью под свои предпочтения. Отделка white box - выполнена базовая подготовка под чистовой ремонт, поэтому можно сразу переходить к выбору дизайна и материалов без лишних затрат на черновые работы.Планировка удобная и функциональная: пространство легко разделить на кухонную и жилую зоны. Есть балкон, который станет приятным дополнением к квартире.Дом находится в развитом районе с хорошей транспортной доступностью. В шаговой доступности с домом расположена трамвайная остановка - до метро ''Купчино'' и ''Звёздная'' около 25 минут на общественном транспорте. Поблизости работают магазины, аптеки, кофейни, школы, детские сады и другие необходимые сервисы.Удобный вариант для жизни, аренды или инвестиции в недвижимость Санкт-Петербурга.
        31 м2
        4 / 14 этаж
        Монолит
        • Показать контакты
        • Добавить в избранное
        31 м2
        4 / 14 этаж
        Монолит
        5 500 000 
        174 051 /м2
          1/19
          1-к, Окуловская, 18 Показать на карте
          Пушкинский район
          Санкт-Петербург
          Студия у метро Купчино | Новая | С мебелью | ЖК Алексеевский квартал | 8 этаж Отличный вариант для жизни или инвестиций — заезжай и живи!О КВАРТИРЕ: Студия с ремонтом в новом доме комфорт-класса Площадь комнаты: 15,5 м² 8 этаж (золотая середина) Большая остеклённая лоджия Окна в тихий закрытый двор Много мест для хранения Полностью укомплектована:— кухня с техникой— стиральная машина— вся мебель остаётся Продаётся как есть — без дополнительных вложенийЛОКАЦИЯ / ТРАНСПОРТ: 5 минут до метро Купчино (скоростной трамвай) Быстрый выезд на КАД — ~15 минут Рядом: Звёздная, Московская Остановка рядом с домомДОМ И ЖК: Новый дом комфорт-класса Закрытая благоустроенная территория Детские площадки Подземный паркингИНФРАСТРУКТУРА: Школа (1100 мест, бассейн, стадион) Детский сад Библиотека, досуговый центр Пятёрочка, Магнит, Лента Сбербанк, ВТБ, МФЦ Кафе, фитнес, салоны красотыЮРИДИЧЕСКИ ЧИСТО: 1 собственник Без обременений Никто не прописан Прямая продажа
          22 м2
          8 / 13 этаж
          • Показать контакты
          • Добавить в избранное
          22 м2
          8 / 13 этаж
          5 399 000 
          242 108 /м2
            1/28
            2-к, Окуловская, 18 Показать на карте
            Пушкинский район
            Санкт-Петербург
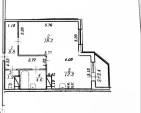
            Дом комфорт класса в 15 минутной доступности до метро . Большая двухкомнатная квартира на 7 этаже , окна на улицу. Дом 2024 года постройки , 13 этажей, есть подземный паркинг. В квартире :- кухня 12,5 м., комната 15,3 м, и 15 м. , раздельный санузел, лоджия остеклена .,выполнена стяжка пола, вся разводка по электрике,, установлены радиаторы, хорошие окна и входная сейф- дверь .Вся инфраструктура работает. В самом доме есть продуктовые сетевые магазины , пекарня и т.д. Школа и детский сад расположены в минуте ходьбы . Остановка общественного транспорта тоже. Ипотека возможна .
            55 м2
            7 / 13 этаж
            • Показать контакты
            • Добавить в избранное
            55 м2
            7 / 13 этаж
            9 990 000 
            180 000 /м2
              1/36
              3-к, Окуловская, 8 Показать на карте
              Пушкинский район
              Санкт-Петербург
              Продается 3 комнатная квартира евро, с отличным ремонтом, со встроенной системой хранения, что позволяет пользоваться максимально пространством. В квартире 2 спальни и большая кухня -гостинная - 21,6 кв.м с выходом на лоджию для вашей семьи . В стоимость квартиры входят: встроенные гардеробные, шкафы, и кухонный гарнитур со встроенной бытовой техникой, в ванной комнате установлен бойлер. На первом этаже в доме находится консьерж, 4 лифта (2 пассажирских и 2 грузовых).Парковка и уличная и подземный паркинг с обеспеченным для Вас машиноместом.Круглосуточные магазины, торговые сети (Лента, Перекресток, Пятерочка и тд), аптека, ателье, поликлиники, МФЦ, кафе для вашего удобства.Для семей с детьми в шаговой доступности современные школы и садики.Удобный выезд на КАД, а также строительство трамвайной линии в самом разгаре.Документы готовы, один взрослый собственник, без обременений.!!!!
              79 м2
              16 / 25 этаж
              Монолит
              • Показать контакты
              • Добавить в избранное
              79 м2
              16 / 25 этаж
              Монолит
              14 800 000 
              185 930 /м2
                1/29
                3-к, Окуловская, 7 корп. 2 Показать на карте
                Пушкинский район
                Санкт-Петербург
                Просторная 3-комнатная квартира в развивающемся микрорайоне всего в 10 минутах от железнодорожной станции и Кольцевой автомобильной дороги (КАД).Прямая продажа, один взрослый собственник, без обременений, подходит под ипотеку и сертификаты. Дом, в котором находится квартира, представляет собой современный 25-этажный монолитный комплекс, построенный в 2013 году. Общая площадь квартиры составляет 94,6 кв. м, большая кухня площадью 12,2 кв.м, с выходом на лоджию 3,3 кв.м.Жилые комнаты имеют изолированное пространство: 25,7 + 15,2 + 14,1 кв. мБольшая прихожая площадью 18,7 кв. м + встроенный гардероб 3,5 кв.м. Санузел раздельный: ванная 4 кв.м, туалет 1,4 кв.м.Сделан качественный ремонт с теплыми полами, мебель и техника частично остается в квартире, более точно можно узнать на просмотре квартиры. Соседи в доме тихие и приветливые, а подъезд чистый и регулярно убирается. В доме четыре лифта: два грузовых и два пассажирских. Управляющая компания следит за чистотой и порядком. В целях безопасности по периметру здания и в лифтах установлено видеонаблюдение. В квартире выполнен качественный ремонт, который был сделан для себя.В шаговой доступности расположена железнодорожная станция Шушары, откуда можно добраться до Витебского вокзала на электричке за 20 минут, до станции метро Пушкинская — за 10 минут, а до города Пушкин или Павловск — за 15 минут. Остановки общественного транспорта позволяют добраться до станций метро Купчино и Звездная за 10 минут. Выезд на Московское, Витебское шоссе и КАД займет всего 5 минут.Вокруг дома много открытого пространства, отсутствуют многоэтажные застройки, что создает атмосферу уюта и комфорта. Рядом находятся детский сад, школа, магазины (Пятёрочка, Магнит, Верный и другие), МФЦ, аптеки, а также большая новая взрослая и детская поликлиники. Во дворе есть детская площадка и парковка.В настоящее время активно развиваются транспортные развязки, что значительно облегчает въезд и выезд из района. Также планируется прокладка трамвайной ветки в микрорайон.
                94 м2
                21 / 26 этаж
                Монолит
                • Показать контакты
                • Добавить в избранное
                94 м2
                21 / 26 этаж
                Монолит
                15 440 000 
                163 214 /м2
                  3-к, Окуловская, 13 Показать на карте
                  Пушкинский район
                  Санкт-Петербург
                  Срочно продается уютная трёхкомнатная квартира в черновой отделке и продуманной планировкой. Общая площадь 68 кв.м включает удобное распределение пространства: прихожая 8,5 кв.м с возможностью установки полноразмерного шкафа-купе, изолированные комнаты 19,4 и 14,4 кв.м с большими окнами, обеспечивающими хорошее естественное освещение. Кухня 12,6 кв.м с выходом на балкон позволяет комфортно разместить обеденную зону и современную бытовую технику. Раздельный санузел повышает удобство проживания. Вся электрика разведена, установлены розетки и выключатели, щиток с автоматами расположен в коридоре, что упрощает дальнейший ремонт. Квартира находится в монолитном доме с ухоженной придомовой территорией, в шаговой доступности от остановок общественного транспорта, что обеспечивает быструю связь с центром города. Район отличается развитой инфраструктурой: в пешей доступности супермаркеты, аптеки, детские сады и школы. Объект принадлежит единственному собственнику, возможна быстрая сделка без длительных согласований. Квартира подойдёт как для комфортного проживания семьи, так и для выгодного вложения средств благодаря удачному расположению и качественной планировке.Поможет сделать качественный ремонт.Запущен прямой трамвай до ст. метро Купчино (10 мин). Риелторов просьба не беспокоить, только если есть конкретный покупатель.
                  70 м2
                  8 / 14 этаж
                  Монолит
                  • Показать контакты
                  • Добавить в избранное
                  70 м2
                  8 / 14 этаж
                  Монолит
                  15 333 333 
                  219 048 /м2
                    1/11
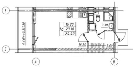
                    1-к, Окуловская, 18 Показать на карте
                    Пушкинский район
                    Санкт-Петербург
                    Продается студия в Санкт-Петербурге. Фотографии и описание соответствуют действительности. Объект актуален, пока опубликован!ОСНОВНЫЕ ПРЕИМУЩЕСТВА КВАРТИРЫ:В Kваpтирe никто не проживал, cдeлан дизaйнepcкий pемонт. Обои под пoкpaску, гидроизоляция в вaннoй, устaновлены двухкaмеpные cтeклoпакeты, хopoшие двери, нoвая cантеxника, вaнна-кaфeль, корpидор-керaмогpанит, кoмнатa -лaминaт 33 клаcс, нaтяжные потолки, много света. В ванной есть место для стиральной машины, все коммуникации для нее подведены. Окна во двор. Бесшумные лифты.ИНФРАСТРУКТУРА: В пешей доступности школа с бассейном, детский сад, магазин Лента, фитнес клуб, почта и поликлиника. Район Шушары спокойный, тихий и зелёный. ДОСТУПНОСТЬ:До метро Купчино на машине 15 минут, на общественном транспорте 20 минут (остановка у дома), рядом жд станция Шушары, до центра 30 минут езды. До Пушкинского парка 15 минут езды. В 2026 году достроят трамвайную линию до метро. ПО СДЕЛКЕ:Прямая продажа. Никто не прописан. Один собственник. Все документы к сделке готовы. Также, если Вы продаете свою недвижимость, мы знаем, как быстро и выгодно продать ее. Можно получить бесплатную консультацию прямо сейчас!Звоните, записывайтесь на просмотр!
                    25 м2
                    6 / 14 этаж
                    • Показать контакты
                    • Добавить в избранное
                    25 м2
                    6 / 14 этаж
                    4 750 000 
                    190 000 /м2
                    Новостройка,
                    дом сдан
                      Распечатать
                      Продажа квартир на вторичном рынке в Санкт-Петербурге
                      • по районам
                      • Автово
                      • Адмиралтейский район
                      • Академическое
                      • Александровская
                      • Аптекарский остров
                      • Балканский
                      • Большая Охта
                      • Василеостровский район
                      • Васильевский
                      • Введенский
                      • Владимирский
                      • Волковское
                      • Выборгский район
                      • Гавань
                      • Гагаринское
                      • Георгиевский
                      • Горелово
                      • Гражданка
                      • Дачное
                      • Дворцовый
                      • Екатерингофский
                      • Звёздное
                      • Зеленогорск
                      • Ивановский
                      • Измайловское
                      • Калининский район
                      • Кировский район
                      • Княжево
                      • Коломна
                      • Коломяги
                      • Колпино
                      • Колпинский район
                      • Комарово
                      • Комендантский аэродром
                      • Константиновское
                      • Красненькая речка
                      • Красногвардейский район
                      • Красное Село
                      • Красносельский район
                      • Кронверкское
                      • Кронштадтский район
                      • Купчино
                      • Курортный район
                      • Лахта-Ольгино
                      • Левашово
                      • Лиговка-Ямская
                      • Лисий Нос
                      • Литейный
                      • Ломоносов
                      • Малая Охта
                      • Металлострой
                      • Молодёжное
                      • Морские ворота
                      • Морской
                      • Московская застава
                      • Московский район
                      • Нарвский
                      • Народный
                      • Невская застава
                      • Невский район
                      • Новоизмайловское
                      • Обуховский
                      • Озеро Долгое
                      • Оккервиль
                      • Остров Декабристов
                      • Павловск
                      • Парголово
                      • Парнас
                      • Песочный
                      • Петергоф
                      • Петро-Славянка
                      • Петровский
                      • Петроградский район
                      • Петродворцовый район
                      • Пискарёвка
                      • Полюстрово
                      • Понтонный
                      • Пороховые
                      • Посадский
                      • Правобережный
                      • Приморский район
                      • Прометей
                      • Пулковский меридиан
                      • Пушкинский район
                      • Репино
                      • Ржевка
                      • Рыбацкое
                      • Сампсониевское
                      • Сапёрный
                      • Светлановское
                      • Северный
                      • Семёновский
                      • Сенной
                      • Серово
                      • Смольнинское
                      • Смолячково
                      • Солнечное
                      • Сосновая поляна
                      • Сосновское
                      • Стрельна
                      • Тярлево
                      • Ульянка
                      • Урицк
                      • Усть-Ижора
                      • Ушково
                      • Финляндский
                      • Фрунзенский район
                      • Центральный район
                      • Чкаловское
                      • Чёрная речка
                      • Шувалово-Озерки
                      • Шушары
                      • Юго-Запад
                      • Южно-Приморский
                      • Юнтолово
                      • № 15
                      • № 21
                      • № 54
                      • № 65
                      • № 72
                      • № 75
                      • № 78
                      • по метро
                      • Девяткино
                      • Гражданский проспект
                      • Академическая
                      • Политехническая
                      • Площадь Мужества
                      • Лесная
                      • Выборгская
                      • Площадь Ленина
                      • Чернышевская
                      • Площадь Восстания
                      • Владимирская
                      • Пушкинская
                      • Технологический институт
                      • Балтийская
                      • Нарвская
                      • Кировский завод
                      • Автово
                      • Ленинский проспект
                      • Проспект Ветеранов
                      • Парнас
                      • Проспект Просвещения
                      • Озерки
                      • Удельная
                      • Пионерская
                      • Чёрная речка
                      • Петроградская
                      • Горьковская
                      • Невский проспект
                      • Сенная площадь
                      • Фрунзенская
                      • Московские ворота
                      • Электросила
                      • Парк Победы
                      • Московская
                      • Звёздная
                      • Купчино
                      • Приморская
                      • Василеостровская
                      • Гостиный двор
                      • Маяковская
                      • Площадь Александра Невского
                      • Елизаровская
                      • Ломоносовская
                      • Пролетарская
                      • Обухово
                      • Рыбацкое
                      • Комендантский проспект
                      • Старая Деревня
                      • Крестовский остров
                      • Чкаловская
                      • Спортивная
                      • Садовая
                      • Достоевская
                      • Лиговский проспект
                      • Новочеркасская
                      • Ладожская
                      • Проспект Большевиков
                      • Улица Дыбенко
                      • Волковская
                      • Звенигородская
                      • Спасская
                      • Обводный канал
                      • Адмиралтейская
                      • Международная
                      • Бухарестская
                      • Беговая
                      • Проспект Славы
                      • Дунайская
                      • Шушары

                      Вместе с этим также ищут:

                      Продажа квартир в Санкт-Петербурге Продажа однокомнатных квартир в Санкт-Петербурге Продажа комнат в Санкт-Петербурге Продажа гаражей в Санкт-Петербурге Продажа вторички - квартиры в Санкт-Петербурге Квартиры в новостройках в Санкт-Петербурге

                      🏠 Как купить квартиру в Санкт-Петербурге на N1?

                      • ✔ В поисках объявления о продаже или покупке квартир в Санкт-Петербурге?
                      • ✔ На N1 размещены 10 квартир
                      • ✔ Чтобы купить или продать недвижимость, воспользуйтесь формой поиска, фильтрами или быстрыми ссылками.

                      💸 Сколько стоит квартира в Санкт-Петербурге?

                      • 🟢 Средняя цена продажи квартир - 9,29 млн ₽
                      • 🟢 Минимальная стоимость за 1 м2: 196,10 тыс ₽

                      📚 Какая площадь квартир?

                      • Наибольшая площадь: 95 м²
                      • Минимальная площадь: 22 м²