4-к, Депутатская, 26 Показать на карте
Петроградский район
Санкт-Петербург
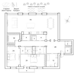
Арт. 70446328 Площадь квартиры 171 кв.м!В самой тихой и респектабельной части Крестовского острова, в жилом комплексе ''Венеция'', выставлена на продажу красивая семейная квартира. Вдохновлённый венецианским палаццо, современный дом в духе итальянской архитектуры полностью оправдывает своё название.О квартиреКвартира отличается современным дизайнерским ремонтом премиального уровня. Интерьер украшен наборным паркетом, натуральным камнем и дизайнерским светом. Продуманная и функциональная планировка включает в себя умный дом с множеством сценариев освещения, тёплые полы и управление затемнением окон. Также установлена система приточно-вытяжной вентиляции с кондиционированием.В квартире два уровня. На первом уровне расположены просторная кухня-гостиная, три спальни, гардеробные комнаты, хозяйственная комната и два санузла. Панорамные окна и напольные радиаторы отопления обеспечивают комфорт в любое время года. Нижний уровень квартиры площадью 34,5 кв. м может служить дополнительной спальней, игровой или местом для хобби и увлечений. Высота потолков составляет 3,4 метра. Вместе с квартирой предлагается место в подземном паркинге.О доме и локацииТерритория комплекса находится под круглосуточной охраной и видеонаблюдением. Есть зоны отдыха и детская площадка. В пешей доступности находятся Каменный и Елагин острова, Приморский парк Победы. Крестовский остров — первоклассный район с хорошей экологией, однородным социальным окружением и удобной транспортной доступностью.Приглашаем Вас увидеть эту неподражаемую квартиру вживую, звоните.
136 м2
1 / 7 этаж
Кирпич - монолит
- Показать контакты
- Добавить в избранное
136 м2
1 / 7 этаж
Кирпич - монолит
168 000 000
1 230 769 /м2
