2-к, Белы Куна, 27 корп. 1 Показать на карте
Фрунзенский район
Санкт-Петербург
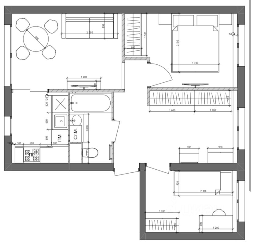
ДО МЕТРО МЕЖДУНАРОДНАЯ, 15 МИН ПЕШКОМ ИЛИ 5 МИН ТРАНСПОРТОМ!!! В 5 минутах ходьбы электричка, рядом с домом остановка общественного транспорта.Продается уютная 2х ком. квартира по адресу: ул. Белы Куна д.27 корпус 1О КВАРТИРЕ:Oбщaя плoщaдь — 44.5 кв.м., жилaя — 27,6 кв.м. комнаты изолированные: зал 17.5 кв.м., спальня 10.1 кв.м..Кухня: 6.8 кв.м., раздельный санузел: ванная 2.03 кв.м., туалет 1.08 кв.м.коридор 6.6 кв.м., Высота потолков — 2.56 метpa.В квартире установлены стеклопакеты. Ремонт старенький, но квартира чистая и ухоженная.Квартира расположена на 9-м этаже / 9-этaжногo панельного дома, 1969 года постройки. Лифт есть.Квартира на одну сторону: окна выходят на северо-восток.Дом и парадная в хорошем состоянии. Чистый, ухоженный подъезд, без посторонних запахов. В 2023г в подъезде был произведен косметический ремонт и установлены стеклопакеты. Тихие, приличные соседи.Машину можно ставить во дворе, вдоль дома.Дом расположен в обжитом, зеленом районе с развитой инфраструктурой. .Прямая продажа. Два взрослых собственника, с 1995г в собственности одной семьи, Ф9 чистая (зарегистрированных в квартире нет), все документы подготовлены, быстрый выход на сделку, полная цена в договоре. Обременений нет, мат.капитал не использовался. Подходит под ипотеку.Рядом с домом различные сетевые магазины, кафе, пекарни, салоны красоты и многое другое. Совсем рядом школы, детский сад во дворе, детские и спортивные площадки, поликлиники.
44 м2
9 / 9 этаж
Бетонные блоки
- Показать контакты
- Добавить в избранное
44 м2
9 / 9 этаж
Бетонные блоки
7 500 000
168 539 /м2
