3-к, Испытателей проспект, 20 Показать на карте
Приморский район
Санкт-Петербург
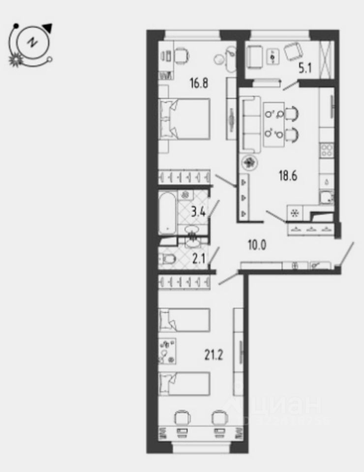
Продается уютная 3-х комнатная квартира квартира (комнаты 15,0+15,0+15,0), расположенная на 2-м этаже в Приморском районе. Дом 1976 года постройки, серия 602.Планировка квартиры смежно-изолированная, двухсторонняя, без перепланировок. Окно одной комнаты и балкон второй комнаты выходят во двор. Окна кухни и третьей комнаты выходят на проспект Испытателей с видом на маленький зеленый сквер. Окна стеклопакеты.Состояние квартиры хорошее. Сделан косметический ремонт. Квартира опрятная, ухоженная.Дом расположен в районе с очень развитой инфраструктурой. Школа, детские сады, поликлиника детская и взрослая , почта всё это в шаговой 5 минутной доступности. Любые магазины и гипермаркеты рядом.Во дворе дома находится зеленый двор с благоустроенными детскими игровыми площадками и зонами для спорта и прогулок.Очень удачная транспортная доступность. Рядом две станции метро Пионерская 10 минут пешком и Комендантский проспект 15 минут пешком. Общественный транспорт. Много места для парковки личного автомобиля. В настоящее время в квартире никто не проживает. Один взрослый собственник. Прямая продажа.Рассмотрим любой вид оплаты. Звоните для записи на просмотр.
73 м2
2 / 10 этаж
Панель
- Показать контакты
- Добавить в избранное
73 м2
2 / 10 этаж
Панель
14 500 000
196 211 /м2
