3-к, Полюстровский проспект, 87 корп. 1 Показать на карте
Лесная, 9 мин
Санкт-Петербург
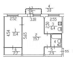
3-комн. квартира с предчистовой отделкой в ЖК ''RESPECT'' на 11 этаже. Общая площадь: 77.14 кв.м., жилая: 37.67 кв.м., площадь просторной кухни-столовой: 13.97 кв.м. Угловая квартира, идеально подойдет любителям тишины и панорамных видов. В квартире одна лоджия, два совмещенных санузла. Высота потолков 2.7 м. Квартира находится в корпусе 5.1. Дом монолитный, одноподъездный, высотой 13 этажей. На этаже 7 квартир. В подъезде 1 пассажирский и 1 грузовой лифт. Начало строительства - 1 квартал 2026 года. Окончание строительства - 4 квартал 2027 года. Оформление сделки по договору долевого участия. В шаговой доступности от жилого комплекса имеются станции метро (расстояние по прямой): ''Лесная'' (800 м), ''Площадь Мужества'' (1.4 км), ''Выборгская'' (1.9 км), также недалеко от этого корпуса расположены станции метро: ''Академическая'', ''Политехническая''. Жилой квартал ''RESPECT'' строится на Полюстровском пр, 87, в одной из самых востребованных локаций Петербурга. В 10 минутах пешком - метро ''Лесная'' и в 10 минутах на транспорте - Петроградская сторона. Высота домов от 7 до 13 этажей. Квартиры сдаются с отделкой white box и с чистовой отделкой. На территории Respect строится школа на 1125 учащихся и детский сад на 240 мест. Запроектированы собственная газовая котельная, закрытая территория, дворы без машин и подземные паркинги с лифтами.В проекте предусмотрены трапециевидные балконы или остекленные лоджии, которые, с одной стороны, исключают монотонность фасада, являясь декоративными элементами, с другой дополнительным функциональным пространством в квартирах. Цветовая гармония фасадов каждого дома раскрывает характер квартала. Коричневый цвет клинкерного кирпича со структурой водяных штрихов — цвет уюта и безопасности, сдержанности и надёжности. Вентилируемые фасады облицованы клинкерным кирпичом. Его высокая прочность позволяет давать 100 лет гарантии на этот материал. Водопоглощение клинкерного кирпича составляет менее 5%, за счет чего у него высокая теплопроводность и прочность. В квартале запроектированы внутренние закрытые территории дворов домов без доступа автомобилей и безбарьерная среда для велосипедистов и колясок. Предусмотрены IP-домофония с функцией дистанционного открывания калиток и парадных, а также дистанционный сбор показаний счетчиков и мобильное приложение для жителей. Для безопасности жителей квартала - круглосуточное видеонаблюдение и служба охраны. В каждой квартире предусмотрены внешние корзины для кондиционеров. Вся территория квартала будет связана единой концепцией благоустройства, разработанной ландшафтным бюро L.BURO. На эксплуатируемой кровле на уровне первого этажа в домах 1 и 4 будут обустроены общественные видовые террасы. Это станет не только привлекательным местом с красивым видом, но и удобным, многофункциональным пространством. Дизайн парадных зон и входных групп - сочетание лаконичности отделки и декоративных элементов с текстурами из натурального камня и дерева с приглушенной подсветкой теплым светом
77 м2
11 / 13 этаж
Монолит
- Показать контакты
- Добавить в избранное
77 м2
11 / 13 этаж
Монолит
28 426 090
368 500 /м2
Новостройка,
IV-2027
IV-2027
