3-к, Софьи Ковалевской, 14 корп. 2 Показать на карте
Академическая, 11 мин
Санкт-Петербург
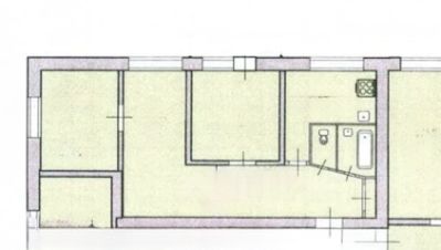
ПРОДАЁТСЯ 3-КОМНАТНАЯ КВАРТИРА В ЗЕЛЁНОМ РАЙОНЕ САНКТ-ПЕТЕРБУРГА! Адрес: ул. Софьи Ковалевской, д. 14 к2 11 этаж 14-этажного кирпичного кооперативного дома Общая площадь: 61.3 м² | Жилая: 40.2 м² | Кухня: 7.4 м² ЧТО ДЕЛАЕТ ЭТУ КВАРТИРУ ОСОБЕННОЙ: Просторная планировка с одной изолированной и двумя смежными комнатами, все комнаты правильной квадратной и прямоугольной формы Два больших балкона с видом во двор на две стороны Очень зелёный микрорайон Раздельный санузел дополнительное удобство для большой семьи Юридическая чистота: один собственник, никто не прописан Прямая продажа, без обременений ИНФРАСТРУКТУРА РАЙОНА:• В непосредственной шаговой доступности: две школы, поликлиника, детские сады, церковь• Многоуровневый надземный отапливаемый паркинг в 5 минутах пешком• Детские и спортивные площадки во дворе• Лесопарк Пискарёвский и парк Сосновка в пешей доступности ТРАНСПОРТНАЯ ДОСТУПНОСТЬ:• 12 минут пешком до м. ''Академическая''• 28 минут пешком до м. ''Гражданский проспект''• 3 автобусные остановки до ж.д. ст. Ручьи• недалеко два выезда на КАД (Шафировский и с ул. Руставели), до центра города легко добраться за полчаса Квартира ждёт вашего ремонта!Создайте интерьер своей мечты с нуля идеальный вариант для тех, кто хочет воплотить все свои идеи в жизнь под себя и свои потребности Мы поможем:• С одобрением ипотеки на выгодных условиях• В организации ремонта ''под ключ''• В страховании на выгодных условиях квартиры, ипотеки и добровольного титула ИДЕАЛЬНО ДЛЯ:• Семей с детьми• Ценящих спокойствие обжитого жилого района с развитой инфраструктурой • Людей, ценящих экологию и комфорт проживания Звоните, узнавайте подробности и записывайтесь на просмотр!
61 м2
11 / 14 этаж
Кирпич
- Показать контакты
- Добавить в избранное
61 м2
11 / 14 этаж
Кирпич
11 900 000
194 127 /м2
