Василеостровский район
Санкт-Петербург
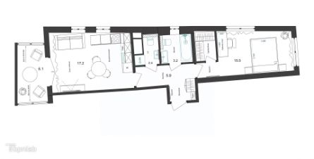
Код объекта: 2161040.ПРОДАЁТСЯ НОВАЯ КВАРТИРА С БОЛЬШОЙ КУХНЕЙ.О ДОМЕ:• современный монолитный дом 2024 года постройки. Бизнес-класс, индивидуальный проект,• грузовой и пассажирский лифты в каждой парадной,• железобетонные перекрытия,• современные входные группы,• круглосуточное видеонаблюдение,• есть подземный паркинг,Современная надежная технология строительства. Комфортное проживание и отличный микроклимат в квартире в любое время года.О КВАРТИРЕ:• Квартира с видом из комнаты на Финский залив и Кронштадт,• общая площадь 52,7 м²,• жилая площадь 21,24 м² ,• кухня 14,6 м²,• две раздельных комнаты 10,64 м2 + 10,6 м2 комнаты правильной прямоугольной формы,• санузел 4,8 м²,• высота потолков 2,72 м,• комфортный 8 этаж с хорошими видовыми характеристиками и чистым морским воздухом,• кладовая / бытовое помещение,• широкий балкон 4,45 м2.О РЕМОНТЕ:• Входная дверь металлическая с отделкой панелью МДФ,• Электрика: розетка и патрон освещения с выключателем, абонентское устройство домофона (трубка), подводка кабелей для интернета, телефонии и цифрового телевидения,Дополнительно: произведена разводка электрики заменён электрощиток,• Пол: цементная стяжка и звукоизоляция,• От Застройщика: разводка труб отопления скрыта в полу, радиаторы с нижним подключением,• Сантехника: подведены коммуникации холодной, горячей воды и канализации,• Установлены счетчики тепла и воды,• Окна и балконные двери из ПВХ-профилей с двухкамерным стеклопакетом, автономные дымовые пожарные извещатели, тепловые извещатели (над входной дверью). ОБ ИНФРАСТРУКТУРЕ:• В пешей доступности разные кафе, магазины и прочая инфраструктура,• школы, детские сады,• спортивные площадки и центры спортивного и общего досуга,• центры, связанные со здравоохранением, пункты выдачи заказов и т.п..О ПЕШЕЙ И ТРАНСПОРТНОЙ ДОСТУПНОСТИ:• Остановки наземного общественного транспорта во всех доступных направлениях 8 мин. пешком,• станция метро ''Приморская'' 15 мин. транспортом.На автомобиле:• Удобный выезд на ЗСД в 2-х минут от дома,• до центра города на автомобиле займет порядка 15 минут без пробок,• до международного аэропорта ''Пулково'' - 30 минут по ЗСД,О ДОКУМЕНТАХ:• Прямая продажа, быстрый выход на сделку,• полная стоимость в договоре,• один взрослый собственник,• Никто не зарегистрирован,• Без обременений и долгов,• Ключи покупатель может получить сразу, после сделки,О БОНУСАХ ПОКУПАТЕЛЮ:• Покупатель БЕСПЛАТНО ПОЛУЧАЕТ дизайн-проект.