1-к, Всеволожское городское поселение Показать на карте
Всеволожское городское поселение
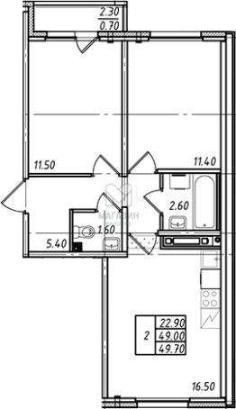
ПЕРЕУСТУПКА ПО НИЗКОЙ ЦЕНЕ! ДОМ СДАЕТСЯ В МАРТЕ 2025 ГОДА.Продается квартира в ЖК Ржевский паркв 30 минутах от центра Санкт-Петербурга.Жилой комплекс расположен:в 15 минутах до станции Ковалевов 26 минутах до Финляндского вокзалав 20 минутах до г. Всеволожскав 30 минутах от ТРК Охта Молл и Мега Дыбенко, м. Ладожская и метро Пр. Большевиковв 35 минутах от метро Пл. Ленина От поселка Ковалево автомобилисты могутдобраться до Невского проспекта за 35 минутБлижайший к комплексу город — Всеволожск. Здесь есть вся необходимая современному человеку инфраструктура:медицинские учреждения, торговые комплексы,кружки и студии дополнительного образования.При этом город не перегружен и комфортен.Внутренняя территория квартала создана для отдыхаи созидания. Один уровень дорожек и входов в парадныепозволит комфортно гулять даже с коляской.Широкие светлые холлы,колясочные на первых этажах.Спортивные и игровые площадки, лундж зоны.Школа и детские сады во дворе: пять минут из домабез светофоров и припаркованных машинДом оснащен системой ''умный дом''.Полы в кухне, коридоре и комнате — ламинат с текстурой дерева.В ванной комнате и совмещённом санузле — керамическаяя плитка на стенах. Установлен душевой уголок,раковина с подвесной тумбой, унитаз. Металлопластиковые окна с двухкамерными стеклопакетами. Стены оклеены рельефными обоями, которые можно окрашивать несколько раз.Стальная дверь с двумя замками и светлой панелью из МДФ. Один собственник,обременение -ипотека Сбера, документы готовы к сделке. ТОРГ УМЕСТЕН!Звоните , отвечу на все вопросы.Код пользователя: 134408Номер в базе: 1668558
23 м2
7 / 16 этаж
Кирпич - монолит
- Показать контакты
- Добавить в избранное
23 м2
7 / 16 этаж
Кирпич - монолит
3 100 000
133 047 /м2
Новостройка,
дом сдан
дом сдан
