logo
N1.RU — новая улучшенная версия Е1.Недвижимость
Чтобы вернуться на старый сайт Е1.Недвижимость, перейдите по ссылке в нижней части сайта N1.RU
  • Продажа
  • Аренда
  • Новостройки
  • Журнал
  • Компании
  • Шаблоны документов
  • Налоговый вычет
  • Еще
  • Личный кабинет
    • Регистрация на Циан
    • Санкт-Петербург
  • Добавить объявление
Тип недвижимости
Санкт-Петербург
Начните вводить или выберите объект в выпадающем списке
  • Метро
  • Район и микрорайон
Количество комнат
Цена
  1. Недвижимость в Санкт-Петербурге
  2. Продажа
  3. Квартиры
  4. 5 объявлений

Продажа квартир в Санкт-Петербурге

За все время
Сортировка по умолчанию
СпискомСписком
ТаблицейТаблицей
На картеНа карте
Открыть поиск по карте

По вашему запросу объявлений не найдено

1/9
2-к, Чирикова, 5 Показать на карте
Василеостровский район
Санкт-Петербург
Двухкомнатная квартира с предчистовой отделкой в ЖК ''Аквилон ZALIVE'' на 10 этаже. Общая площадь: 57.4 кв.м., площадь просторной кухни-столовой: 12.7 кв.м. Высота потолков 2.7 м. Дом монолитный, многоподъездный, высотой 13 этажей. Квартира находится в 1-й секции в корпусе 12. На этаже 12 квартир. В подъезде 1 пассажирский и 1 грузовой лифт. На сегодняшний день строительство окончено, дом сдан в 4 квартале 2023 года. Оформление сделки по договору купли-продажи. ОтделкаВ квартире выполнена предчистовая отделка WhiteBox+Возможен дозаказ отделки в любом из 3 цветов: SAND, TERRA, GRAPHITEОтделка входит в стоимость квартиры в ДДУ ЖК ''Аквилон ZALIVE''Жилой комплекс ''Аквилон ZALIVE'' расположился в уникальной части престижного Васильевскогоострова. С одной стороны рядом деловой и исторический центр, с другой берег Финскогозалива и новая современная инфраструктура в пешей доступности. Проект включает в себя пять тринадцатиэтажных ''умных'' домов в едином архитектурном стиле. Насыщенная социальнаяинфраструктура, инновации в каждой квартире, стильное благоустройство территории ивидовые характеристики это лишь часть уникальных преимуществ жилого комплекса ''Аквилон ZALIVE''. -Малошумные лифты-Сквозные парадные-Светопрозрачные входные группы-Школа во дворе-Безбарьерная среда-Паркинг Стандарты Группы Аквилон для вашей комфортной жизниThermo-S экономия на коммунальных платежах за счет дополнительно утепленных стен, кровли и цоколя. Энергоэффективные окна с селективным покрытием и аргоновым заполнениемSoundstop - дополнительная шумоизоляция внутренних перегородок и межэтажных перекрытий, шумозащитные окна, малошумные лифтыLight-in - в квартирах устанавливаются широкоформатные окна, увеличены на 30%. Высота подоконников на уровне 60 см от пола.Vent-in - в каждой комнате есть клапаны индивидуальной вентиляции, которые обеспечивают приток свежего воздуха с улицы. inHOME умный дом в каждой квартиреИнтеллектуальная цифровая система, которая позволит дистанционно решать бытовые вопросы, управлять квартирой и экономить на оплате коммунальных услуг.В состав inHOME входят: IP-домофон, Face key, ''умные'' счетчики, датчики протечки, дистанционное отключение розеток, и т.д. Двор ваш личный паркДля разработки проекта благоустройства и озеленения Группа Аквилон привлекла студию DEREVO PARK, которую ассоциация ландшафтных архитекторов России четыре года подряд признавала лучшей.Два хвойных сада, расположенные вдоль западной стороны квартала, станут визитной карточкой ЖК ''Аквилон ZALIVE''. Локация и инфраструктураВасильевский остров это море и прогулки, Санкт-Петербургский Государственный Университет и Ростральные колонны, музей современного искусства ''Эрарта'' и концептуальное пространство ''Севкабель Порт''. Достаточно переехать через мост и вот вы уже в центре или на Петроградской стороне.- 7 мин. до развязки ЗСД-12 мин. до м. Приморская-15 мин. до м. Невский проспект.
57 м2
10 / 13 этаж
Монолит
  • Показать контакты
  • Добавить в избранное
57 м2
10 / 13 этаж
Монолит
22 499 517 
391 978 /м2
Новостройка,
дом сдан
1/20
2-к, Чирикова, 5 Показать на карте
Василеостровский район
Санкт-Петербург
Продается 2-х комнатная квартира с лоджией вблизи залива на Василиевском острове в доме комфорт класса.Планировка удобная и функциональная: прихожая с зонами под гардеробные, просторная кухня с лоджией, две спальни, два санузла. Квартира находится на 10 этаже 13-ти этажного дома. Окна увеличенные, выходят во двор.В квартире выполнена подчистовая отделка (White Box): пол - бетонная стяжка, гидроизоляция и звукоизоляция в санузлах, разведена электрика, подводка к сан.технике, окна в пол - установлены качественные двухкамерные стеклопакеты и входная дверь.Жилой комплекс сдан в эксплуатацию в 2025 году. Готов к проживанию. Имеется подземный многоуровневый паркинг. Комплекс комфорт класса с круглосуточным видеонаблюдением, детскими площадками, дом оснащен современным оборудованием по системе умный дом. Во дворе ЖК достраивается школа на 400 мест.Комплекс находится в 10 минутах от метро Приморская на транспорте. Вся инфраструктура в шаговой доступности: рестораны, кафе, тренажёрные залы, салоны красоты, детские сады, школы, парки, торговый центр.Документы готовы к сделке.Звоните, показы в любое время!
61 м2
10 / 13 этаж
Кирпич - монолит
  • Показать контакты
  • Добавить в избранное
61 м2
10 / 13 этаж
Кирпич - монолит
22 100 000 
359 350 /м2
    1/30
    2-к, Чирикова, 5 Показать на карте
    Василеостровский район
    Санкт-Петербург
    Дизайнерская евро-3 на берегу Финского заливаФото квартиры реальные, не дизайн проект!1 взрослый молодой собственник, полная цена в договоре.Ремонт: выполнена штукатурка по маякам, углы выведены под 90 градусов, на стенах малярный флизелин, краска антивандальная и моющаяся, выровнены полы, уложен качественный ламинат и керамогранит в зоне прихожей, установлены теплые полы в коридоре и с/у, плинтуса ударопрочный дюрополимер в цвет стен, потолок с теневым профилем, закарнизными нишами и встроенным карнизом для шторки в ванной. Предусмотрено много розеток, есть розетки с USB и Tape C у дивана, кровати, на кухне, а так же розетки за шторами для новогодней гирлянды.Освещение: в каждом помещение много сценариев. Основной свет - люстра, точечные светильники, трековые светильники, вечерний свет- бра, светильники. Так же выполнены подсветки закарнизных ниш, тв тумбы, стеллажей в туалете, ванной и прихожей, подсветка на кухне рабочей зоны.Мебель: вся выполнена на заказ по индивидуальному проекту дизайнера из МДФ и качественного ЛДСП и хорошей фурнитурой. В прихожей все продумано до мелочей, есть куда положить ключи, сумку, перчатки, средства для обуви. В спальне большой шкаф и туалетный столик. Кухня выполнена в трендовом дизайне, в которую поместилось все необходимое.В ванной предусмотрено много хранения и хозяйственный шкаф с розеткой. Мягкая мебель так же заказывалась индивидуально - раскладной диван и кровать с подъемным механизмом. А так же стол из шпона дуба и дизайнерские стулья.Как фишка в интерьере использованы стеновые панели и зеркала.Техника: официально представленная в РФ, с сервисными центрами и гарантиейДуховка с 3-м стеклом, грилем и конвекцией. Посудомоечная машина с тремя корзинами функциями Aqua stop и ионизацией, умная с управлением голосом или со смартфона. Стиральная машина с сушкой и паровыми программами. Индукционная варочная с функцией boost и зоной расширения. Вытяжка с управлением жестами, а так же сенсорная микроволновая печь и встроенный холодильник. Поддержать комфортный климат поможет кондиционер.Умный дом: все выключатели сенсорные с подключением к любой системе умного дома, т.е. свет управляется голосом, так же терморегуляторы теплых полов и техника. Система умного дома стоит в жилом комплексе, домофон работает с приложением на телефоне.В квартире продумано все до мелочей. Вся мебель, техника, текстиль и декор остаются покупателю!Преимущества этой квартиры приглашаем лично оценить на просмотре!
    54 м2
    9 / 13 этаж
    • Показать контакты
    • Добавить в избранное
    54 м2
    9 / 13 этаж
    22 900 000 
    420 183 /м2
      1/28
      2-к, Чирикова, 5 Показать на карте
      Василеостровский район
      Санкт-Петербург
      Арт. 127261011 ЖК ''Аквилон ZALIVE''Жилой комплекс ''Аквилон ZALIVE'' расположился в уникальной части престижного Васильевского острова. С одной стороны рядом деловой и исторический центр, с другой берег Финского залива и новая современная инфраструктура в пешей доступности. Проект включает в себя пять тринадцатиэтажных ''умных'' домов в едином архитектурном стиле. Насыщенная социальная инфраструктура, инновации в каждой квартире, стильное благоустройство территории и видовые характеристики это лишь часть уникальных преимуществ жилого комплекса''Аквилон ZALIVE''. Малошумные лифты Сквозные парадные Светопрозрачные входные группы Школа во дворе Безбарьерная среда ПаркингСтандарты Группы Аквилон для вашей комфортной жизниThermo-S экономия на коммунальных платежах за счет дополнительно утепленных стен, кровли и цоколя. Энергоэффективные окна с селективным покрытием и аргоновым заполнением. Коммунальные платежи всего около 5000 рублей. Soundstop - дополнительная шумоизоляциявнутренних перегородок и межэтажных перекрытий, шумозащитные окна, малошумные лифты.Light-in - в квартирах устанавливаются широкоформатные окна, увеличены на 30%.Высота подоконников на уровне 60 см от пола.Vent-in - в каждой комнате есть клапаны индивидуальной вентиляции, которые обеспечивают приток свежего воздуха с улицы.inHOME умный дом в каждой квартиреИнтеллектуальная цифровая система, которая позволит дистанционно решать бытовые вопросы, управлять квартирой и экономить на оплате коммунальных услуг.В состав пНОМЕ входят: IP-домофон, Face key,''умные'' счетчики, датчики протечки, дистанционное отключение розеток. Управление с мобильного приложения. Двор ваш личный парк. Для разработки проекта благоустройства и озеленения Группа Аквилон привлекла студиюDEREVO PARK, которую ассоциация ландшафтных архитекторов России четыре года подряд признавала лучшей.Два хвойных сада, расположенные вдоль западной стороны квартала, станут визитной карточкой ЖК ''Аквилон ZALIVE''.Локация и инфраструктураВасильевский остров это море и прогулки, Санкт-Петербургский Государственный Университет и Ростральные колонны, музей современного искусства ''Эрарта'' и концептуальное пространство ''Севкабель Порт''. Достаточно переехать через мост и вот вы уже в центре или на Петроградской стороне. 1 мин. до развязки ЗСД 12 мин. до м. Приморская 15 мин. до м. Невский проспектКвартира 58 кв.м. Очень красивый дизайнерский ремонт, сделана перепланировка- увеличили кухню- гостиную. Вся мебель и техника остается при продаже.Парковочное место в паркинге в аренде. Один совершеннолетний собственник. Нет никаких обременений. Быстрый выход на сделку! Скорее звоните, чтобы встретить Новый год в своей новой красивой квартире.
      58 м2
      4 / 13 этаж
      Кирпич - монолит
      • Показать контакты
      • Добавить в избранное
      58 м2
      4 / 13 этаж
      Кирпич - монолит
      23 300 000 
      401 724 /м2
        1/6
        2-к, Чирикова, 5 Показать на карте
        Василеостровский район
        Санкт-Петербург
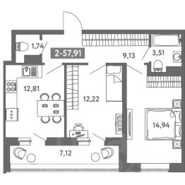
        Продается просторная двухкомнатная квартира в новом доме 2023 года постройки по адресу: Санкт-Петербург, улица Чирикова, 5. Общая площадь квартиры составляет 57.91 кв. м, из которых жилая площадь — 27.16 кв. м, а кухня — 12.81 кв. м. Квартира находится на 10 этаже 13-этажного монолитно-кирпичного дома. Высота потолков — 2.75 метра. Квартира без ремонта, поэтому вы сможете воплотить все свои дизайнерские идеи и обустроить ее по своему вкусу. Планировка включает две комнаты и кухню, есть одна лоджия. В квартире предусмотрены два отдельных санузла, что удобно для большой семьи. Окна выходят во двор, обеспечивая тишину и уют. Дом оборудован одним пассажирским и одним грузовым лифтом, что удобно для жителей всех возрастов. Для вашего автомобиля предусмотрена подземная парковка. В районе хорошо развита инфраструктура. Рядом находятся школы и магазины, что позволяет быстро и легко решать повседневные задачи. Добраться до ближайшей станции метро ''Приморская'' можно на автомобиле всего за 7 минут, что удобно для тех, кто ценит свое время. Квартира продается без обременений, все документы готовы к сделке. Возможна покупка в ипотеку. Приглашаем вас на просмотр, чтобы вы смогли лично оценить все преимущества этой квартиры. Звоните, чтобы записаться на удобное для вас время!
        57 м2
        10 / 13 этаж
        Кирпич - монолит
        • Показать контакты
        • Добавить в избранное
        57 м2
        10 / 13 этаж
        Кирпич - монолит
        22 500 000 
        388 534 /м2

          Похожие объявления

          Мы ослабили критерии поиска, чтобы показать вам подходящие объявления

          1/25
          5-к, Гатчинская, 1/56 Показать на карте
          Петроградский район
          Санкт-Петербург
          Арт. 135782480 Мини-отель в историческом центре Санкт-Петербурга. 8-10 минут пешком от станций метро Петроградская и Чкаловская.В квартире организована бизнес-модель из 6 автономных студий, оснащенных мебелью и техникой. Есть бесконтактное заселение и видеонаблюдение. Отель находится на 2 этаже, без соседей. Первый этаж коммерция.Узаконивание перепланировки в процессе.1х, 2х, 3х местное заселение. В каждой студии душ, туалет, кухня с техникой и посудой, кровать, смарт ТВ. Электричество 22кВт, отдельный кабель, минуя домовой ГРЩ, все оформлено официально.Доходность в среднем по году 300.000р./месяц (2500-3500р/сутки с одной студии)В сезон доходность 500.000-600.000 руб/месяц.Один собственник, без обременений!Ждем Ваших звонков.
          106 м2
          2 / 6 этаж
          Кирпич
          • Показать контакты
          • Добавить в избранное
          106 м2
          2 / 6 этаж
          Кирпич
          31 500 000 
          297 170 /м2
          1/18
          2-к, Орловская, 1 Показать на карте
          Центральный район
          Санкт-Петербург
          Арт. 135132166 Уникальное предложение. В продаже видовая квартира в одном из лучших жилых комплексов Центрального района - ''Смольный парк''.Квартира расположена на 5/8 этажного дома. Общая площадь 73м2 включает: просторную кухню-гостиную, спальню со вместительной гардеробной, совмещенный с/у, прихожую. Вид из панорамных окон выходит на ансамбль Смольного собора. В квартире выполнен современный ремонт, с применением качественных материалов: двери Barrause Италия, керамогранит Италия, смесители Hansgrohe Axor Starck (коллекция Филиппа Старка), конвекторы Varmann , свет L'cube.На территории комплекса предоставлена вся необходимая инфраструктура: продуктовый магазин Premier, ресторан Kontora, частный детский сад, языковая школа, салон красоты, медицинский центр, студия пилатеса. В пешей досупности фитнес-клуб Академия Атлетика. Есть возможность приобрести или арендовать машиноместо в подземном паркинге.Дом расположен в тихом историческом месте, что обеспечивает идеальное сочетание уединения и доступности ко всем необходимым удобствам современной жизни. Исключительную безопасность этого места обеспечивает близость правительства города. Круглосуточные посты ФСО и МВД. Видеонаблюдение по всему периметру дома.
          73 м2
          5 / 8 этаж
          Кирпич - монолит
          • Показать контакты
          • Добавить в избранное
          73 м2
          5 / 8 этаж
          Кирпич - монолит
          64 000 000 
          876 712 /м2
          1/17
          1-к, Тихоокеанская, 1 корп. 2 Показать на карте
          Выборгский район
          Санкт-Петербург
          Продается уютная однокомнатная квартира в современном жилом комплексе в поселке Парголово, по адресу: Тихоокеанская улица, 1к2. Площадь квартиры составляет 33,3 кв. м, из них 16 кв. м жилая площадь, а кухня занимает 8 кв. м. Квартира расположена на 12 этаже 25-этажного монолитного дома, построенного в 2021 году. Высота потолков 2,65 метра, окна выходят во двор, что обеспечивает тишину и спокойствие.В квартире сделан качественный евроремонт, который позволит вам сразу же заехать и жить без дополнительных затрат. Совмещенный санузел оборудован всей необходимой сантехникой. На кухне достаточно пространства для удобного размещения всей необходимой техники и обеденной зоны. Также в квартире есть балкон, где можно организовать место для отдыха.Дом оснащен двумя пассажирскими и одним грузовым лифтом, что исключает ожидание даже в часы пик. Для удобства автовладельцев предусмотрена наземная парковка. Жилой комплекс новый, поэтому все коммуникации и инфраструктура находятся в отличном состоянии.Рядом с домом есть все необходимое для комфортной жизни: школы, детские сады и магазины. Метро ''Проспект Просвещения'' находится всего в 11 минутах езды на автомобиле, что позволяет легко добраться до центра города и других районов Санкт-Петербурга.Условия сделки: квартира продается в собственность, возможна покупка в ипотеку. Юридически чистая, без обременений, один взрослый собственник. Все документы готовы к сделке.Приглашаем вас на просмотр этой замечательной квартиры. Записывайтесь на удобное время, будем рады вас видеть!
          33 м2
          12 / 25 этаж
          Монолит
          • Показать контакты
          • Добавить в избранное
          33 м2
          12 / 25 этаж
          Монолит
          7 700 000 
          231 231 /м2
          1/29
          2-к, Ораниенбаумская, 21 Показать на карте
          Петроградский район
          Санкт-Петербург
          ID 20797 - пожалуйста, сообщите этот номер нашему менеджеру.В продаже квартира с просторной кухней гостиной у метро Чкаловская в историческом центре. Квартира включает в себя:Спальня - 20.1 м² Гардероб - 2 м²Кухня - 20 м²Гостиная - 26 м²Санузел с сауной - 12.5 м²Санузел гостевои - 4 м²Холл - 24 м²Общая S - 106.5 м²О квартире:Планировка квартиры продумана до мелочей, обеспечивая максимальное удобство и функциональность.Квартира предлагает идеальное сочетание уютного пространства и практичности для повседневной жизниМебель и кухонный гарнитур с техникой Mile остаетсяУстановлен кондиционер.О доме:Квартира расположена в клубном доме премиум-класса (2000 г.п., архитекторы Апостол Н.И, Апостол Ф.Н.) на тихой улице в лучшем районе города - на Петроградской стороне.В доме 25 квартир, а на этаже всего 2 квартиры. Круглосуточное видеонаблюдение и консьерж.Есть возможность приобрести или арендовать машино-места в подземном паркинге.Инфраструктура:Дом удачно расположен в пешей доступности у двух станций метро: Петроградской и Чкаловской.В пешей доступности парки, набережная и скверы. Пешком можно дойти как до Дворцового моста, так и до Васильевского и Крестовского островов, ЦПКиО. Всегда есть парковочные места на улице.Учебные заведения и спортивные секции. Рядом несколько школ, детских садов, поликлиник, развитая социальная и торговая инфраструктура.
          106 м2
          7 / 9 этаж
          Кирпич - монолит
          • Показать контакты
          • Добавить в избранное
          106 м2
          7 / 9 этаж
          Кирпич - монолит
          45 000 000 
          422 535 /м2
          1/22
          1-к, Новаторов бульвар, 108 Показать на карте
          Кировский район
          Санкт-Петербург
          Предлагается в продажу однокомнатная квартира в Кировском районе по адресу бульвар Новаторов, дом 108.Панельный дом 1966 года постройки.Собственность от 2019 года, без обременений, материнский капитал не использовался, никто не прописан. Совершеннолетний продавец, личное присутствие на сделке.Прямая продажа.Рассмотрим любой вид оплаты.Квартира расположена на 2 этаже, площадь 26,1 кв.м, комната 16.7 кв.м, кухня 4 кв.м, кладовая.Совмещенный сан.узел.Большая застекленная лоджия, теплый пол. В квартире произведен косметический ремонт.Новому владельцу передается вся мебель и бытовая техника, представленная на фото.Прекрасный вариант для сдачи в посуточную или долгосрочную аренду.Метро проспект Ветеранов в шаговой доступности.Развитая инфраструктура.
          26 м2
          2 / 9 этаж
          Панель
          • Показать контакты
          • Добавить в избранное
          26 м2
          2 / 9 этаж
          Панель
          6 500 000 
          249 042 /м2
          Показать все похожие объявления
          Распечатать
          Продажа квартир в Санкт-Петербурге
          • по районам
          • Автово
          • Адмиралтейский район
          • Академическое
          • Александровская
          • Аптекарский остров
          • Балканский
          • Большая Охта
          • Василеостровский район
          • Васильевский
          • Введенский
          • Владимирский
          • Волковское
          • Выборгский район
          • Гавань
          • Гагаринское
          • Георгиевский
          • Горелово
          • Гражданка
          • Дачное
          • Дворцовый
          • Екатерингофский
          • Звёздное
          • Зеленогорск
          • Ивановский
          • Измайловское
          • Калининский район
          • Кировский район
          • Княжево
          • Коломна
          • Коломяги
          • Колпино
          • Колпинский район
          • Комарово
          • Комендантский аэродром
          • Константиновское
          • Красненькая речка
          • Красногвардейский район
          • Красное Село
          • Красносельский район
          • Кронверкское
          • Кронштадтский район
          • Купчино
          • Курортный район
          • Лахта-Ольгино
          • Левашово
          • Лиговка-Ямская
          • Лисий Нос
          • Литейный
          • Ломоносов
          • Малая Охта
          • Металлострой
          • Молодёжное
          • Морские ворота
          • Морской
          • Московская застава
          • Московский район
          • Нарвский
          • Народный
          • Невская застава
          • Невский район
          • Новоизмайловское
          • Обуховский
          • Озеро Долгое
          • Оккервиль
          • Остров Декабристов
          • Павловск
          • Парголово
          • Парнас
          • Песочный
          • Петергоф
          • Петро-Славянка
          • Петровский
          • Петроградский район
          • Петродворцовый район
          • Пискарёвка
          • Полюстрово
          • Понтонный
          • Пороховые
          • Посадский
          • Правобережный
          • Приморский район
          • Прометей
          • Пулковский меридиан
          • Пушкинский район
          • Репино
          • Ржевка
          • Рыбацкое
          • Сампсониевское
          • Сапёрный
          • Светлановское
          • Северный
          • Семёновский
          • Сенной
          • Серово
          • Смольнинское
          • Смолячково
          • Солнечное
          • Сосновая поляна
          • Сосновское
          • Стрельна
          • Тярлево
          • Ульянка
          • Урицк
          • Усть-Ижора
          • Ушково
          • Финляндский
          • Фрунзенский район
          • Центральный район
          • Чкаловское
          • Чёрная речка
          • Шувалово-Озерки
          • Шушары
          • Юго-Запад
          • Южно-Приморский
          • Юнтолово
          • № 15
          • № 21
          • № 54
          • № 65
          • № 72
          • № 75
          • № 78
          • по метро
          • Девяткино
          • Гражданский проспект
          • Академическая
          • Политехническая
          • Площадь Мужества
          • Лесная
          • Выборгская
          • Площадь Ленина
          • Чернышевская
          • Площадь Восстания
          • Владимирская
          • Пушкинская
          • Технологический институт
          • Балтийская
          • Нарвская
          • Кировский завод
          • Автово
          • Ленинский проспект
          • Проспект Ветеранов
          • Парнас
          • Проспект Просвещения
          • Озерки
          • Удельная
          • Пионерская
          • Чёрная речка
          • Петроградская
          • Горьковская
          • Невский проспект
          • Сенная площадь
          • Фрунзенская
          • Московские ворота
          • Электросила
          • Парк Победы
          • Московская
          • Звёздная
          • Купчино
          • Приморская
          • Василеостровская
          • Гостиный двор
          • Маяковская
          • Площадь Александра Невского
          • Елизаровская
          • Ломоносовская
          • Пролетарская
          • Обухово
          • Рыбацкое
          • Комендантский проспект
          • Старая Деревня
          • Крестовский остров
          • Чкаловская
          • Спортивная
          • Садовая
          • Достоевская
          • Лиговский проспект
          • Новочеркасская
          • Ладожская
          • Проспект Большевиков
          • Улица Дыбенко
          • Волковская
          • Звенигородская
          • Спасская
          • Обводный канал
          • Адмиралтейская
          • Международная
          • Бухарестская
          • Беговая
          • Проспект Славы
          • Дунайская
          • Шушары

          Вместе с этим также ищут:

          Продажа квартир в Санкт-Петербурге Продажа однокомнатных квартир в Санкт-Петербурге Продажа комнат в Санкт-Петербурге Продажа гаражей в Санкт-Петербурге Продажа вторички - квартиры в Санкт-Петербурге Квартиры в новостройках в Санкт-Петербурге

          🏠 Как купить квартиру в Санкт-Петербурге на N1?

          • ✔ В поисках объявления о продаже или покупке квартир в Санкт-Петербурге?
          • ✔ На N1 размещены 5 квартир
          • ✔ Чтобы купить или продать недвижимость, воспользуйтесь формой поиска, фильтрами или быстрыми ссылками.