1-к, Московский проспект, 115в Показать на карте
Московские ворота, 5 мин
Санкт-Петербург
''МОСКО'' уникальный проект уровня 4* возводится на Московском проспекте, 115В. Современное 10-этажное здание станет единым целым с объектом культурного наследия: бывшим кузовным сборочным цехом, построенным в 1913 году по проекту архитектора Розовского. Под сводом исторического здания расположатся галерея бутиков, ресторан, минимаркет и офисы, включая двухуровневые помещения. В новом здании современные юниты и терраса на крыше для мероприятий. Всего в проекте 340 помещений площадью от 19,7 до 45 кв. м. Все они сдаются с полной чистовой отделкой. За дополнительную плату можно заказать мебель и технику под ключ. Юниты отлично подходят для собственного проживания, сдачи в аренду и инвестиций. Покупателям доступны рассрочки, ипотека и скидки.
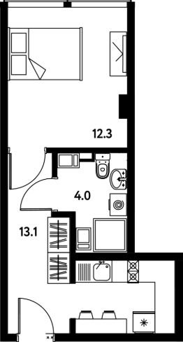
29 м2
6 / 10 этаж
Монолит
- Показать контакты
- Добавить в избранное
29 м2
6 / 10 этаж
Монолит
11 338 000
379 197 /м2
Новостройка,
I-2027
I-2027
