3-к квартира Показать на карте
Пушкинский район
Санкт-Петербург
Малоэтажный жилой комплекс Образцовый квартал 6.4. создан для тех, кто хочет жить среди природы и при этом быть недалеко от жизни большого города. Кирпично-монолитный жилой комплекс состоит из четырех жилых этажей и оснащен современными технологиями: ~ Газовые котельные. Благодаря ним в домах своя горячая вода, к которой есть беспрерывный доступ.~ Система отопления Теплый пол. В квартирах под выровненной машинной стяжкой проложена система водяных теплых полов. Вы можете настраивать индивидуальную температуру воздуха в каждом жилом помещении с помощью удобных терморегуляторов.~ Бесшумные лифты, поднимающиеся с нулевого этажа на любой этаж, включая первый.~ Проведена отделка мест общего пользования, а счетчики электроэнергии и воды выведены на лестничные клетки.~ В квартирах стоят двухкамерные теплопакеты с клапанами микропроветривания.Мы не только продумываем внутридомовое пространство, но и с вниманием относимся к благоустройству вокруг наших домов. На стадии строительства всех наших ЖК проводится качественное озеленение придомовой территории, за которым следят опытные агрономы. В наших дворах стоят детские и спортивные площадки, а светлые и просторные входные группы оснащены панорамным остеклением. Образцовый квартал 6.4. находится в центре быстрорастущего района с развивающейся инфраструктурой. Рядом уже построены и действуют три детских сада, одна школа, в ближайшем будущем будут построены: вторая школа, детская и взрослая поликлиника . Также запланировано строительство железнодорожной станции. Близко располагается Бизнес-парк Garage: двухэтажное коммерческое здание с пристроенным четырехуровневым паркингом
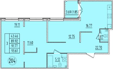
80 м2
2 / 4 этаж
Кирпич - монолит
- Показать контакты
- Добавить в избранное
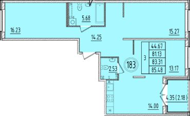
80 м2
2 / 4 этаж
Кирпич - монолит
16 871 400
210 000 /м2
Новостройка,
III-2028
III-2028
