2-к, Ольгинская (Торфяное) дорога, 3/20 Показать на карте
Выборгский район
Санкт-Петербург
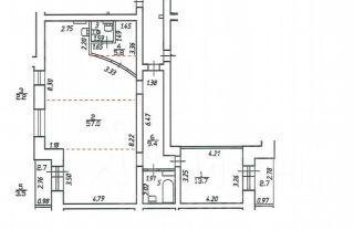
Дом сдан. Ключи сразу. Ипотека с господдержкой. Продается большая двухкомнатная квартира. Это жилье, общая площадь которого составляет 85.2 м2, а жилая - 38.6 м2, прекрасно подойдет семейным покупателям. Объект отличается оригинальной планировкой: он как бы разделен на жилую и кухонную половины. Очень просторная кухня (18.5 м2) порадует и кулинаров, и любителей семейных чаепитий. К кухонному помещению примыкает панорамный балкон, откуда открывается прекрасный вид на знаменитый Шуваловский парк. Комнаты изолированы, в обеих - большие окна с двухкамерными стеклопакетами. В большой 15-метровой прихожей хватит места не только для входной зоны, но и для платяных шкафов. Раздельный санузел расположен в центре квартиры, что удобно для всех жильцов. Изюминкой квартиры является наличие в ванной комнате большого окна.Жилой комплекс окружает закрытый охраняемый двор, система видеонаблюдения четко фиксирует все происходящее. На благоустроенной территории высажены деревья и кустарники, оборудованы детские и спортивные площадки, устроены зоны для отдыха и активностей. ЖК построен по монолитной технологии, гарантийный срок службы здания - 150 лет. Дом уже сдан и заселяется, ключи выдаются сразу. Возможен заказ предчистовой отделки, подробности - в отделе продаж.Проект имеет хорошую транспортную доступность. До станции подземки ''Парнас'' - порядка 900 м. Рядом - выезды на автомагистрали, в том числе КАД, по которым легко добраться в разные районы города. Микрорайон расположен отдельно от массовой застройки, при этом имеет развитую инфраструктуру: поликлиники и аптеки, садики и школа, кафе и спортклубы. Немало здесь и магазинов (в том числе - новый торговый центр прямо на территории), а в 10 минутах езды работает ТРЦ ''Мега Парнас''. Жемчужина Выборгской стороны и наследия ЮНЕСКО - бывших Шуваловских угодий - находится через дорогу. В 20 минутах езды находится всесезонный курорт ''Охта-Парк'', примерно столько же - до Суздальских озер, а меньше чем за час можно добраться до Карельского перешейка.
85 м2
14 / 23 этаж
Монолит
- Показать контакты
- Добавить в избранное
85 м2
14 / 23 этаж
Монолит
19 094 631
224 115 /м2
Новостройка,
дом сдан
дом сдан
